前言:
设计灵感:
美式新古典风格是由美国的那种生活方式演变而来的,自由随意散漫,这就是美国人的一种生活状态。是时代发展趋势的产物,指的是色彩相对传统美式更加丰富,更加年轻化,家具选择更有包容性。其追求华丽、高雅的古典风格,居室色彩主调为白色。 家具为古典式家具、门、窗漆成白色。擅用各种花饰、丰富的木线变化、富丽的窗帘帷幄是西式传统室内装饰的固定模式,空间环境多表现出华美、富丽、浪漫的气氛。
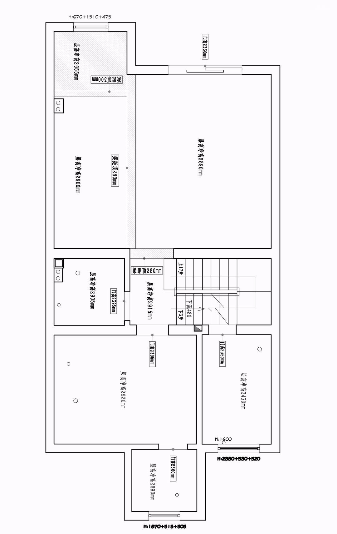
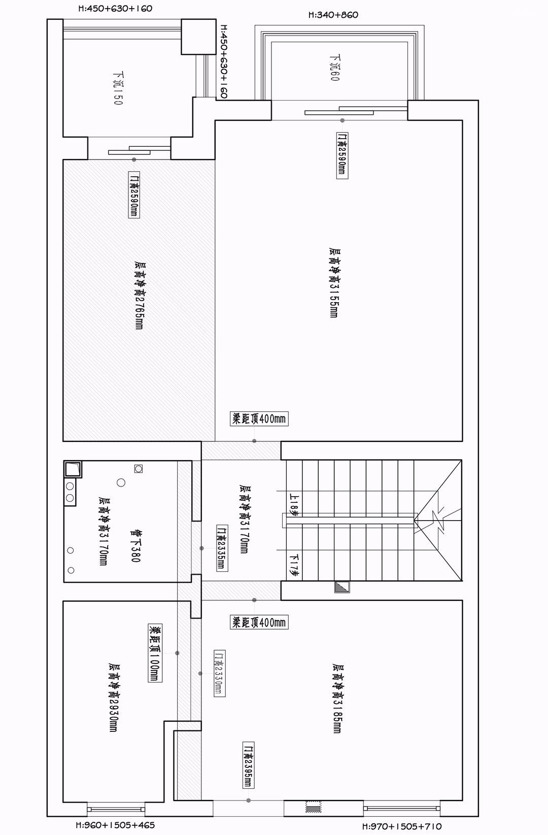
户型图
本案设计整体柔和的配色演绎出舒缓温馨的节奏。
相关案例推荐
网友评论
姬鸿雪
设计师相关作品

粤公网安备 44010602000156号