前言: 本案以灰调为主,将家的品质和温暖融入家居的细节,将设计的精妙之处融入每一次的生活享受之中。
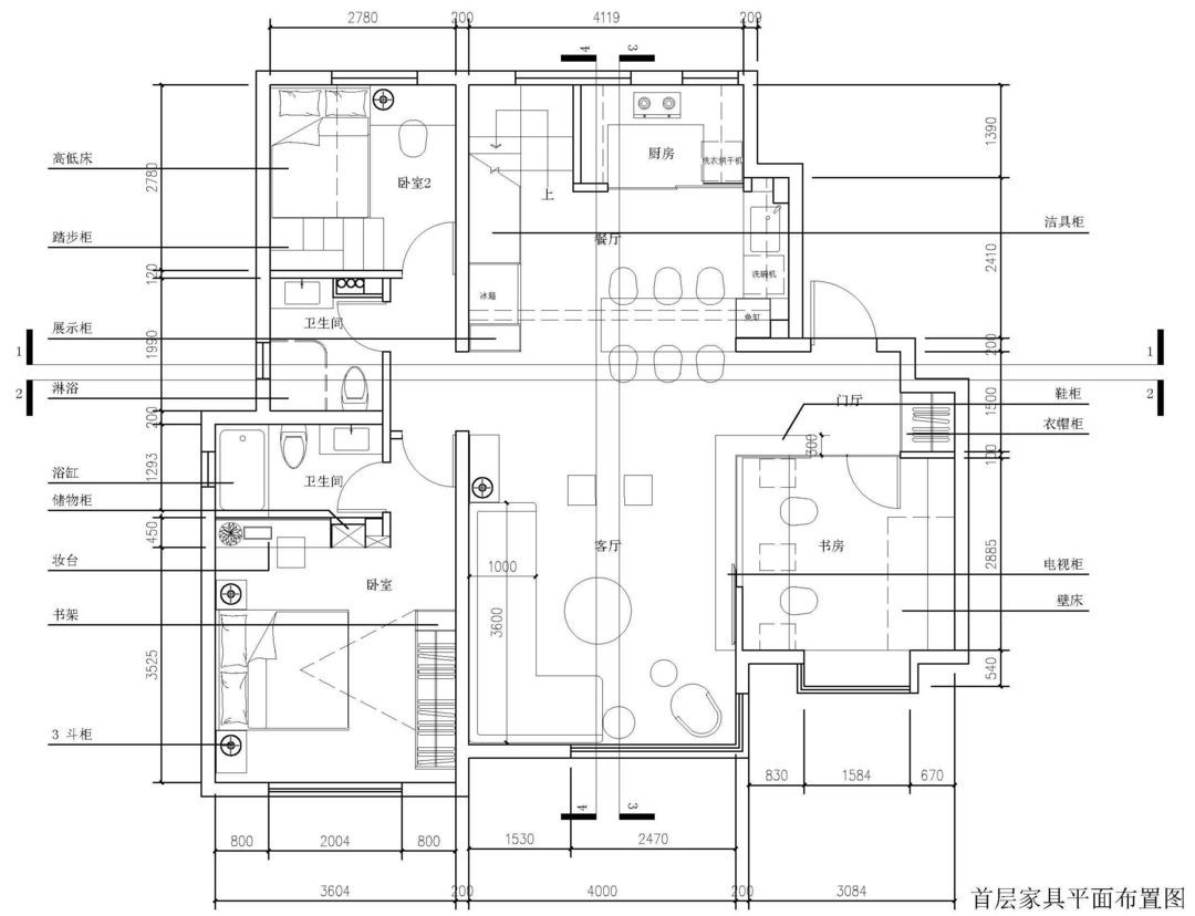
原始户型图,存在几点不足:厨房小,餐厅餐桌难以摆放 ,采光不足,因此我们着重针对这几点进行设计。
这次整个合作过程非常顺利,主要体现在与屋主沟通方面,基本上方案都是一次通过,最后出来的效果也是符合预期的。都市人在车水马龙中奔波,埋头于案前,在开会电话中耗尽时间,尤其需要一个地方歇下来,静下来,在这个地方好好休息一番后,再投入新的忙碌中。屋主平时工作比较忙,在这种情况下,一个舒适自然的家的作用就不言而喻了。本案以灰调为主,将家的品质和温暖融入家居的细节,将设计的精妙之处融入每一次的生活享受之中。
二层为阁楼,层高只有2.2米而且大部分是坡屋顶,几乎没有采光,只有南北各一个小窗,应业主要求设计一个卧室和茶室,以及游戏区。为了对二层采光不足部分进行弥补,和业主协商后,我们决定把二层北卧室和阳台区域的钢板拆除,这样二层通过阳台采光,卫生间可通过北卧室窗采光。同时,充分利用空间,我们做了一个小阁楼供儿童使用,可从高床上进入,增加了空间的趣味性,并且调整楼梯的方向和厨房位置实现了中厨、西厨分开,合理布置了餐厅;
餐厅看客厅
主卧看次卧
餐厅区
客厅看卫生间
阁楼楼梯口
阁楼空间都不高于2米2
阁楼空间
设计开放式的客厅给人视野宽敞、光线通透的感觉,客厅和书房区域的半隔断,给人“犹抱琵琶半遮面”的感觉,同时又极具功能性地担负起了电视墙的作用。
大空间的光源靠自然光是远远不够的,所以我们在灯具的使用上反复斟酌,用简单的顶灯贯穿整个空间,另外用了茶色吊灯和古典台灯打造空间的奢雅气质。
整个空间大面积地用灰色铺陈,辅以白色、木色、茶色、黑色,缓和画面的苍白感,体现出一种浓浓的雅致韵味。用经典的白色将空间的色调调动起来,轻快些许,不至于使空间过于沉闷厚重。采用柔软布艺沙发与硬木家具的结合,达到刚柔并进的效果,营造出强烈的现代感,是业主无论在视觉还是在的生活体验都十分舒适。
二楼为VR游戏区,茶室。在其北侧,利用坡顶较高区域布置家具,较低区域做了白沙枯山水造景,在游戏之余可以聊天、休息、喝茶,因为层高限制,照明以藏光为主,不设主灯。可临时用拉帘给成客卧。
金属圆形吊灯投射下明亮的光线,纵向拉伸、简洁的线条与温润的曲线勾勒出一幅和谐的光景。在光线照耀下,大理石纹地砖给人以时光流动的感觉。灰色座椅搭配木色壁柜整体风格与客厅统一,金属质感家具的使用精致奢雅。空间的功能性运用也是一个加分项,嵌入式冰箱与储物空间的设计既美观又实用,真正做到美与内涵并存。业主强调一定要有个鱼缸,并且希望有上下水,所以我们将鱼缸放在了离厨房较近的地方
主卧背景墙利用规整线条构成对称,线条的使用偏硬朗,而床铺的柔软以及台灯、桌脚又完美地起到了中和作用。灰色丝质软包的床头显示业主的品质、格调,上好的床品与柔软的靠背为睡眠质量提供保障,温暖而不刺眼的木色地板、地毯显得格外温婉,为睡眠增添了一份舒适自然。我们将电视、化妆台设计成嵌入式,使整个空间凹凸有致,不至于过于沉重。
同时增大了储物空间,实用美观。 书妆台与主卫之间为玻璃隔断,使空间更为通透宽敞。
在次卧的设计上我们选用了更加轻快的色调。壁灯、梳妆镜、台灯的金属圆形的使用有着浓浓的中式和谐韵味又不失现代设计感。衣柜的设计是一处亮点,实与虚的搭配,并增加了藏光,镂空的隔层设计增加了空间的轻盈感和光影美感。二层的次卧因高度限制,没有作主灯,以壁灯和藏光为空间照明。
相关案例推荐
博韬
设计师相关作品

粤公网安备 44010602000156号