前言:
“一个家到底应该是什么样子呢”,其实在设计生涯中这个问题被反复提问,也思考过无数个答案。也许是大一些的么?也许是现代一些的么?也许是简约一些的么?…
后来看到这套毕业照后才发现,其实最好的生活不过是你在闹,他在笑。我们可以没有多么昂贵的家具,也可以没有多么珍贵的收藏品,但是我们有爱,它可以创造每天的希望,可以让平凡的生活变的独一无二。最好的不是互相凝望,而是能够一起看着同一个方向。
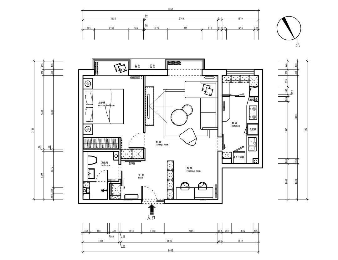
户型分析:
优势
1. 各个空间相对方正
2. 南向采光充足
3. 内部为轻体墙,有可拆改空间
劣势
1. 进门空间格局较为零碎,无整体放置鞋帽的空间
2. 卧室空间相对较大,但是预留给储物柜的空间过短
3. 厨房空间为狭长式,难以利用
平面改造重点:
1. 改变卧室的入门方向,避免卧室正对入户门,同时增加了卧室的储物空间
2. 入户门处增加整体玄关柜
3. 将厨房内部隔出阳台空间
4. 书房和就餐区通过可变家具进行结合
进门处为定制黑色柜体,和黑框玻璃隔断相结合,既不影响通风采光,又起到了一定的阻隔作用。(涉及材质:黑色混油、铁艺、玻璃、金色把手)#玄关#鞋柜#隔断
深色材质搭配金色摆件作为点缀。#玄关
这个空间属于多功能区,80%的状态会被业主作为书房来使用,偶尔在家里吃饭的时候,可以灵活拖动桌子进行组合。(涉及材质:string隔板、麻绳、猫爬架、板材书桌)#猫爬架#书桌#隔板
沙发是业主在上海逛家具店时带回来的,和客厅整体的灰色调非常协调。(涉及材质:棉麻)#地毯#沙发#装饰画
很多时候坐在地毯上也是极其舒适的,选择了两个直径不同的小茶几,可以随不同的需求来移动它,尤其是有朋友来家里一起打牌时,就有足够空间在这里围坐。(涉及材质:棉麻、金属、铁艺、大理石、镜面)#客厅#沙发#茶几#地毯#装饰画
通向厨房的门(涉及材质:推拉门、白色混油垭口、踢脚线)#客厅
电视背景墙没有做过多的处理,将所有的线路进行隐藏。(涉及材质:乳胶漆)#客厅#电视柜
电视柜(涉及材质:板材、铁艺、金属)#电视柜
改变了卧室的入门方向,拍摄时正好是中午12点左右,可以清楚的看到从房间穿透过来的一丝阳光。(涉及材质:白色混油、乳胶漆)
厨房为长条状,长度4.5m、宽度1.85m,两侧分别定制了进深不同的橱柜,餐具厨具可以根据尺寸来归类摆放。(涉及材质:免漆板、瓷砖)#厨房#橱柜#收纳
洗衣机嵌入台面下,台面以上可以正常操作使用。(涉及材质:石英石)#厨房#台面#橱柜
用玻璃推拉门隔出一个阳台空间(涉及材质:推拉门)#厨房#阳台#推拉门
阳台作为厨房的扩展,也做了橱柜,增加储物空间。
墙面的洞洞板,用来悬挂戴森配件非常合适。(涉及材质:洞洞板)#阳台#置物#洞洞板#戴森
卫生间位于入户门左侧,利用凹墙结构增加了储存空间,用来放置杂物。(涉及材质:混油、谷仓门、石膏线)#卫生间#谷仓门#收纳
实际使用面积只有3.7平米的卫生间,为了尽可能的显得宽敞,马桶采用了水箱嵌入墙体的款式。利用上面镜柜出墙的进深尺寸,做了一个平台,可以置物,非常方便。色彩采用了芥末黄,视觉上更显明亮宽敞。(涉及材质:水泥砖、镜面、陶瓷、防水乳胶漆、防水石膏板)#卫生间#壁挂马桶#镜柜
独立式淋浴间,因为原结构在角落位置有不可移动的管道结构,所以干脆以管道为齐设置了壁龛,用来放置洗浴用品。(涉及材质:石材、水泥砖)#卫生间#水盆#淋浴房
相关案例推荐
王冰洁
设计师相关作品

粤公网安备 44010602000156号