前言:
地址:盛嘉华苑
设计施工单位:久栖设计
面积:80平米
预算:35万
风格:简约
简介:
“不管怎么样,不管走到哪,知道有这么个家,是我随时可以回去的,心里总归是有了底气,这就是家的意义。”——这段话来自屋主shirley装修完成后的朋友圈感言。打开这位宝妈的朋友圈,几乎全是小骑手的各种比赛照片以及父母跟孩子的成长的瞬间。原来夫妻俩共同经营一家酷果果儿童平衡车俱乐部,儿子小果果就是那些风一样的炫酷骑手之一。这是一个自由、幸福、充满爱的家庭,陪伴和成长是家的核心,我们的设计也围绕孩子为中心而展开。
在设计过程中跟shirley的沟通很合拍,从第一次面谈到设计方案再到装修完成后最终效果的呈现,进展都很顺利,正如她朋友圈所说“一切工作都在按照我想象中的推进。看到现在的效果,很开心。”
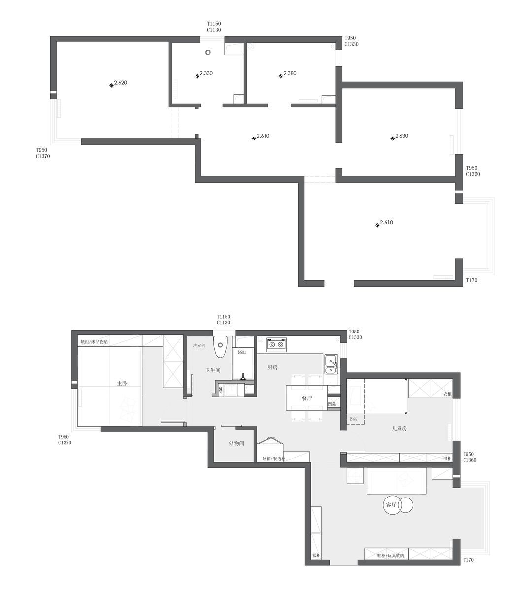
原餐厅也是连接客厅与卧室的过道,空间较为狭长造成面积的浪费。考虑屋主需求将厨房打开变为开放式,与餐厅结合,空间变得更为开阔。
过道隔出独立储物间,增加储藏收纳功能,给了屋主一个小小的惊喜,虽然面积不大,但孩子的玩具和不常用的物品有了容身之地,让家变得更加舒适整洁。
卫生间干湿分离,放入小浴缸、洗衣机和烘干机;洗手盆外置区域既是干区同时也用作过道,面积得到最大限度的利用,不浪费每一平米。
本案为北欧风格,整体以浅蓝色墙面搭配原木色地板、白色定制柜。局部以饱和度较高的黄色、蓝色点缀,色彩清新又充满童趣。
日常在家时,客厅是不需要会客的,而是以孩子为中心,作为她的活动区。没有沙发、没有茶几、甚至简单到没有电视。而是用一些不常能考虑摆在一块的帐篷、懒人豆袋、零食筐等物品代替。这样看来,与其说是客厅,更不如叫孩子的乐园。
对于shirley来说,电视的作用不大,反倒是徒增的摆设,不如让这整面3米长度柜子保留它最原始的属性。而吊在储物柜前面的4:3成像投影幕,正好适合这处3.1米跨度的客厅使用。
吊顶内预留了投影幕槽,当投影幕布缓缓降落,可以随时来看一部迪士尼电影。墙面的世界地图让这里充满了想象空间,带着孩子一起环游世界留下足迹。
既是客厅也是门厅的区域,不做独立和遮挡,释放的部分留作日后记载孩子从宝宝起一路成长的照片墙。在顶部作为走廊照明的轨道灯,和浅天蓝的背景映衬下,成为一种最真实的装饰。
与背景色相近的世界地图墙饰,让这里充满了想象空间,像是带着孩子一起环游世界,留下的足迹。
拜阳光所赐,低调而温和的原木,与明快为主的墙面用色,像是具有生命力一样,总能很容易的在日复一日的平淡生活中,让家人找到规律的围坐在一起等菜,吃饭,聊天,工作,建立起细密的家庭情感联系。
开放的餐厨区,让空间与动线两者自然通透。1850mm长度的餐桌摆在过往卧室,卫生间,衣帽间,客厅的过道当间,一点都不突兀。甚至还在它的对面放上一面落地镜,都不会占据这12㎡的区域多余的空间。似乎发现了一种原理,越是功能紧张的地方,灵活性越是多样化。
在铺地砖阶段,设计师和工人师傅在分配砖位时,险些绕花了眼。好在完成后,效果看起来不减预期。
白色平板橱柜,是用很简单的黑色不锈钢扣手,不长不短,正好是比成人手掌宽一些的150mm长度。搭配墙上白色小长条形小砖和地面花砖,清新明朗。
做为家中不可或缺的组成部分,厨房的质感尤为重要。干净舒适,使用方便,直接关系到做菜和等饭的家人心情:)靠窗下安排的L型厨房的收纳力也是极大的,但看上去依旧清爽明亮,不厚重。
白色墙砖及地面花砖从餐厨区,一直延伸至走道及外置洗手盆的位置,搭配藕荷色洗手盆、金色圆镜,让面积不大的空间显得精致透亮。
灰蓝色洗手柜自带洋气的高脚,留空高度大概有300mm,足以塞进一些日常必备的水盆。右侧的墙壁,是和龙头配套的毛巾挂钩。从圆镜里能照到对面的衣帽间,依稀还可以看到被束得高高的杂物。这是shirley一家刚进头一个月的状况,可想而知,衣帽间对他们的重要性。
干湿分区很重要,把近1米长的洗手柜扔出门外后,卫生间从此变得豁然开朗,甚至还能增加独立泡澡的小浴缸。柠檬黄色的方糖形状浴缸,和球状外观马桶直接形成和谐对比又有趣的CP关系。
主卧当中订制的榻榻米有着一家三口,自由放躺的绝对优势。长宽分别是2200*3100mm,也是常规成品或箱体床满足不了的尺寸。
床头矮柜充当床头柜功能,可放置贴身衣服和小孩书籍。
相关案例推荐
久栖设计韩蒙梦
设计师相关作品

粤公网安备 44010602000156号