前言: 喜欢北欧的阳光,带着慵懒的味道,喜欢复古的原木质感,尤其喜欢古董家具,还会加一点点爵士的调子进来,让生活充满音律,其实复古北欧只是一个词组,我家的风格就是只要我喜欢的,都能融入进来,算是做设计师的一点点自大吧
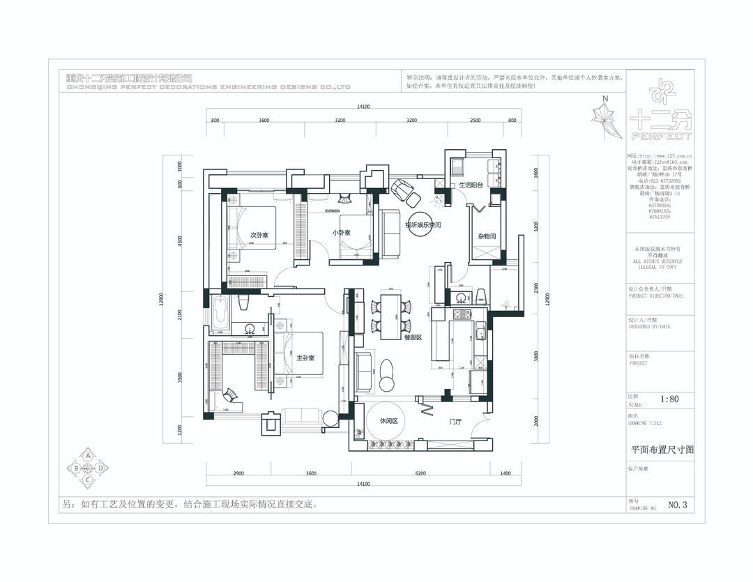
户型图
这个房子,厨房小了,我要扩大厨房就要占用生活阳台,但是没有正经的阳台,只有一个入户花园,我不想一进门就看见老公的裤衩!!
第一稿的设计中,我尽了最大努力,在原来次卫生间的位置改了一个小生活阳台出来,但是太小太小,我有好多漂亮衣服要晒!
玄关
美式的柜子,中式的斗柜,青花瓷加一点点法式慵懒的花艺和画,组成进入家门的第一道风景线
充满仪式感的玄关,门框的分割,让层次更加分明
客厅
偶然淘到的餐边柜,非常实用,可以放下我的收藏还有我的奖杯
这其实更多的就是一个起居室,满足我和老公喜欢看电影的爱好
墙上都是我的小收藏
相关案例推荐
网友评论
刘玲

粤公网安备 44010602000156号