前言:
由来已久的白色派,在上世纪70年代为活跃,以埃森曼、格雷福斯、赫迪尤克和理查德迈耶为核心的建筑创作,通过建筑上的大量白色应用,被后人归为白色派的代表人物。
而白色派的室内设计,干净简约,也成为极简风格重要的灵感来源。
这样的风格之下,更强调空间和光线,白色材质中,带有隐隐约约的色彩倾向。白色作为中立之色,是空间的主角,也是佳配角。不同颜色放置到白色当中,都会显得更加鲜亮。
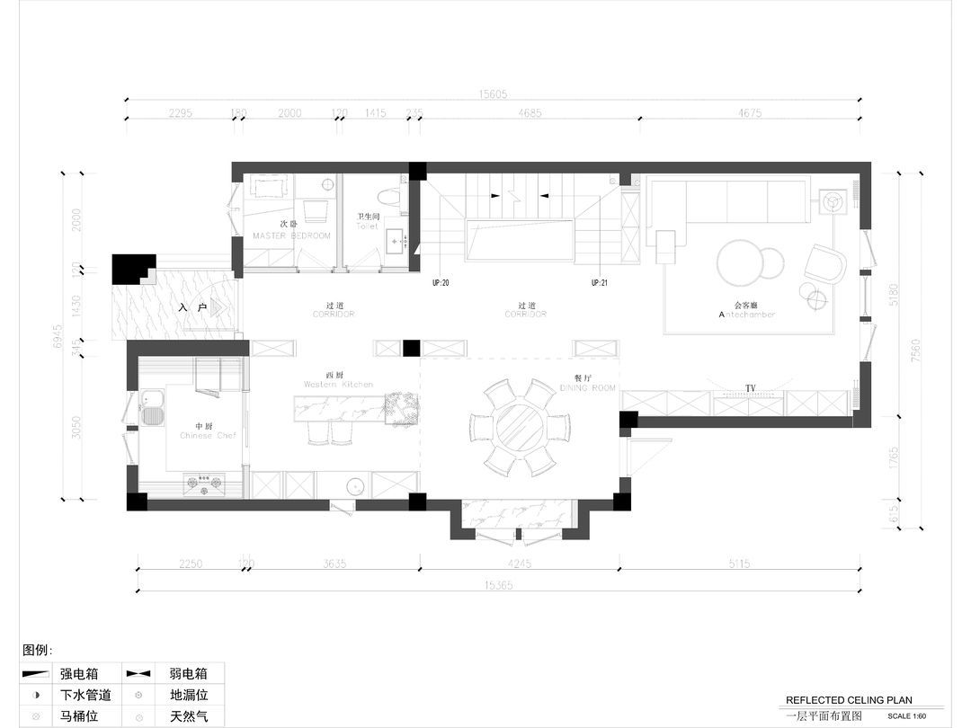
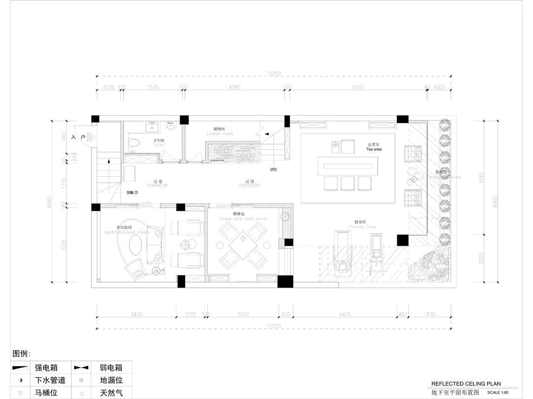
户型图
地下室空间:打开了天窗位,没有做封闭的状态。让空气与光线更流畅。
一层区域:没有隔墙的状态,用柜子修饰了空间区域划分,空间流畅性,穿插性都更能体现。
二层区域:套房的功能性一应俱全。
按ss层区域:主人套房的功能性,涵盖了主人所有能使用上的配套。
客厅
整体空间之中,白色的应用,占用了大部分面积,不过并没有因此失去层次。在自然光、跳跃的茶几和黑色的映衬下,白色散发浓烈的沉静气息,十分抢镜地表达着情绪。
相关案例推荐
网友评论
林永鉴

粤公网安备 44010602000156号