优雅热情两房之Godiva夫人的盛夏
前言:
一个空间,之所以具有鲜活动人的生命力,正是因为居于其中的人。
居住者自身气质贯穿于空间之中,空间与人形成一种相得益彰的互动关系,彼此印证,共生共长,随处都有新的发现与乐趣。
而这种丰盛源于居住者对生活的无限热爱与追求,发展到一定阶段,生活将被不断地艺术化,而在表现方式上,却是一切都显得自然而然,亲切随意。
业主说想给他的家一个优雅且富有热情的名字。灵感源于客厅的那副画,所以取名为《GODIVA夫人的盛夏》
项目地址:中山三乡德瑞花园
作品名称:Godiva夫人的盛夏
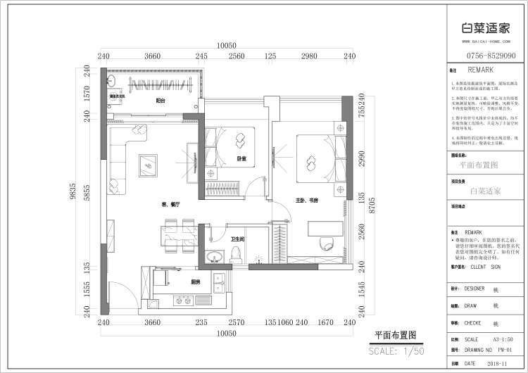
项目面积:87平
户型结构:平层三房一卫
设计施工:中山白菜适家
合作模式:全程托管模式
主要材料:生活家巴洛克木地板、芬琳诺娃彩色墙面漆、意利宝瓷砖。
竣工时间:2019/5
客厅在整体的基调设计上我们选择了冷色调的北欧风,加以混搭风的调和。米色的皮质沙发与油画的组合,无不展现着都市人对生活空间个性化的追求。透过落地玻璃入内的光线照亮整个空间,简单的装饰搭配还原空间最真实的感觉。在沙发背景墙的位置,我们植入了客人喜好色松花绿,这种颜色本身具有时尚感,我们搭配了绿与白的拼色窗帘,尝试营造出精致富于装饰性的空间印象。电视背景墙是浅灰色+石膏线框的组合,让空间立面更有韵律和节奏感。
这是墙面石膏线施工完成后的现场照片
做传媒的业主书非常的多,因此书房设置了一排2.2米宽高2.8米的书架,上面是错落层板的书柜。柜体底部设计成柜门,便于收纳。同时,我们也为业主定制了一张书桌,打造了一个专属于业主的书房,衣柜和书柜做成了L字形的设计,融合了衣帽间及书房的需求。
主卧延续整体干净的调性,浅灰色的墙面跳出白墙,注入一丝清新感。越是简单,就越是安逸,才能令人全身心的放松,更快进入睡眠状态。细看之下,个性有型的吊灯、浓墨的油画...这些小设计重组着艺术气息,让空间时尚起来。
相关案例推荐
白菜适家
设计师相关作品

粤公网安备 44010602000156号