前言:
草长莺飞的四月,蓝山设计来了一对温文尔雅的小夫妇。两人都来自江南,研习中医多年;每天浸润在微苦的药香里,传接的是中国传统文化的脉络,尊老幼,守格律,对家庭抱有极强的责任感。
对于这个在异乡重庆安置的家,夫妇俩有着共同的期待:它应该符合一个圆满的设定,照顾到小孩和老人的起居需求,遵循朴素自然的生活原则;它是一个充满爱的家,有着典型的中国式含蓄,相互照顾,不离不弃。
在他们的心目中,原来“家”是这么值得被认真对待的一个词。为了这个圆满的家,夫妇俩宁愿等蓝山半年的档期,也不愿随便找一家装修公司草草绘涂自己的梦想。
蓝山一直保持着克制甚至有些冷淡的风格,很少用奇特的造型去吸引客户。而这一次的设计任务,通过彼此不断深入的沟通,让我们对“圆满的家”有了新的创思。
从某种角度而言,今天的我们,都生活在异乡,要么是地理纬度的远离,要么是心理纬度的远离。而最能抚慰乡愁,把我们和所生活过的时空连接起来的,就是那些直抵人心的故乡元素。业主两夫妻都来自江南水乡,性情平和,说话间低言细语,尽管到重庆多年,却仍然保持着水乡人特有的内敛。对于江南的记忆,夫妇俩共同提到了对园林的深刻印象:那曲折的长廊、洁白的照壁、丛生的箬竹,与江南氤氲的空气结合,投射出心理上的故乡。
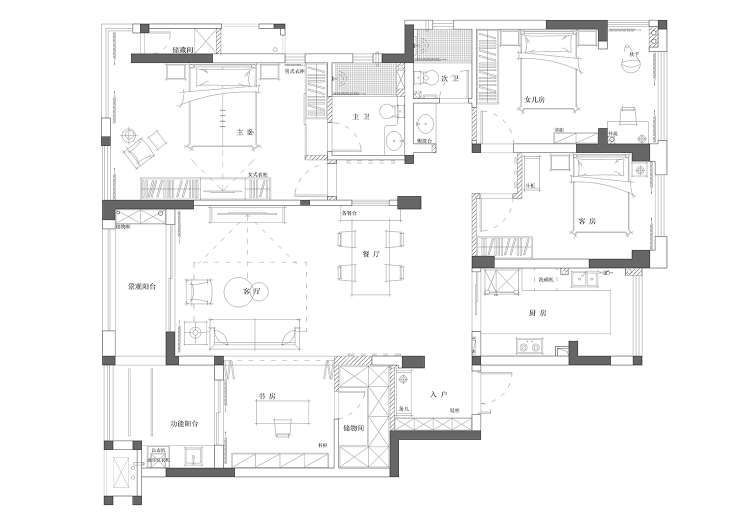
在有限的空间营造耐人寻味的韵脚,蓝山设计为了这个目标不断做着减法。我们从不喜欢堆砌直白的设计符号,但会挖掘房屋主人的内在情感和人生阅历;只有将室内景观、软装和艺术品个性化设置,才能贴合主人气质,创作出独一无二的作品。餐厅与通往主卧的走廊之间,在原本隔断的墙上凿出圆形的造型。对面探出的一丛新绿枝叶,让人第一时间联想到江南园林的借景手法。
客厅与餐厅,书房联为一体,尽量留出空高,设计师尽量不吊顶,原顶上的灯具安排,通过极其精准的轨道灯和单头射灯布置,保证了沙发区,茶几,画的照明,顶面也显得很现代感。
色彩淡雅。软装沙发、抱枕、窗帘的色彩都很克制,没有大红大绿,也不选撞色。浅灰+雾蓝的搭配,温柔又清新。
客厅的茶几别出心裁地用一个中式樟木衣箱代替,美观又兼顾收纳。
过道没有采用任何多余的装饰,在一片洁白中,墙上的蓬勃绿意格外让人动容。我们采用白描手法,从质朴见雅致,来慰藉业主夫妇对圆满的家的渴望。没有繁复造型,没有奇特摆件,没有绚烂色彩,整个空间素得像一幅层层递进的水墨画,但却不失温暖,打动人心。
当你从走廊望向客厅,则俨然一幅时尚家居杂志的封面照。走廊圆形的造型墙呼应家的“团圆”,从餐厅经过时,你看到的是一幅清新的植物手绘图。
相关案例推荐
蓝山设计
设计师相关作品

粤公网安备 44010602000156号