前言:
项目户型模式:洋房
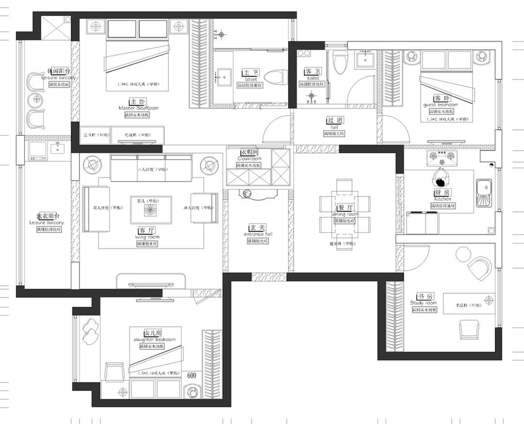
项目名称:龙湖明景台
项目面积:139㎡
项目地点:浙江·宁波
【设计初衷】
简单来说新中式便是典型的中国风,它提取了明清的风韵气质,又融合了现代的简约轻奢。风格本无定义,只是有人赋予它灵气和生命力。
本屋男主人姓“杨”,女主人姓“陈”,都偏爱新中式,提取各自姓氏的一半结合成为“木·東”,“棟”——木为形,东为声,它代表着居室的中心,是爱家的凝聚点,传递出设计师对屋主的祝福。
玄关
【玄关·仙海云山】
明月出天山
苍茫云海间
步入厅堂
首先映入眼帘的是玄关
大地黄搭上线条精致的胡桃木
配上“仙海云山”的绵延与迷离
悠远 缱绻
客厅
【客厅·观沧海】
东临碣石
以观沧海
客厅吊顶黑色不锈钢线条的质感
压住了整个空间的跃动性
沙发背景墙两侧运用海浪木纹路
隐形门、金色不锈钢线条以及护墙交相呼应
有临碣石之感
有观沧海之势
餐厅
【餐厅·悠然南山】
采菊东篱下
悠然见南山
餐厅酒柜是整个空间的点睛之笔
大地黄与玄关呼应
明清时期的“食盒”于其上 气终回肠
屋主讲求精致生活的慢节奏
同时追寻熙攘中的片刻安宁
有采菊东篱的怡然自得
有悠然见山的非凡情怀
卧室
【主卧·静夜】
白瓷流光篆青花
遥忘经年思无邪
主卧背景运用独特的烟熏灰
结合丝绸的“纯柔舒适”质感
荧荧宫灯 灼灼流光
使人沉醉其中
青花有时白
静夜何相思
相关案例推荐
网友评论
设计师陈乔春
设计师相关作品

粤公网安备 44010602000156号