前言:
---项目信息---
设计单位:舟不离空间设计
服务内容:硬装+软装
项目地址:华融蓝海洋望海
面积:80平方
总造价:25W【不含家电】
---业主采访手记---
1、简单介绍下屋主?
夫妻双方四十岁左右,性格都比较随性,稍稍有点文青,喜欢一切美的事物,不喜欢太俗套的东西~
2、现在这个家里,最喜欢的设计是什么?
空间!
设计师根据我们的需求,在不影响结构承重的前提下,做出了大胆的调整。
舟不离团队在整个装修过程里的细致、条理和专业,让我们非常信任。
3.装修有什么遗憾吗?
不专业的KD板施工方造成了很大的遗憾。
4、有什么经验和大家分享吗?
应该要明白装修的目的是为什么?要是想好好住,建议请负责任的设计团队,简单贴贴石膏线铺铺地板很有可能会留有遗憾。反正可能有免费的午餐,但我们没找到哈哈~
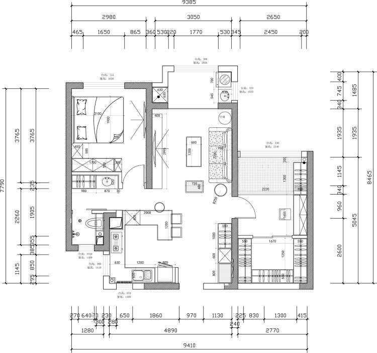
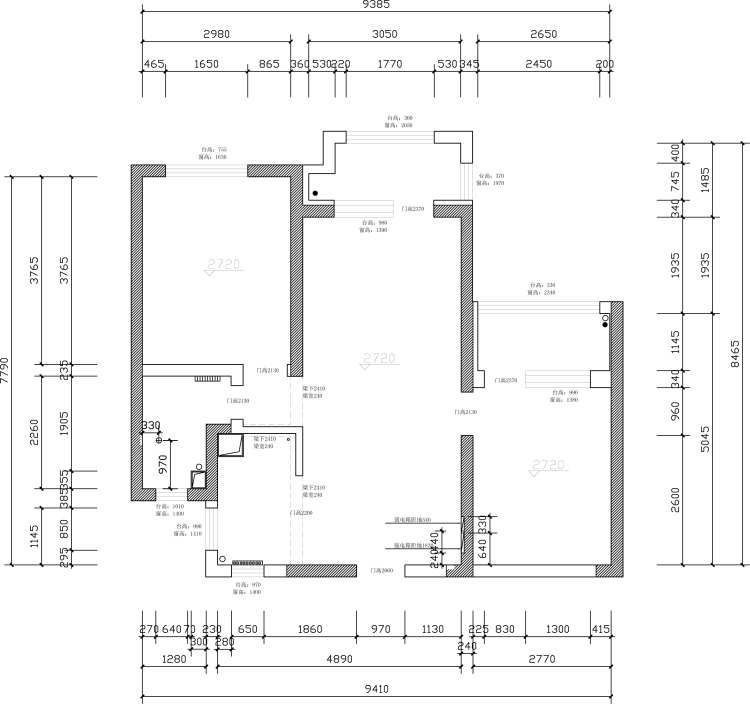
户型图
本案三口之家,平时两人居住,业主夫妇平时很少做饭,希望这个新家整体简洁干净。入户的改造扩大了整个视野,改造后增加了大大的鞋帽柜;还有女主一直渴望的衣帽间,基本每个空间都有足够的储物功能~
相关案例推荐
网友评论
舟不离空间设计
设计师相关作品

粤公网安备 44010602000156号