前言: 怎样的风格最耐看?应该有很多人会投给北欧风一票。本案的屋主一家,都强调自然,舒压的慢生活。在经过几轮仔细的沟通之后,我们定位为北欧。
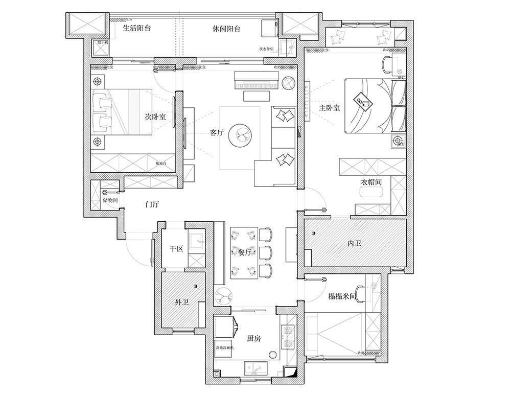
除了把原本的顶和墙面重新处理之外,我们还进行了地板及房门的拆除更换。空间改造上,没有大的墙体改动,只是在主卧区增加了单独的衣帽间,来满足女主人的储物需求。功能布局上,我们把客厅作为一个多功能区,放进钢琴,男女主人在客厅休闲的时候,儿子在旁边弹钢琴,是一种非常舒服惬意的生活状态。
色系上,女主人非常喜欢清新,能让眼睛放松下来的颜色,所以整个空间用了米灰色!
考虑到钢琴的放置,在沙发上选用了L型沙发。在软装上,我们用了个性的装饰画,纹理型的抱枕,亲肤的麻料窗帘,让整个空间的北欧感觉更加强烈,舒适度更高!
沙发延伸至餐厅的墙做了豆沙绿灰进行跳跃,让人感觉又清新,又有主墙的感觉。
家具上我们都用了北欧款,在材质上进行混搭,像木质的脚,布艺,不锈钢,烤漆面,让整个客厅的层次更饱满。
餐厅东墙用一排卡座代替传统的椅子,餐桌尽量往东靠,这样我们既可以满足餐边柜的放置,又可以保证餐厅通道的宽敞性。卡座下面给她做成储物柜,补充收纳。卡座上面做上三个不等称的层板,放上精致的小装饰品,和餐边柜的精美相呼应。
在餐厅,客户非常想要一个精致的餐边柜,解决正常餐边储物和装饰的功能。所以把柜子放到餐厅西墙。
主卧的床头用了橡皮粉灰色的艺术涂料,代替了传统的床头背景,给人一种眼前一亮的视觉感。附墙,我们配上浅灰色,让整个房间安静下来。灯具上选用了羽毛灯,让整个房间浪漫起来。在家具的选择上我们用了北欧的原木床,考虑到黄麻床垫非常厚重,我们在床的选购上用了相对稳重扎实的床款。为了减弱床的”重“感,床头柜选配上没有用传统的床头柜,而是选用了一个比较活泼的造型,带上小滚轮,想去哪里去哪里,打扫卫生自然不在话下。
次卧继承了主卧的风格搭配。
相关案例推荐
张美
设计师相关作品

粤公网安备 44010602000156号