前言:
本案业主是一位活泼开朗的女生,与父母同住,家中还有两只调皮可爱的小猫。房子位于6楼,且带着一个阁楼,之前一直作为出租房。
空间的楼梯和受三角斜屋顶限制的阁楼作为此次设计的重点。
▲改造前的一层户型图,建筑面积约140平方米。原空间主要存在两个主要问题:① 入户门正对走道,缺乏安全和隐私;② 通往二层阁楼的楼梯狭窄不好用。
▲改造前的二层阁楼建筑面积约138平方米(包含户外平台)。
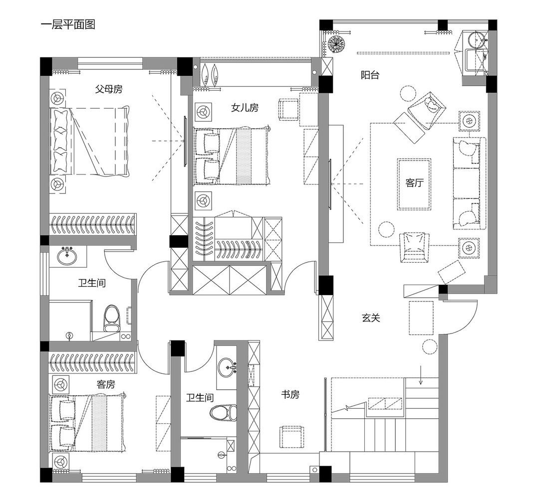
▲改造后的一层平面布置图。
将1层作为静区,客厅、卧室、卫生间、书房都布置其中。不管楼上多热闹,楼下的区域都能保持一份安静。
▲改造后的二层阁楼平面布置图。
阁楼作为动区,功能区有小客厅(休息区)、厨房、餐厅、户外菜园。这样的一个流线可以轻松实现将现摘蔬菜立马转换为餐桌美食。同时可以坐在房间里随时欣赏窗外美景,天晴的时候也可以在户外露台随时和亲朋好友一起烧烤。
▲阁楼屋顶作为斜边状,层高受到一定的限制。该层室内最高处为2.8m,最低处为0.41m。
▲原玄关现状
▲原户型并没有严格意义的玄关,进门就直接面对通往卧室的走道。改造后的此空间,在走道前方增加了玄关柜(弱电箱隐藏在柜子里面),保护隐私的同时也增加了收纳空间。柜体采用科定板制作,后期无需再用油漆,提高了环保质量。
▲玄关处的楼梯因层高限制的原因,采用三跑楼梯,不仅减少了踏步高度,同时还增加了楼梯宽度,让上下楼变得更加便利。
▲原有的楼梯位于次卧门口。
▲将楼梯移至玄关处,此图红线区域为楼梯上方原现状。
▲改造后的楼梯 立面图更加直观。
楼梯是该项目改动最大的地方,原有的楼梯位于一层走廊位置(次卧门口),上下楼非常不方便。考虑到上下楼流线所以将其调整至玄关区域,即进门左手区域。不仅使上下空间的空气循环起来,也会增加此区域的亮度和通透感。
▲白色扶手搭配天然橡木色实木台阶,凸显干净线条,同时也营造更加纯净、温馨的空间氛围。楼梯下方作为收纳储物柜。
▲通往二层阁楼的楼梯,业主细心的加了隔音垫。
▲楼梯上方是屋顶的天窗,为楼梯提供了充足的光线,打开后可以让上下楼更好的空气循环,并且…..在晴朗的夜晚,抬头可以看到星星哦!
▲很有质感的水晶球灯。
▲客厅维持一层空间白色和原木色的基调。拆除了与原有阳台之间的推拉门,将客厅扩大的同时最大的引入自然光。
▲原客厅现状(从客厅望向大门位置)
▲电视采用了嵌入式,下方的柜体不仅隐藏着部分的插座线路,更多的是满足业主的收纳需求。
▲原卫生间现状
▲卫生间干湿分离。淋浴区域利用包水管的空间设计了壁龛,用来放洗浴用品。并且用暖风机取代了原先的浴霸。
▲马桶后的花砖是业主精心挑选的,一些小小的浴室细节(如折叠浴凳)也看出了业主对父母的体贴。
▲原次卧现状
▲次卧是女主的房间,整面的落地飘窗是卧室的重头戏!蓬松的靠垫暖化大理石台面的冰冷,面朝正南的优势也被充分利用,一年四季,这里日照充足,窗外楼下的景观树也会随着季节而变换着颜色,丰富着室内的视野。
改造前的次卧窗户非常小,室内采光不足。改造后,旧墙拆掉重新砌墙改成大飘窗(改动外立面的话一定要事先征得物业同意哦)。新砌外墙的话一定要记得刷好防水涂料和保温处理!
▲无论在这里下午茶或是发发呆都有着绝佳的氛围,同时这也是家中俩只猫最爱打盹的宝地之一。
▲女主有在家办公需求,在卧室墙角放置打印机的位置,并预留了插座和网络;因为不想用中央空调,所以为了避免丑陋的空调管道露在外面,将壁挂空调进行了嵌入式处理,这样的做法需要提前将空调水管预埋在天花里面。
▲考虑到女生的衣服比较多,设计了步入式衣帽间。同时在进门的角落也设置了储物收纳柜。
▲床头的灯光在晚上犹如悬挂在天空的月亮。
▲主卧
业主的父母对于自己的卧室除了要求居住舒适之外,更多的是希望多些储物空间。所以在进门一侧和正对床的一侧做了收纳柜。
▲开放式的书房主要业主父亲偶尔办公的地方,开放式的空间满足空气对流的同时也可以达到和家人的一个互动。业主担心后期的打理问题,所以没有做开放式的书柜,现场制作的柜体搭配定制的柜门。
▲书房区域原始现状图。
▲改造后的书房。
▲吊柜下设计了暗藏灯管,柔和的灯光渲染气氛的同时,更大程度的减轻了了光对人视线的刺激。
▲利用原有阳台的角落,在客厅阳台的两侧区域分别做了隐形的洗衣空间和收纳空间(里面预留了插座,可以放置吸尘器)。
▲阳台外的江南水景。
『二层阁楼 —— 休息区』
▲从楼梯上到阁楼首先映入眼帘的是一扇巨大的落地飘窗。为了将视野最大化且可舒适的欣赏窗外之景,在原有现状的细条门框基础上加了一处飘窗框架,边框采用科定板。考虑后期方便打理,采用了大理石台面。侧边用台阶自然过渡出进出室外的区域。
▲阁楼休息区域原始现状
▲平日沏上一杯茶,倚窗而坐欣赏随着光线的转移及天气阴晴变化的自然之景。
▲飘窗的一侧为斜面屋顶。由于层高的限制,最低处只有0.41 M,根据一个成人方便进出的位置隔出了一个小空间,作为家中两只宝贝猫的私有空间。栅栏门和飘窗之间的一处黑板漆,可以尽情发挥创作。
『二层阁楼 —— 厨房&餐厅』
▲阁楼厨房区域原现状。阁楼厨房的区域立面上呈三角状。两侧都是斜屋顶,最高处为2.1m,最低处为0.4m,第一感觉是空间受到了好多限制。
▲改造后的开放式厨房。改造后的厨房空间是不是感觉宽敞了好多!
▲通过一张立面图可以更清晰的揭开其中的奥秘:通过两道隔墙,把两侧低矮的地方隔成储物空间,中间高的区域作为厨房餐厅,这种以退为进的做法,看似减少了使用面积,但空间实际感受起来却宽阔了许多。
▲因为天花为斜面,不方便安装灯具,所以在台面上方做了隔板并暗藏灯管,这样不仅解决了照明问题,也方便放置厨房用品,燃气灶采用的集成灶,这样烟管走地面就可以了。
▲厨房的周边利用率有限的空间也没有浪费,做了储物柜,大大的满足了业主父母的使用需求。
▲阁楼的角落虽然为斜面屋顶,但根据成人的高度隔出了一个卫生间,完全不影响使用的舒适度。卫生间的磨砂玻璃门保证隐私的同时也不影响采光。
▲卫生间的里面还有一扇门,内部也是储物空间。
▲餐厅区域是最让业主一家满意的地方之一。非常关键的一点就是把原先封闭的室内空间变得通透起来——沿着非承重墙开了一扇窗,最大程度的将自然光线及户外美景引入室内,再加上顶上的天窗,给整个空间带来了更多的光影关系。更重要的是,这也是一家人交叉最多的一个区域。
▲斜屋顶天窗。
▲岛台既是餐桌又是备餐台,也是亲朋好友交流的好地方。
▲餐桌上的蔬菜都是刚从阁楼户外区域现采摘而来,超羡慕~~~~~~
『二层阁楼 —— 户外菜园』
▲阁楼的户外区域设置了一处菜园和阳光房。
菜园种满了各式当季蔬菜:小西红柿、黄瓜、秋葵、小青菜、辣椒等……
▲阳光房的顶棚用普通不锈钢方管做了烤漆处理。考虑到业主有晾晒梅菜的习惯,在顶棚设计了可以晾晒的吊杆。同时沿着边框打了很多圆孔,这样系上绳子方便菜园的攀爬植物爬满阳光房。
▲空调隐藏在菜园之中……
外面的风景~~~~~
▲阁楼的户外菜园是业主父母呆的时间最多的区域。因为这是专属于他们的私人后花园/菜园。看着那些健康生长的蔬菜瓜果、充足的阳光,这一切的景色都让人分外的欣喜和激动,站在屋顶眺望远方,耳畔是微风浮动,时光犹如定格一般。傍晚,坐在户外的餐桌旁,伴着暖黄的灯光,感受这个院落般的庭院。随手采摘的西红柿、黄瓜、秋葵转眼成为当下的美食,如诗一般的生活,健康又充实……
▲小西红柿
▲辣椒
▲黄瓜
▲茄子▲第一次知道秋葵原来是这样生长的~~~
▲第一次知道秋葵原来是这样生长的~~~
▲丝瓜
▲刚长出的幼苗
▲幸福生活像花儿一样继续^_^……
—— 原创 ——
文/编辑 | 如壹設計工作室-慈猛
图片 | 如壹設計工作室-慈猛
QQ/微信 | 418086627
相关案例推荐
慈猛 如壹設計
设计师相关作品

粤公网安备 44010602000156号