前言:
当人们感觉到生活的压力越来越大的时候,大家便开始尝试寻找一种自由、放松、娴静的精神状态,对于家居的设计,也是同理。在氛围营造中,我们努力试着保存那种稍纵即逝的时光,营造更令人幸福的家居环境。也许只是一个角落,也许就是下午或傍晚的一段光阴。
房屋信息
案例名称:初见
项目坐标:深圳梧桐苑
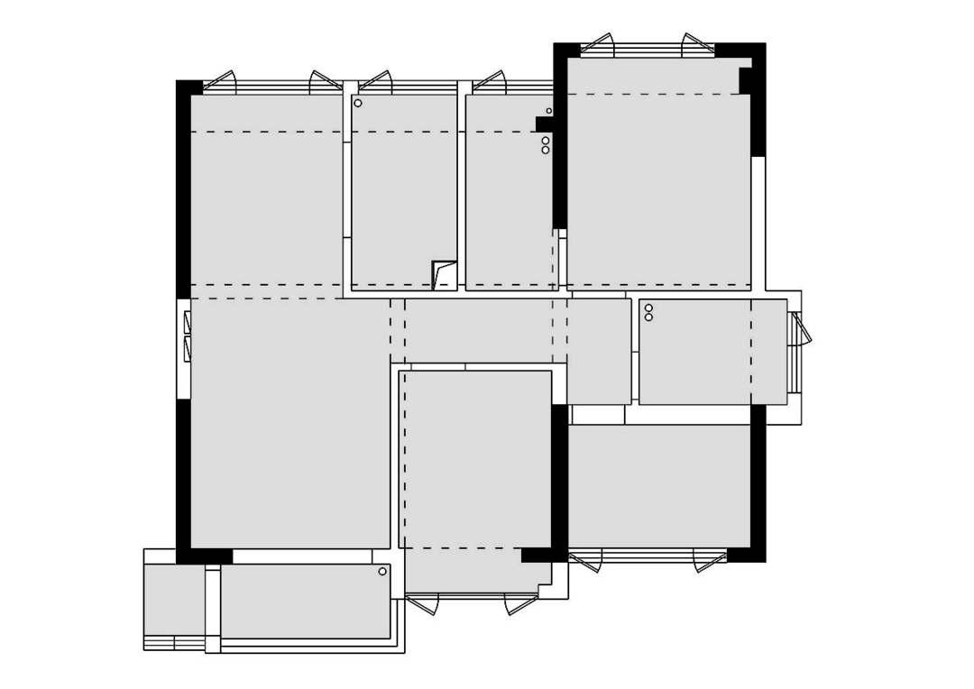
房屋面积:90平方
装修风格:现代北欧
本案设计:熊志伟 成晓一
摄影:蓝灰
设计故事
本案的主人是一对年轻时尚的新婚夫妇,有自己的审美和追求,喜欢原木的自然和北欧的清新,崇尚简约明快,希望我们能够为他们的家营造出一个清新雅致的环境.渡过一段幸福甜蜜的蜜月时光。
本案原始结构为三房两厅两卫,目前只有夫妻俩居住,父母偶尔来小住,两三年之内不会考虑小孩,偶尔会在家办公,喜欢阅读的氛围。根据以上要求,我们提出“以时间换空间”的设计理念,对户型做了一个改造,去掉主卫,改成衣帽间和化妆间,把主卧对面的房间改为书房,并且和主卧相连,主卧以推拉门的形式和书房分割,在小孩未出生之前作为书房,出生之后三五年内,书房可改为婴儿房,方便大人照看,等小孩大一点需要一个独立房间的时候又可以把客房改为小孩房。这样的平面布局即考虑了当下,也预见了未来...
厨房墙面选用小白砖和木色橱柜搭配,一个精致有爱的厨房是家的心脏,茶、咖啡和享受亲手烹饪的美食都在这里实现,在厨房里制作一杯热饮,或者品尝刚出炉的甜点,都会让人在深感幸福和生活的美妙。
主卧采用低饱和度灰绿色,穿插原木色调,营造温柔静谧的氛围,针织毯随意的搭在床上或者裹在身上,慵懒的感觉令身心愉悦。
客房榻榻米依窗而设,巧妙利用原飘窗,有效的利用了每个空间,原木元素在客房随处可见的,除了惬意和温暖,便是干净明快的空间格调,光线明亮而柔和,令身心愉悦。或是,午后打在身上的一束阳光,抱着熟睡的猫咪,过一段慵懒的日子。
这世上如果有天堂的话,天堂应该是图书馆的模样吧,书房是灵魂的所在地!图书馆太大,一间书房足矣,在这一方宁静,找到心灵的归属地。
相关案例推荐
涵瑜设计
设计师相关作品

粤公网安备 44010602000156号