前言:
									本案例是一家三口的住宅,屋主夫妻两人性格随和,爱好运动对工作严谨细致;
风格上没有明确的要求,喜欢自然温馨氛围和质感的材质,想要家里能多有一些木制和金属元素,但对生活动线、品质、细节上的要求比较高;
设计师根据屋主的需求与喜欢的元素,在风格上没有特别定义某种风格,而是根据屋主的喜好,空间糅合了现代、中古、包豪斯不同的元素去设计;
希望业主走到自已家中有一种功能满足和情绪放松的生活场景,从而让业主在家中感受到舒适,放松,自由,温馨,自然的感觉。
									
原始户型整体的空间格局还是比较方正的,动静分区明确,采光通风良好。客厅与餐厅形成一体化开放格局,连接南向阳台,增强空间延展感;
所以设计师更多的是需要在一些细节与功能设计上进一步优化,以贴合屋主需求。
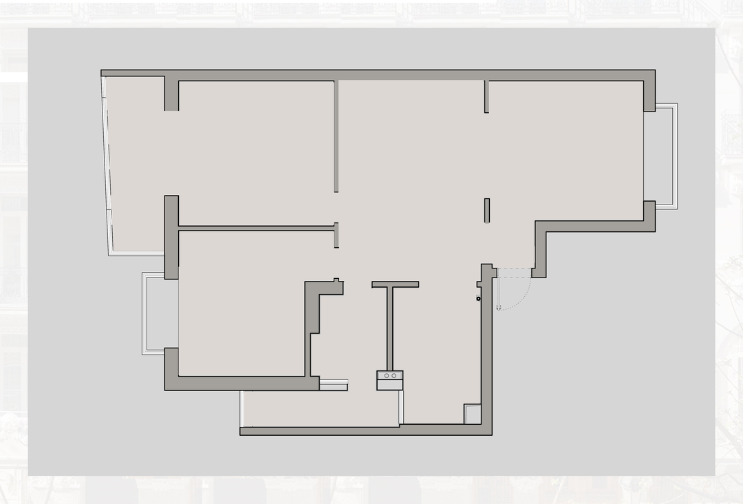
平面设计图
1、进门将墙体向儿童房内推,做嵌入式储物柜来满足进出门的储物收纳需求;
2、将原有卧室和客厅、客厅与餐厅之间的墙体进行拆除,通过新建增加客厅和餐厅尺度,拆除客厅和阳台之间的移门,延展室内空间;
3、主卧门移位,打开厨房、卫生间,进行空间格局重组后,不但多了“洄游动线的中岛区”,还实现了“干湿分离卫浴”“LDK一体化布局”让空间显大了20㎡不止;
4、厨房根据屋主的烹饪方式做了半开式设计,采用吊轨移门来满足不同空间需求;
5、把阳台打通与客餐厨连接,减少空间壁垒,强化生活场景的自由流转;
原本玄关空间比较狭小,采光也不好;我们将进门玄关墙体内推,来增加玄关柜尺度;并采用墙体与玻璃砖穿插设计,以及悬空鞋柜,让空间尺度和光照得到释放。
地面材质运用大块的水磨石铺贴做分区,增加空间材质的质感;
将原有卧室和客厅之间的墙体进行拆除和新建,来增加客厅和餐厅尺度,并拆除客厅和阳台之间的移门,打破空间界限,来扩展视野与室内采光,让整个公共区域更加通透开阔。
大面积的落地窗引入充足的自然光线,让整个空间明亮而温暖。同时选择摈弃复杂的背景墙装饰,选择大面积留白延伸至顶,低保和色系搭配无主灯设计,来营造家的腔调与精致氛围;
一体式到顶的储物柜,不仅让视觉上具有和谐统一的开阔整洁感,同时实用功能与空间质感也得到了大幅度提升;
在现代风的基础下,以金属与木制材质为空间增添温馨、理性的融洽感,搭配减法的设计,来展现出随性灵动且层次丰富的空间状态,同时视觉上清爽、松弛有度的氛围,让生活美学的内涵得到了具象化呈现;
客餐一体,流畅的动线串起日常生活的不同切面,空间之间的叠加与联动,其核心是重新定义生活方式与生活理念的一种创新与扩展,在家就能够享受到丰富、多元的生活;
相关案例推荐
 
							毛美玲
设计师相关作品
 
 
 
												
													
														
															
																 
												
													
														
															
																 
												
													
														
															
																 
												
													
														
															
																 
												
													
														
															
																 
												
													
														
															
																 
												
													
														
															
																 
												
													
														
															
																 
												
													
														
															
																 
												
													
														
															
																 
												
													
														
															
																 
												
													
														
															
																 
												
													
														
															
																 
                                                     
                                                         
                                                     
                                                         
                                                     
                                                         
                                                     
                                                         
                                                     
                                                         
                                                     
                                                         
											
										 
											 
											 
											 
											 
											 
														 
														 
														 
														 
														 
				 
                
 粤公网安备 44010602000156号
粤公网安备 44010602000156号