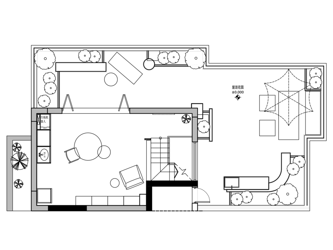
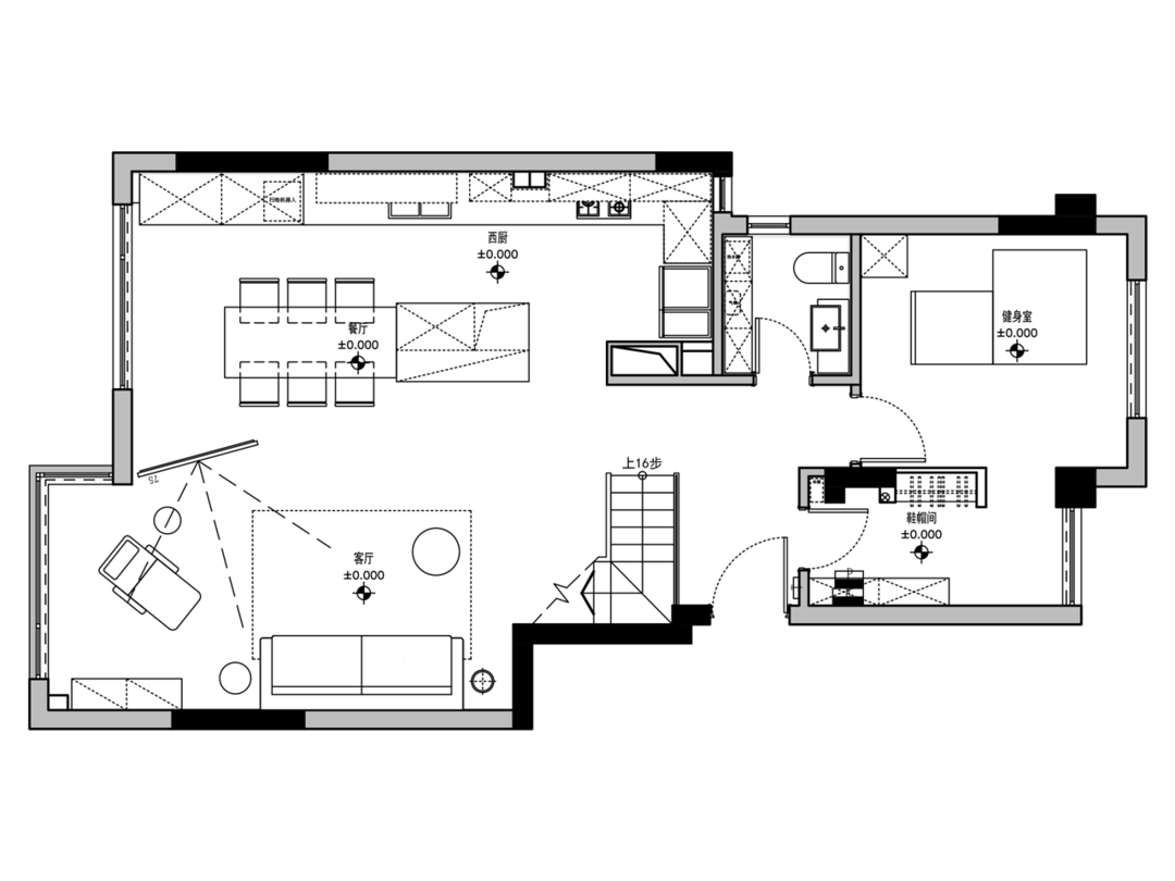
前言: 本案面积210平米,目前主要是业主独自居住。希望自己的空间是开放式的,空间是敞亮并且整体放松的感觉。所以拆除原有厨房空间,重新分配整个公区。如此,模糊餐厅与厨房界限。让餐厨变得宽敞而明亮,餐桌与岛台相连。与业主讨论后觉得可以控制卫生的前提下,首次采用了地板通铺作为西厨地面。
客厅
SS(业主化名)的家,像一杯手冲咖啡——温暖、醇厚,带着世界各地的风味。长期在国外出差的她,每次回家最渴望的,就是彻底放松。于是,我们把家设计成了一个温暖治愈空间,自然质朴的木质基调,去容纳未来的故事。
SS有收集咖啡杯的爱好,利用工作之便在世界各地收集了上百个咖啡杯。这也成了我们理想的表达业主个性的设计素材。
相关案例推荐
网友评论
境壹空间泰果
设计师相关作品
编辑精选

粤公网安备 44010602000156号