前言:
这个家的业主是一名瑜伽老师,酷爱运动,对运动的坚持是可以让她的地下室变得很特别,有星空泳池,有整面攀岩墙,还有动静相宜的开放式书房,一切都照着她想象的样子还原。
很多人肯定想着,游泳池,攀岩墙,一看就是敢想不敢落地的设计,BUT真的有人敢想敢做!做一个自己独享的健身空间真的太太太爽了!
很多人对于地下室的操作都有顾虑,比如潮湿,或者采光比较差,如果装泳池会不会说增加风险?
首先这个家我们在地下室启动了三恒系统,保证她的恒湿,恒温,恒氧,跟本身楼盘的精装配置也是一致的,其次设计师在泳池旁边也是增加了除湿功能的。
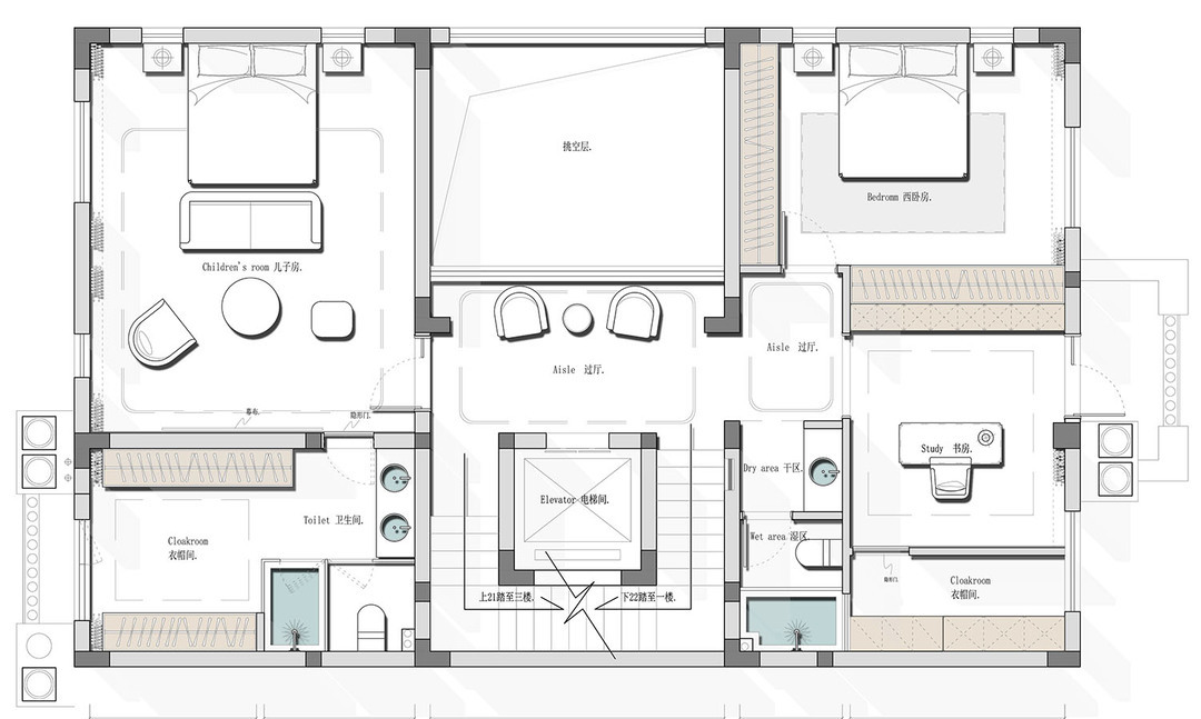
地下室我们是做了一个半挑高的设计,一方面我们要满足业主的攀岩墙的需求,另一方面半挑高的设计可以更加丰富地下室的功能。
整个地下室,分上下2层,半挑高设计,入户就是一个收纳和卫生间的功能区域,满足业主平时健身完,在这里换洗出门的一个动态需求。半挑高的空间,是有一种入户豁然开朗的视觉空间感。
各个空间都有一个不一样的视角,都是半打开的状态,没有做封闭,而且设计师还利用了造型墙,使得每个空间望去都是一种风景的状态。
在整个视角里面我们是可以看到业主的各种喜好的,等于是在空间里面打标签,非常具有个人特色。
即使在一个充满运动活力的空间里,设计师还是大量使用了一些具有“静”的元素的软装,来中和生活与兴趣,兴趣与空间的关系平衡。
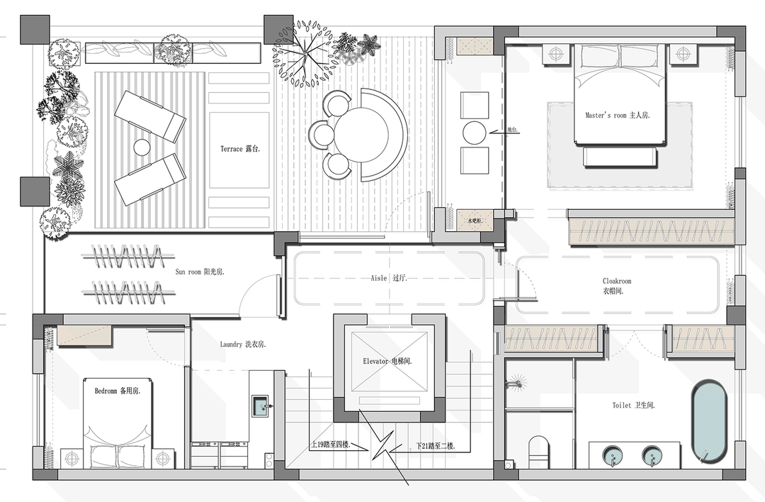
1F的整体空间以精装交付为主,没有做过多的改变,只是通过简单的软装来讲原本没有生命力的精装交付,变得有趣精致。
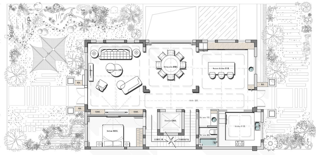
1F我们主要以院子,客厅,以及一个植物冥想室为主。1F的植物室有一部分空间我们是拓出去的,一方面可以增加植物采光,整个空间也会变大。
卧室的硬装以精装为主,设计师只是增加了一个阳台的融入,变成一个榻榻米的休闲空间,还加入了一个咖啡角,来增加空间的便利性。业主是一个非常懂得生活的人,空间里很多软装都是来自于业主之前家里比如名品灯具/床头柜还有一个电视柜都保养的非常好。即使当下使用也是毫无违和感。
卫浴空间专门利用了一个小空间放置了泡澡浴缸,和淋浴分开,是一个独享空间。
木色在纯白色的空间里多了几分质感,这种质感是天然的,古朴的,原始的,安静的,也同时具有力量的。业主在享受运动的同时也在享受生活,家里随处可见的绿植就能感受到业主是一个内心平静,外表年轻有力量的生活状态。
相关案例推荐
鸿鹄设计
设计师相关作品
编辑精选

粤公网安备 44010602000156号