前言: 厌倦了城市的喧嚣,渴望拥有一个舒适、时尚、充满高级感的家,这套175㎡现代住宅,通过设计师巧妙的设计手法和色彩搭配,描绘了一个简约而又不失高级感的居住环境。同时,能够融入居住者的喜好和生活习惯,打造一个完美的居家环境。
改造前:
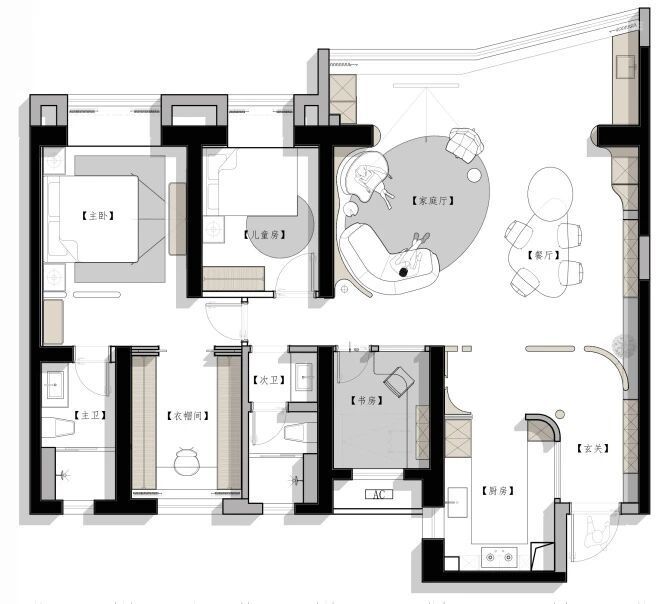
1、卧室套房仪式感欠佳,基础收纳储物量不足
2、户型较为方正,动线流畅一线独揽江景,采光充足
改造后:
空间的储物功能大大的增加,开放式餐厅贯通客厅,让整个空间更加的通透,经过设计师改造让整个房子成为一个理想的家。
客厅与开放式餐厨空间贯通一体,天花板以圆润的弧线勾勒,几何线条交错,勾勒出层次丰富的空间感。
异形的白色餐桌与吧台搭配,使整个空间的色调明亮而又高级,营造出一种既现代又温馨的氛围。
在书房与走廊方向开了一扇窗户不仅仅与客厅有了互动性,同时也让整个走廊更加通透明亮。
主卧以大地色木饰面为基调,加以氛围灯光衬托,使得整个卧室都变得轻松温馨起来。
床头背景与天花板都是弧形有种被包裹的感觉使空间线条更加流畅,让整个卧室显得更加柔和、温馨。
大地色与蓝色的组合,既符合儿童对自然的亲近感,又通过简约设计赋予空间长久生命力。
无论是小户型还是多功能儿童房,这一配色方案都能灵活应用,为孩子的成长提供美学与功能兼备的理想空间。
一个让小姐姐心动的衣帽间,不仅在于其收纳功能的强大与空间的优雅布局,更在于它能否为你提供一个舒适、温馨且充满个性的私人空间。
衣帽间U字形设计,米白色的柜体搭配对色彩比强烈的软装营造空间的层次感。
相关案例推荐
时一设计
设计师相关作品

粤公网安备 44010602000156号