前言:
往里走,安顿自己。
许倬云先生这句简单的话语,像一束温暖的光,照进当代年轻人疲惫的心灵。在这个步履匆匆的时代,家不再只是栖身的居所,更是一处能让灵魂靠岸的港湾,一个可以卸下所有疲惫的静默剧场。
这套位于上海金山133平方米的海景居所,承载着一位母亲最深沉的爱意。退休在家的女主人,亲手为儿子打造了这个面朝大海的度假空间。她希望当儿子推开家门时,都市的喧嚣便自动止步于玄关,取而代之的是无垠的海景和彻底的放松。这份细腻的用心,这份对现代美学的独到理解,无不彰显着母爱的温度与智慧。
设计师以极简的手法重构空间,将原本局促的四房格局打开,赋予其全新的呼吸感。木质窗框如同画框,将流动的海景定格成一幅永不完结的画卷。黑与白的碰撞彰显着现代男性的审美格调,而温润的木作又恰到好处地中和了空间的硬度。光影在留白处游走,路径在开阔中延展,每一个细节都在诉说着:这里不仅是一个家,更是一处让身心安顿的精神领地。
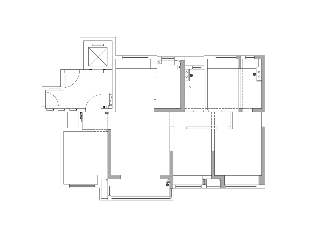
原户型比较周正,坐拥无敌海景,但不大的空间却被切割成几个小小的房间,使得空间异常局促。考虑到房子的度假属性,以及一个人住的超绝优势,就给了这套房子很多腾挪空间。
客户需求:
1) 充足的储物和家政间
2) 一个大大的餐厨空间
3) 希望把海当窗景
结合屋主的需求,我们对空间做了如下改造:
1) 入户正对着的次卧改成家政间和衣帽间
2) 将餐厅和厨房合二为一,使其成为一个独立的餐厨空间
3) 把客厅与阳台打通,并通过地台衔接,让空间自然过渡
4) 拆除与客厅相邻的卧室,改成一个全开放式的书房
5) 将北面卧室改成衣帽间并入主卧,利用过道区增设衣帽间,并成功将卫生间三分离,至此主卧就成为一个完整的大套间。
落地窗像一道被施了魔法的边界,将海景毫无保留地引入室内。站在客厅中央,视线可以毫无阻碍地穿透玻璃,直达海天相接的远方。这片玻璃幕墙成了最奢侈的画框,四季轮转的风景在其中自然更迭,不需要走出房门,就能感受时序变迁的呼吸。
我们用白色极简与自然光影诠释现代生活的轻盈与通透,落地灯、棉麻沙发、地台矮榻和USM模块电视柜,遥相对望又融为一体,气氛柔和而静谧。清晨的阳光倾洒进客厅,赋予了空间温润的质感。
光仍在引导,映照出通往更深处的路径,将私人的内心世界次第展开,原本开放的情绪也随之内敛。此刻,我们席地而坐,饮茶看海,时间都不再陈述,让人得以在静默中与自我相处。
壁挂式书架是这个容器中的特殊存在。它与客厅、餐厨空间、书房形成多个连续的对景,成为起居之间的延伸。书架上的陈列随季节更替轻轻变动,一种未言明的生活节奏,从中缓缓展开,以一种近乎自然生长的方式自由蔓延。
中西厨空间以餐厅为中心对称展开,像一对展开的羽翼。左侧的西厨,咖啡机与料理台冷静对望,右侧的中厨,锅铲用具和调料罐沉稳地悬挂在灶台上方,两种截然不同的烹饪哲学在此对峙又和解,而居于中心的餐厅,则成了这场味觉对话最忠实的聆听者。
餐厅的圆形飞碟灯垂下柔和的光晕,在深色实木餐桌上投下温暖的光斑。这个被精心设计的围合空间,有着神奇的向心力,无论从哪个厨房区域望过来,视线都会不由自主地被餐桌吸引,形成一种向内安顿的收拢感。
那道可以完全收进墙体的玻璃移门,是空间最灵巧的变奏曲。生活场景通过玻璃移门,在开放与遮蔽之间切换,使家中的每一次走动都多了一分不经意的观感节奏。
目光在空间中游走,处处可见精心布置的风景线。连水槽下方的垃圾桶都被赋予恰到好处的美感。
当推开通往卧室的隐形门扉,空间的韵律便由开放转为私密。与客厅如出一辙的木质窗框在这里延续着统一的设计语言,将室内与壮阔海景温柔连接。利用飘窗增设的抽屉式收纳,将实用功能发挥到极致的同时,也避免与客厅地台的功能重复。
精心打磨的实木框架,在阳光下会散发出淡淡的松香,精心打磨的实木框架,与白色墙面的淡雅形成微妙的平衡。
空间向北面无限延伸,形成一条流畅的动线,将睡眠区、衣帽间与主卫浴空间完美串联。这种线性的空间布局,既保证了功能的完整性,又创造出一种渐入私密的仪式感。衣帽间的定制柜体采用与卧室相同的木质元素,让空间过渡自然而不着痕迹。
三分离的主卫通过玻璃移门巧妙地过滤光线,砖红色的长条砖,赋予沐浴仪式感,暗示着从日常到疗愈的空间转换。无论是空间的布置、黑色淋浴的选择,还是马桶区的迷你清洁系统,无不呈现一种基于功能与美学的平衡观念。
次卫则非常注重与其他空间的对话,黑色半墙、黑白马赛克和复古柚木玻璃门,共同营造出一种复古又时髦的氛围。
主卧同款飘窗设计在这里同样发挥着不可小觑的功能,通过巧妙改造,这一方寸之地被赋予了多元化的实用价值。设计师采用模块化洞洞板系统,让这1.5米的飘窗区域瞬间变身为多功能工作站——既可悬挂绿植打造垂直花园,又能安置收纳篮存放日常用品,搭配可调节隔板后更是化身迷你书桌或咖啡角。侧墙嵌入的顶天立地柜体与洗烘套装实现完美融合,线性风口简洁利落,柚木柜体质感醇厚,每一处细节都尽显精致。
住宅不仅是容纳日常的器皿,更是一种对时间与生活节奏的回应。在高速流转的信息时代,居住的意义不止于遮蔽与安顿,更关乎内在秩序的重建。
相关案例推荐
史鹏巍
设计师相关作品

粤公网安备 44010602000156号