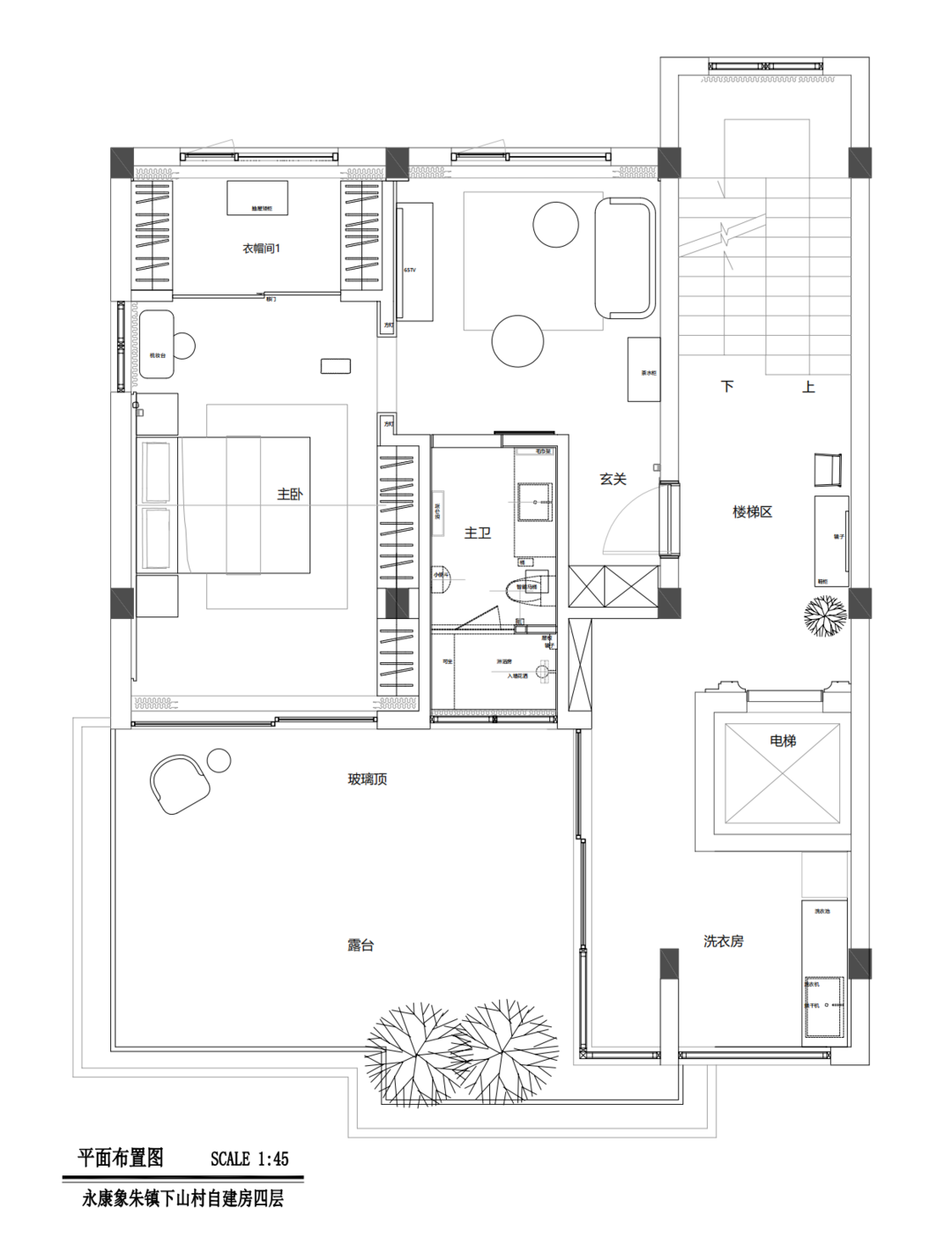
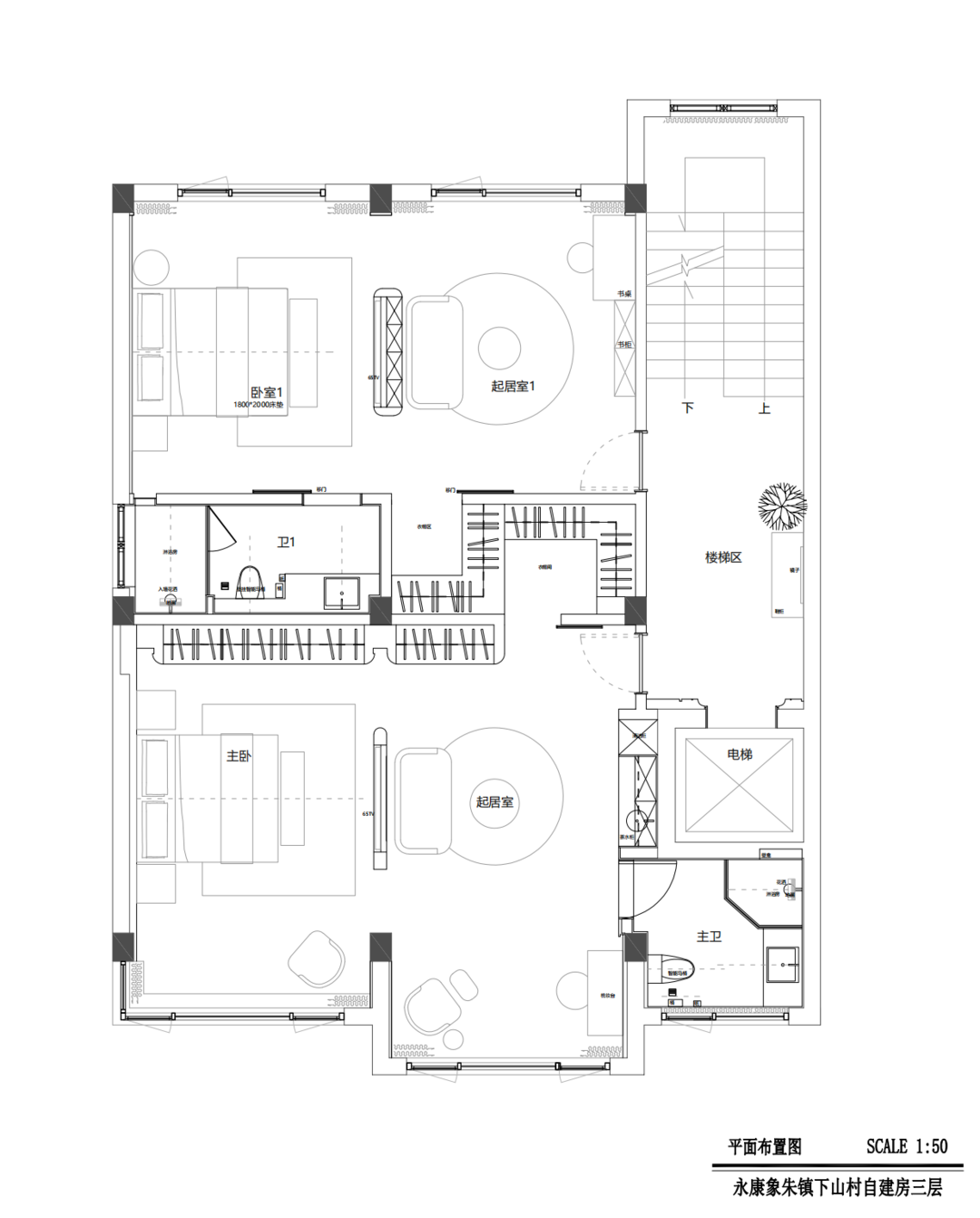
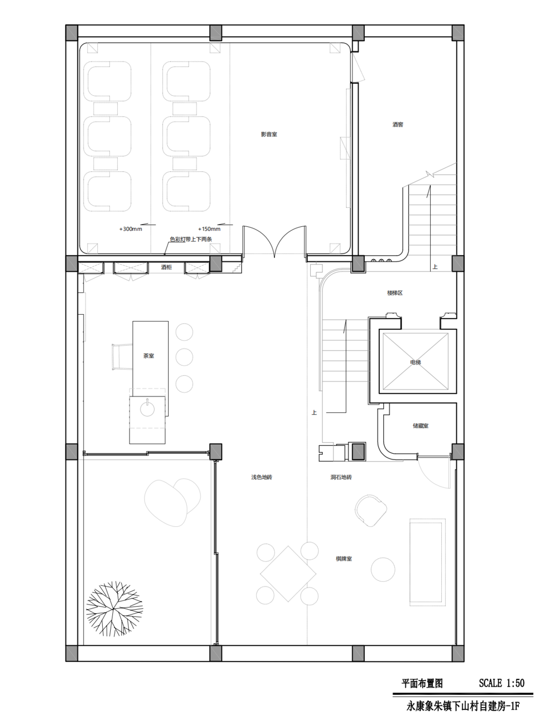
前言: 作为农村自建房给父母的养老宅,遵循“因地制宜,尊重原貌;功能优先,实用至上;舒适健康,环保安全;安全耐用,易于维护”几个原则,整体重新拆分重组再次设计。
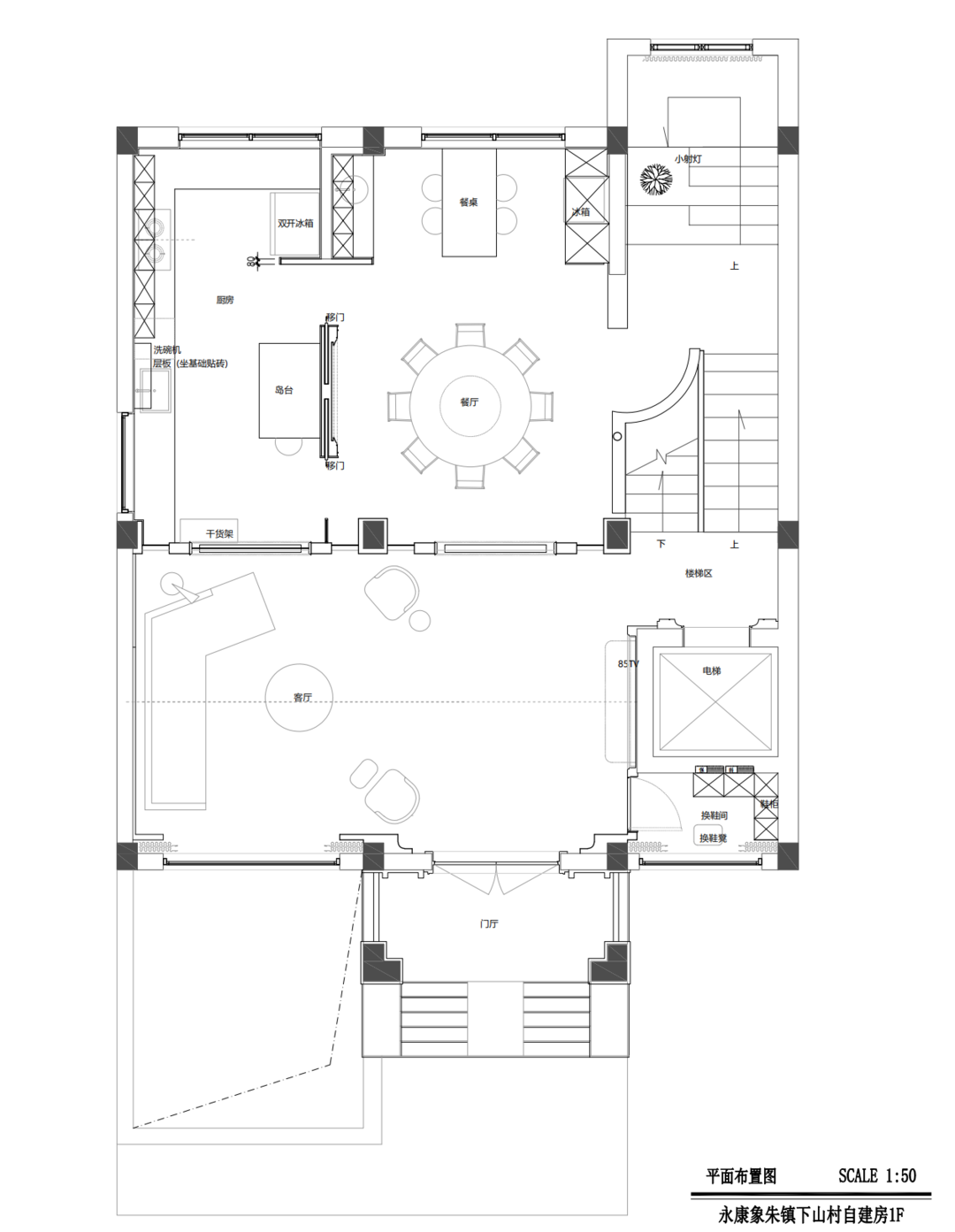
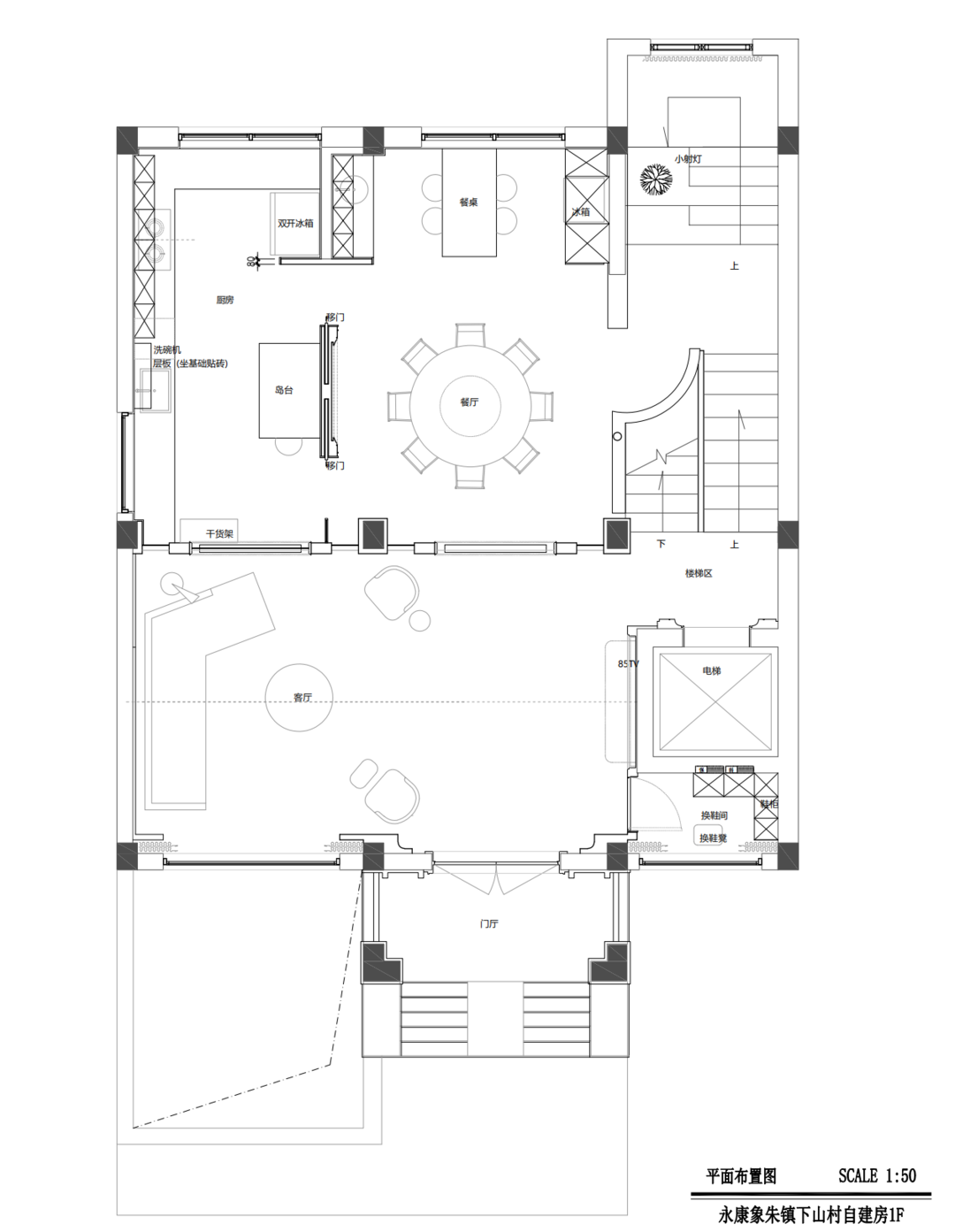
餐厅
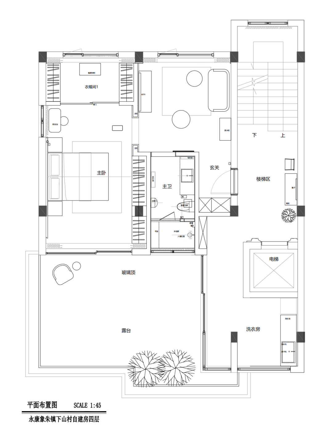
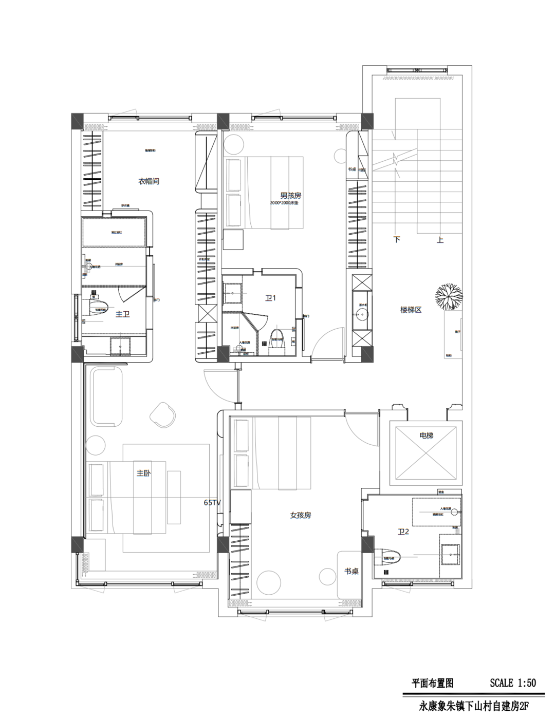
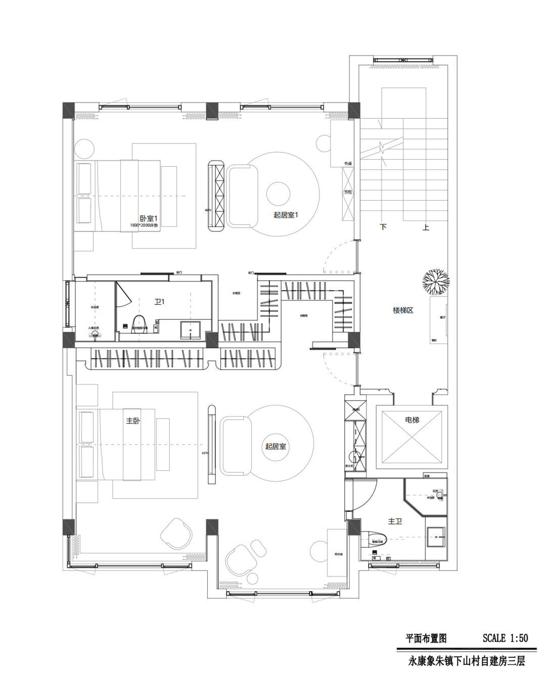
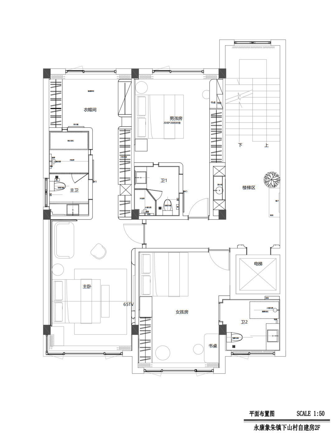
卧室
儿童房
相关案例推荐
网友评论
本空设计
设计师相关作品

粤公网安备 44010602000156号