前言:
【项目概况】
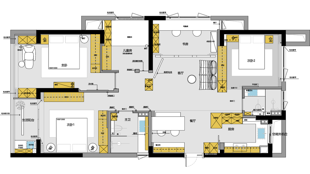
套内面积:110㎡
原始户型:方正四房两厅一厨两卫
户型缺陷:
1.中部入户缺乏玄关过渡空间
2.厨房面宽受结构限制偏小
3.南北跨度长导致中段采光不足
【客户需求】
• 保留四房功能 + 独立书房
• 满足三代同堂(父母房+儿童房+主卧+预留房)
• 开放式游戏书房
• 空间通透开阔
• 合理收纳系统
【设计策略】
设计理念:采用室内建筑思维,通过"空间盒子"构建视觉焦点与功能分区
1.
空间重构
拆除所有非承重墙
重组功能布局与动线系统
植入多动线+洄游动线提升空间趣味性
2.
公共区域改造
玄关+餐客厅一体化设计
客厅窗边设置悬浮书桌区
创新分割:
定制弧形门洞隔断(3个连续拱形)
隔断两侧完全脱离墙体
内部配置纱帘保证采光
材质配色:
浅色系为主基调
木色渲染空间温度
深色局部点缀增强立体感
3.
厨房优化
浅色系主色调延伸视觉
木色地柜细节呼应整体
最大化利用有限面宽
4.
餐厅设计
餐桌顺应空间走向摆放
卫生间墙面全镜面处理
序列感横向吊灯强化视觉延伸
镜面反射解决空间逼仄感
5.
通道处理
独立"灰空间"体块设计
入口处设置功能柜:
空间比例分割
动线主次区分
增强收纳功能
保证卧室私密性
6.
儿童房创新
榻榻米床+收纳系统
悬浮衣柜(底部黑色处理)
移门+长虹玻璃隔断:
改善通道采光
增强空间通透感
7.
主卧设计
功能优先原则
温馨氛围营造
局部材质对比点缀
8.
次卧规划
自然材质为主
温暖色调统一
与公共区域形成呼应
9.
卫生间
纯功能性设计
注重使用舒适度
【设计亮点】
• 空间流动性:多动线系统创造趣味体验
• 视觉魔法:镜面反射扩大空间感知
• 光影游戏:拱形门洞+玻璃隔断创造光影层次
• 功能复合:收纳系统与空间分割一体化设计
• 材质平衡:浅色基底+木色渲染+深色点缀的立体构成
注:所有改造基于原始户型结构,通过非承重墙拆除实现空间解放,采用建筑化思维重构室内空间关系。
相关案例推荐
本空设计
设计师相关作品
编辑精选

粤公网安备 44010602000156号