前言: 在整体布局上,设计师打开公共区,最大限度平衡原始承重结构与宜居空间的尺度需求,完成内部架构的体系与框架,通透的内部空间,良好的采光与通风系统,建立与屋主同频的情绪连结。
墙面的多层次肌理,将光或朦胧或皎洁的传递,空间呈现着一种物我皆忘的宁静。舒缓的节奏慢慢的叙述空间之美
现代的生活方式从简单且有秩序向生活复杂且出人意料的观点转变,直至达到精神、物质的双重满足,这是未来必经的过程,欲望使之无限放大。
创造与享用一日三餐,搭配与品味美食的过程,就像是人与空间的互动,空间中的各类元素,如家居、灯饰与器皿的搭配则形成一道精神的美食,只不过前者直达味蕾,情绪立即被调动,而空间的“情绪”则需要慢慢的释放。
人们渴望得到内部的平静,但却无奈的在繁华中沉浮。理想与现实彼此矛盾,一方渴望征服另一方,持续对峙,家是维持他们平衡的支点
朝阳日落,在某一时刻悄然映入墙面,缓慢的流动,渐隐渐弱,自成空间艺术,光阴与暮色的变化带来空间的一日一景。
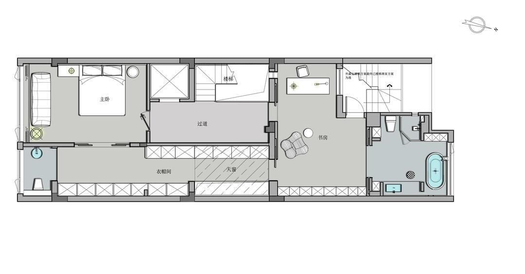
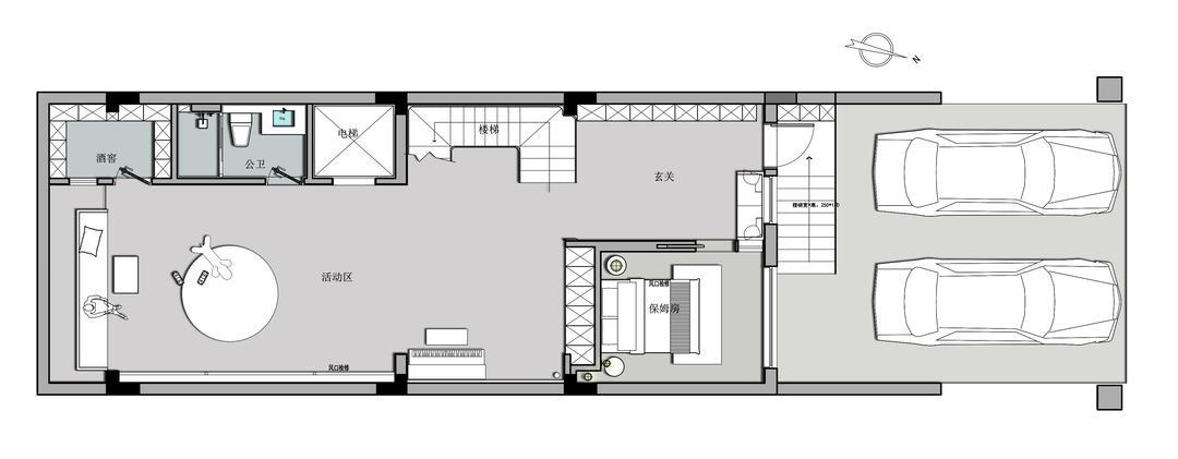
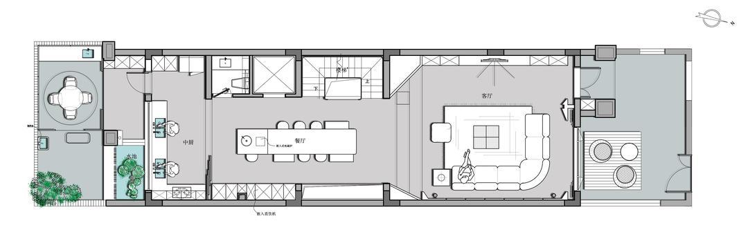
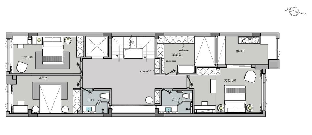
打破传统以功能界定空间的平面布局,每一层都拥有平等的生活品质。影音空间汇聚于地下,生活空间贯穿一楼,空间材质与色调形成明显的差异,将家庭空间提升至难以比拟的舒适私密高度。
我们构建稳固的自洽逻辑,再返回自然的生态中找寻完整的精神内核。
家是生活的容器,项目位于东莞蔚蓝城邦,通幽安静,私密性强,安静宜居。原建筑空间为地下一层结合地面两层的独栋住宅,当设计开始介入这里,新的布局是理性而克制下的适度。
原木调寝居以低饱和质感与自然光息息相融,墙与地色系一致,目之所及皆柔软,且未见丝毫造作。线条勾勒空间,笔直爽利。
理想的住宅应当是什么样的?如云外仙境,承载万物;家人常在,四季相伴,这是家的模样。
简雅陈设,以平铺直叙的清水感温煮梦境,如见稻香清甜,使人愈渐松弛、心驰神往,浓郁温馨情绪在卧室缓缓晕开。
相关案例推荐
木子仁室内设计
设计师相关作品
编辑精选

粤公网安备 44010602000156号