前言:
设计强调了人与家具、人与空间的和谐关系,实现了“共栖”的有机设计理念。
给空间营造了在温暖暮光中,人、物、空间和谐共生的自由生长氛围。
本期案例是位于前海润峯府的精装改造,原始户型格局中规中矩,较为方正。在接到委托者的需求之后,设计师在设计构想的时候,希望本案例能营造更具烟火气及温度的调性,强调人与空间的和谐关系,让空间更加灵动。
建筑结构
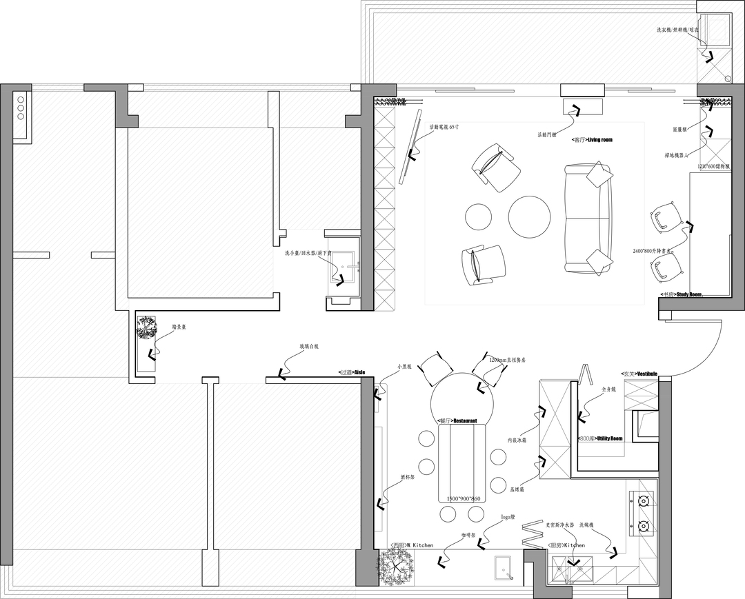
设计师将原始四房敲掉了入户的一个房间,将空间打开,将客厅与书房的使用功能进行了合并,客厅没有中规中矩的功能布局,摒弃传统电视背景墙及沙发摆放方式,而是留有足够的空间允许生活带来的可变性,可以是儿童友好的亲子活动天地,亦可以是自由随性的书吧。
设计方案
灵动地让空间具备更多的形态,满足不同生活场景的需求。原始入户鞋柜功能单一,我们巧借厨房空间增加了八百库,空间虽不大,但足以满足一家储物需求。餐厨区是整个家最具烟火气的区域,就餐区,西厨区与中厨区互动性强的同时,又保证了各空间的独立性,中古调性的色系混搭美式吧台的形式,空间毫无违和感,却营造了日咖夜酒的松弛氛围。融合丰富的绿植点缀,让整个餐厨区更具备生气及呼吸感,让家的“深夜食堂”治愈了一切疲惫情绪。
我们以“温暖治愈”为核心理念,通过材质、光影与自然元素的有机融合,构筑了一个兼具时光温度与现代呼吸感的居住场景。以低饱和的奶油色、陶土棕为底色,搭配胡桃木、藤编等中古元素,奠定沉稳而柔和的基调;而弧形线条、丰富的绿植与点缀灯光,赋予空间拥有更多的情绪及温暖的调性。绿植不仅是装饰,更是空间节奏的调节器。一棵高大的黄金榕在单椅上方伸展枝干,其摇曳的阴影成为白墙上的动态艺术,也形成了舒适的休闲角,餐桌上的马醉木及咖啡吧边上的蓝花楹,模糊了家具与自然的界限,实现空间、人与自然的有机共生形态。
相关案例推荐
桓普设计
设计师相关作品
编辑精选

粤公网安备 44010602000156号