前言:
步入这个家,首先映入眼帘的是精心设计的玄关区。
木格栅如同艺品般悬挂,搭配条灯自下而上的柔和照明,在转换心境的瞬间,为归返的脚步增添一份仪式感与温度。
一旁的全身镜巧妙映射室内景致,不仅拓展视觉空间,也让每日整装出门多了几分馀裕。
平台与层板自玄关一路延展至餐厨之间,成为咖啡机与日常用品的收纳场域。悬空设计结合铁件支撑,展现轻盈俐落的线条语汇,亦呼应整体空间的简约机能主轴。
沙发墙
地板
艺术品
灯具
北欧
客厅
沙发
饰品
现代简约
电视柜
电视墙
窗帘
转入公领域,天花板以圆弧曲线包复整体视野。这道弧线不仅柔化原有梁体,更引导空间流动,营造开放而安定的生活节奏。
沙发墙
地板
灯具
北欧
客厅
沙发
艺术漆
饰品
现代简约
电视柜
电视墙
窗帘
地板
艺术品
北欧
客厅
艺术漆
饰品
现代简约
电视墙
窗帘
乐土材质铺陈电视墙面,作为静谧沉稳的视觉背景,下方木质收纳与一旁铁件层架相互平衡,形塑廊道尽头的注目焦点。
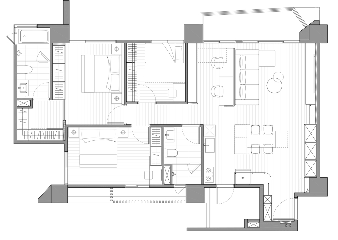
在客变阶段,原本位于客厅后方的 +1 房顺势退让,转化为一处开放阅读区。橘红木作矮墙轻巧点缀其中,为空间注入个性;活动式书档融入整体立面设计,平衡实用性与美感。
主卧延续整体细致且静谧的调性。
床头背墙选用米灰色系铺陈,搭配半腰高的系统背板与嵌灯设计,提供从阅读、放松到入睡的多段情境。
床尾衣柜串接横拉门,通往内侧的更衣室,维持整体的收纳尺度与动线流畅。
相关案例推荐
有隅空间规划所
设计师相关作品
编辑精选

粤公网安备 44010602000156号