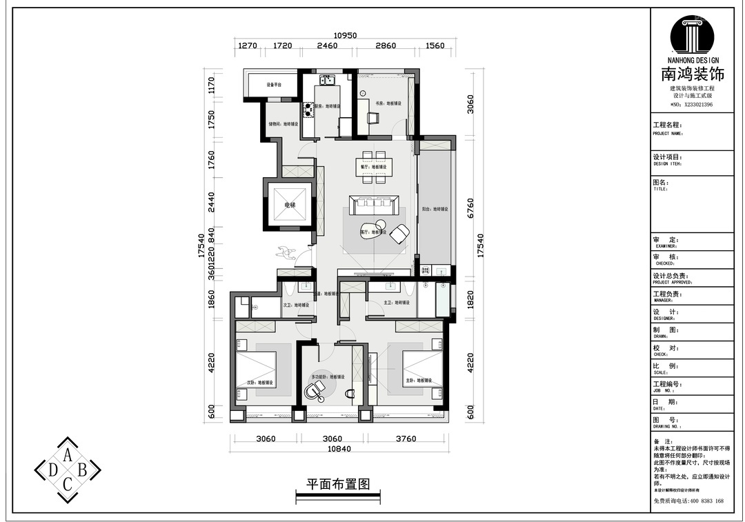
前言: 项目属于一套精装房的改造,为了改变原本老气的风格,将地砖与吊顶均进行翻新,公区域采用“洄游动线”设计,使客餐厅形成功能互联的生活剧场,敞亮的光线也为空间注入了灵动的生命力。
客厅
入户即见宽敞大气的公共区,一体式客餐厅纵贯南北动线,释放自由感与松弛感。
客厅电视背景墙利用悬浮、内嵌、组合式设计,低调中彰显典雅气质。
相关案例推荐
网友评论
浙江南鸿装饰股份有限公司
设计师相关作品

粤公网安备 44010602000156号