前言:
									紧凑的三房打造温柔中古奶油风~?
这套异地方案设计,不同以往.墙体上并没有大动干戈,而通过一些弧形柔和性更强的造型面和色彩材质来凸显整体风格。
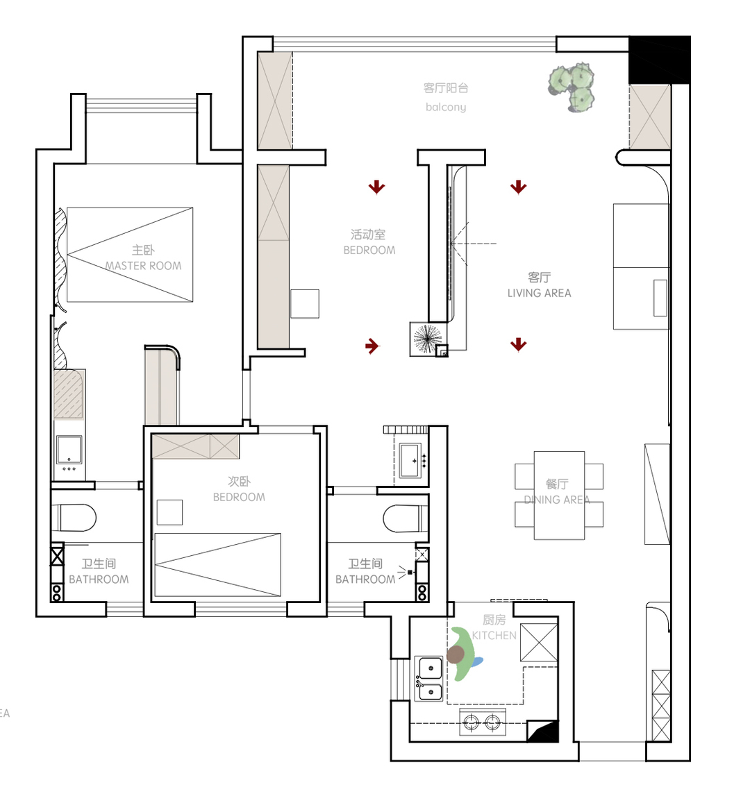
?首先敲掉书房窗户,把空间整合在一起,让所有的空间互动起来,这样我们就得到围绕电视背景墙的洄游动线,串联了活动室、客厅阳台、餐厅、厨房、卫生间,在这个家中行走可以随心而跑动,都可以到达。亲近自然是人的本能、L型落地采光窗自然风景很nice、考虑窗外环境与室内布局之间的关系。
									
												 艺术品
															
														
															
																美式
															
														
															
																玄关
															
														
															
																灯具
															
														
															
																鞋柜
															
														
															
																装饰画
															
														
															
																门厅柜
															
														
															
																镜子
															
														
															
																混搭
															
														
															
																隔断
															
														
															
																饰品
												
													
														
															
																艺术品
															
														
															
																美式
															
														
															
																玄关
															
														
															
																灯具
															
														
															
																鞋柜
															
														
															
																装饰画
															
														
															
																门厅柜
															
														
															
																镜子
															
														
															
																混搭
															
														
															
																隔断
															
														
															
																饰品
															
														
													
												
											
												 美式
															
														
															
																艺术品
															
														
															
																玄关
															
														
															
																鞋柜
															
														
															
																装饰画
															
														
															
																灯具
															
														
															
																混搭
															
														
															
																镜子
															
														
															
																饰品
															
														
															
																隔断
															
														
															
																瓷砖
												
													
														
															
																美式
															
														
															
																艺术品
															
														
															
																玄关
															
														
															
																鞋柜
															
														
															
																装饰画
															
														
															
																灯具
															
														
															
																混搭
															
														
															
																镜子
															
														
															
																饰品
															
														
															
																隔断
															
														
															
																瓷砖
															
														
													
												
											
半高玄关过度-错落镂空美
屋主想要一个好看且实用的鞋柜??
半高的悬空鞋柜下半部分作为换鞋区域
兼顾了玄关的实用与美观并存的作用
半高墙体与弧形门洞错落有致的镂空元素
使得整体空间更加通透,富有层次感
门厅虽小功能齐全
为了解决换鞋和储物的需求
在进门右侧的墙面打了一排不到顶 
不到底的多功能柜子
用做为鞋柜 日用品储物收纳
柜子下面是一整块长条仿洞石面板??????
最左侧上方空置(无柜子)  可做换鞋凳
												 沙发墙
															
														
															
																美式
															
														
															
																装饰画
															
														
															
																地毯
															
														
															
																艺术漆
															
														
															
																饰品
															
														
															
																隔断
															
														
															
																窗帘
															
														
															
																绿植
															
														
															
																艺术品
															
														
															
																客厅
															
														
															
																灯具
															
														
															
																沙发
															
														
															
																混搭
															
														
															
																瓷砖
															
														
															
																电视柜
															
														
															
																电视墙
												
													
														
															
																沙发墙
															
														
															
																美式
															
														
															
																装饰画
															
														
															
																地毯
															
														
															
																艺术漆
															
														
															
																饰品
															
														
															
																隔断
															
														
															
																窗帘
															
														
															
																绿植
															
														
															
																艺术品
															
														
															
																客厅
															
														
															
																灯具
															
														
															
																沙发
															
														
															
																混搭
															
														
															
																瓷砖
															
														
															
																电视柜
															
														
															
																电视墙
															
														
													
												
											
												 沙发墙
															
														
															
																美式
															
														
															
																地毯
															
														
															
																装饰画
															
														
															
																艺术漆
															
														
															
																隔断
															
														
															
																饰品
															
														
															
																窗帘
															
														
															
																绿植
															
														
															
																艺术品
															
														
															
																客厅
															
														
															
																灯具
															
														
															
																沙发
															
														
															
																混搭
															
														
															
																瓷砖
															
														
															
																电视墙
															
														
															
																电视柜
												
													
														
															
																沙发墙
															
														
															
																美式
															
														
															
																地毯
															
														
															
																装饰画
															
														
															
																艺术漆
															
														
															
																隔断
															
														
															
																饰品
															
														
															
																窗帘
															
														
															
																绿植
															
														
															
																艺术品
															
														
															
																客厅
															
														
															
																灯具
															
														
															
																沙发
															
														
															
																混搭
															
														
															
																瓷砖
															
														
															
																电视墙
															
														
															
																电视柜
															
														
													
												
											
活动室作为备用房间以及串联整个大空间来使用
活动室旁侧的多功能收纳柜即可储物也有睡觉的功能??
拥有强大的收纳储物功能
它属于家的中心?????????????????????????????
并围绕这一柜体打造了公区的洄游动线
串联起家里重要的功能区域
?? 藤编休闲椅背后到顶的储物柜解决了阳台收纳储物的需求,方便活动更换的储物盒集中收纳。
?? 搭配具轻透光影的白色纱帘,弧形天花弱化梁柱存在感,材质的统一减少了阳台顶部的压迫感;
?? 提前预留好洗衣机以及烘干机区域,家政一体柜;
从过道、活动室看向客厅?
运用了几何图案 解构主义设计|体块穿插?
墙体的镂空圆形孔洞和拱形元素
巧妙地为略显冷硬的空间注入温暖和生机
空间的流动性
体块穿插可以创造出空间的流动性和连续性?
通过不同体块之间的穿插和连接?
可以打破空间的局限性,
增加空间的层次感和深度感。
悬空的洗水台与墙板衔接
开放式洗漱柜,与卧室合为一体,共享开放空间
可以一边刷牙一边看风景的开放式洗漱柜开放式洗漱柜应该注意哪些细节呢?
洗漱台镶嵌在衣柜墙板区域?
立体式台盆可以很好的解决下水外漏的问题?
整体看起来更加整洁干净下方木色面板穿插?
链接洗漱柜和衣柜?
洗漱台右侧的储物柜收纳洗漱用品
对面开放式净衣区
用来挂放睡衣等
方便拿取转过来
武汉邦辰设计
设计师相关作品
 
 
 编辑精选
编辑精选 
												
													
														
															
																 
												
													
														
															
																 
												
													
														
															
																 
												
													
														
															
																 
												
													
														
															
																 
												
													
														
															
																 
												
													
														
															
																 
												
													
														
															
																 
												
													
														
															
																 
												
													
														
															
																 
												
													
														
															
																 
												
													
														
															
																 
												
													
														
															
																 
												
													
														
															
																 
												
													
														
															
																 
												
													
														
															
																 
												
													
														
															
																 
												
													
														
															
																 
												
													
														
															
																 
												
													
														
															
																 
												
													
														
															
																 
												
													
														
															
																 
												
													
														
															
																 
												
													
														
															
																 
												
													
														
															
																 
												
													
														
															
																 
												
													
														
															
																 
												
													
														
															
																 
												
													
														
															
																 
												
													
														
															
																 
												
													
														
															
																 
												
													
														
															
																 
												
													
														
															
																 
												
													
														
															
																 
												
													
														
															
																 
											
										 
											 
											 
											 
											 
											 
														 
														 
														 
														 
														 
				 
                
 粤公网安备 44010602000156号
粤公网安备 44010602000156号