前言:
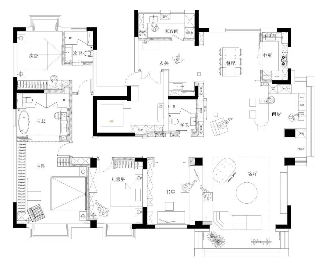
本案,位于淮海名邸,270㎡大平层,原交付是标准的四室两厅户型,拥有主入户及家政间主次两个门,家政间与保姆间空间较大,将近十多个平方,主入户视角下玄关很小,整体稍显局促,并未体现270㎡大宅该有的宽敞舒适。
屋主是一对年轻夫妻,设计师定位了现代法式自然的空间氛围。布局规划上,设计师基于满足两人居住的基本需求,通过缩减家政区域的面积,有效释放了多余的空间。原本的保姆间被重新规划为玄关区域。原有的两个入口,则采取了封闭其中一个、将另一个升级为主门的策略,并在新的主门入口处增设了一个充满复古气息的入户玄关,进一步优化了空间布局与整体美感。
玄关,似乎创造出了一种新的美感。拼花砖宛如一幅浑然天成的艺术画卷,几何纹路在磨砂的质感中流转,映衬出别样风情。
为弱化玄关门洞水池区异形结构的冲突,设计师引入不规则切割的自然感老木头柱子,形成了一个既有设计感,又具有创意性和舒适感的空间。
艺术的精髓在于细节的诠释,客厅不仅注重空间布局的合理性,更将自然元素融入每一处细节。悬浮书台的另一方,屋主可一人坐在书房内侧,另一人在客厅外侧,两人可以在此处一起搭乐高,互动交流。
主沙发与阳台紧密相连,让充沛的自然光线洒满整个空间。Roche Bobois麻将沙发则是这个空间的亮点之一,满足了年轻夫妻对开放生活方式的追求。灵活拆卸的垫子,可以根据需要随时调整坐姿,生活更多样化,更具趣味性。
副位的Ligne Roset沙发座椅,可以尽情舒展身体,享受独属于自己的宁静时光。无论是阅读一本心仪已久的书籍,还是和家人朋友一起聚餐聊天,这里都是放松身心的绝佳选择。
西厨区,兼具收纳功能,可放置洗碗机、冰箱、烤箱、咖啡机等电器设备,方便屋主备餐使用。
三米的岛台,链接公共区域,同时充当了烹饪社交功能,屋主在此备餐时,可以和客厅或书房里的另一半互动,在这里,烹饪不再是孤独的味觉秀,而是一场可随时上演的浪漫约会。
原厨房空间较大,仅有一个中厨,不太符合年轻人的生活方式,屋主平时做简餐、泡咖啡居多。设计师将厨房与餐厅打通,保留小部分空间给到中厨,并在餐厅与客厅的过渡区增加了岛台,原先厨房的大部分面积则释放给了餐厅。
原餐厅部分区域改成了惬意舒适带有壁炉的休闲展示区,在这个角落,主人可以展示他们钟爱的手办和书籍。
卫生间三分离的设计,可以享受无与伦比的舒适。主卫门打开到最大限度,与外部空间流畅融合,这样不仅可以让屋主感受到现代居住的智能便捷,也可以在干湿区的分隔中有更多的空间释放,让舒适生活成为一种习惯。
书房是屋主的常待区域,中间钢架结构的悬浮书桌,设置了两个办公位,一个在书桌区,另一个则在阳台靠窗区,考虑到屋主的职业属性,常年需要久坐,对于脊椎腰椎不太友好,升降桌的巧妙设计增添了工作舒适度,屋主可以随时选择站立办公,活动筋骨,释放压力。
相关案例推荐
示觉设计
设计师相关作品
编辑精选

粤公网安备 44010602000156号