前言:
房子之所以谓之“家”,是因为有了人,
人使之沾染上了烟火的气息,
至此房子便成了家。
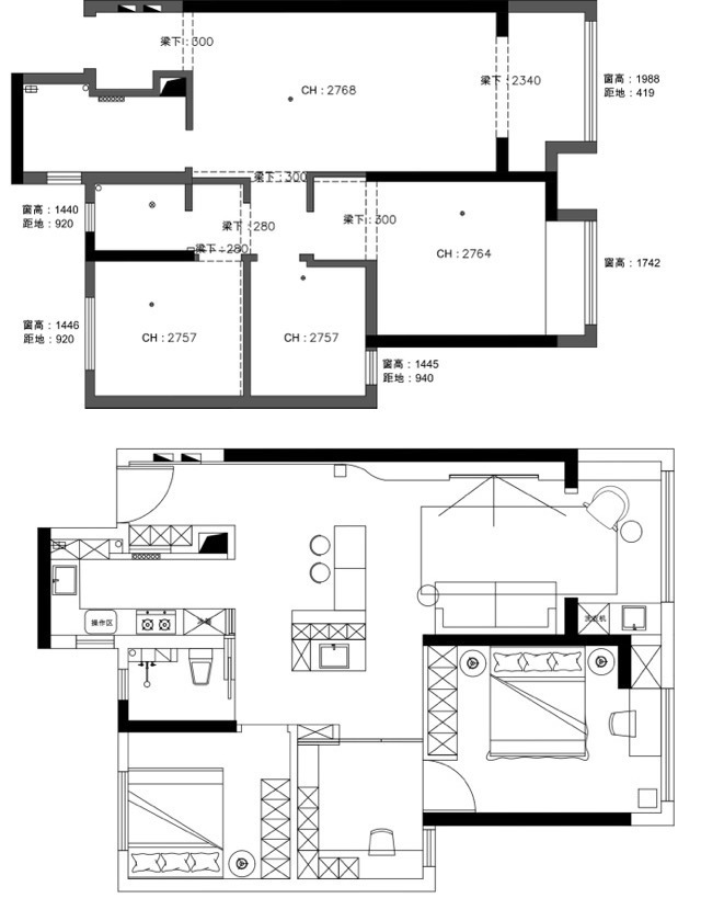
本案原始户型是一套中规中矩的毛坯房,
自身结构相对适合。
但对于一个两口之家来说,
居住空间就显得紧凑,
储物功能不足、空间缺乏交流感、缺乏隐私性。
设计改造
1.客厅阳台纳入,扩充客餐厅使用面积;
2.把卫生间干区与岛台进行功能整合,扩大客餐厅视觉的通透感同时增加空间的互动性和趣味性;
3.书房墙体拆除调整后,书房移门可开可和的布局,既可以关上移门,安静阅读,也可以打开和家人产生互动。
4.书房与卧室进行功能整合后,推开卧室门就可以轻松办公、休息切换同时也增加了和家人的情感沟通与互动。
在物业允许+非承重墙的前提下,向厨房借用了一面墙的空间,深度做到了550的高柜,里外可以放两层鞋子。进门左手边做了破碎镜嵌入墙体,设计师利用镜面反射与视觉上拉大空间尺度,解决走廊压抑的问题。
灰色为空间主调体现安静纯粹状态,客厅沙发选择了灰色条纹+黑色撞色奠定了空间的基调。在原本单调的灰色的石膏板造型上点缀格栅的线条,丰富电视背景的层次感,也让客厅变得更加时尚有趣。灰色石膏板造型与沙发背景墙呼应,强调了设计的整体性,把电视以挂画的形式藏在其中,让原本单调的墙面,自由充满灵性。
沙发背景墙右手边的墙面挂小色块装饰画把原本安静纯粹的空间带动起来,成为了空间中的视觉亮点。
灯光的设计对夜晚和阴天的作用极为重要,于是在客厅吊顶上方的射灯照明以外,还在沙发背景做了串联墙与顶磁吸轨道为背景灯光,空间延伸的同时普通的乳胶漆墙面秒变高级。
谁说2.7m的层高不适合做无主灯吊顶?设计师利用岛台上方吊顶做了体块穿插,这样既解决了小户型安装中央空调位置的问题同时也解决了吊顶不影响层高的“魔咒”。
拆掉原先卧室和卫生间干区的墙面后,在被放大的走廊区域做了干区+岛台+餐桌一体的设计,围绕干区+岛台+餐桌形成可经过全区域的洄游动线,合理化整合了空间的行动路线。洗手台外置和岛台相连,不浪费家里的每个角落,同时增加和家人在公共空间的互动。
岛台作为咖啡角兼顾调酒的空间,通高的开放格面对岛台面放酒,岛台台面空间放糖浆、调酒饮品,周末或者疲惫的工作日回到家,秒变微醺小酒馆。面对餐厅面放置咖啡机、磨豆机,早起根据自己的心情做一杯咖啡,成为吸引打工人起床的神奇召唤。
洗手台做了悬挂式梳妆镜作为空间隔断,让空间自然流动,打造连贯的视觉空间,镜子背后用马蒂斯手绘画装饰,两侧留有透景,在餐厅区域起到装饰作用。洗手台上方局部采用软膜天花吊顶,来规避走廊吊顶低造成的压迫感,软膜天花做照明可以模拟自然光照射进天井的感觉,也可以根据不同心情不同场景调节不同色温。
主卧延续公区的色彩与材质搭配,床头背景蓝色系作为点缀,与客厅形成统一,床头柜黑色提炼空间的纯度,空间更有整体感。
书房、卧室、客餐厅相互串联在一起色块之间默契配合,打造治愈空间。书房和餐客厅,隔而不断,视觉上是一体的,更显开阔。
想要沉浸式开黑,氛围感必须到位!准备好快乐水~黑灰配色高级又有质感,斜坡屋顶让暗黑系书房形似太空舱,科技感满满~整个炫酷!!悬浮黑色书桌延伸至书柜好看还可以收纳……
将客厅与阳台打通,通过客厅背景墙与阳台柜串联将空间融入客厅,在阳台面看它,就是一个储物柜体,从客厅看去,柜门好像被隐藏起来。阳台下方的壁炉,则是让冬日里的空间瞬间温暖起来。
黑胶机让听音乐更有仪式感,选一张喜欢的唱片,放下唱针,当唱片缓缓旋转,音乐响起,此刻陷入慵懒舒缓的惬意氛围,时间好像也随着慢了下来,沉浸在只属于自己的音乐时光中,感受内心的平和和放松。
相关案例推荐
设计师夏雪

粤公网安备 44010602000156号