前言:
此案业主是一家四口居住,装修由女业主全权负责。
原始的精装交付并不能满足业主的审美需求,所以在前期沟通后,我们在不大改格局的基础上,遵循业主的喜好与感受,用黑白法式给空间定调,借助开放式布局让家人之间无间相处,自由格局、多个环形动线重塑交互空间,在满足家的通透同时,居住舒适度也整体提升不少。
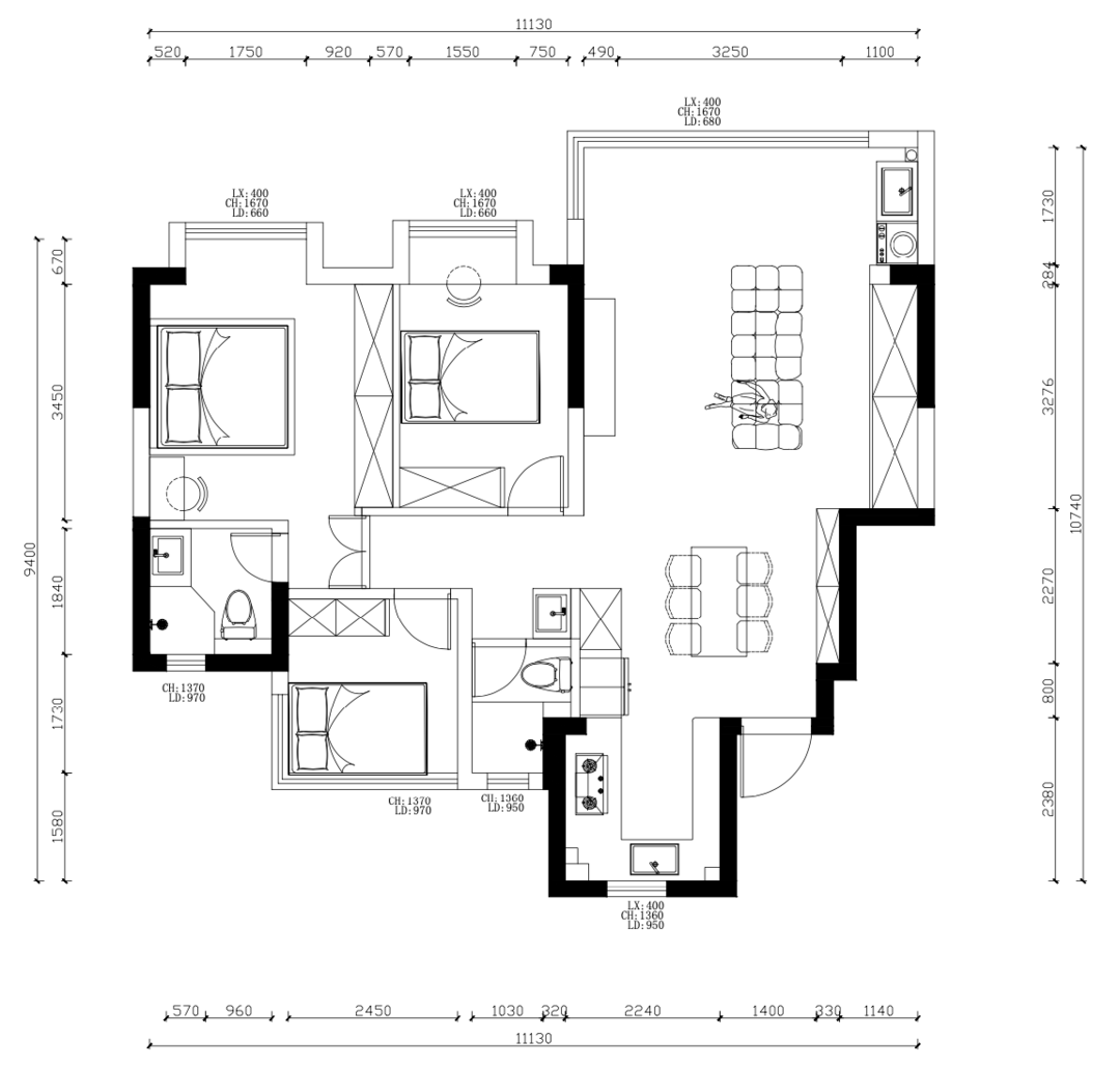
改造前户型
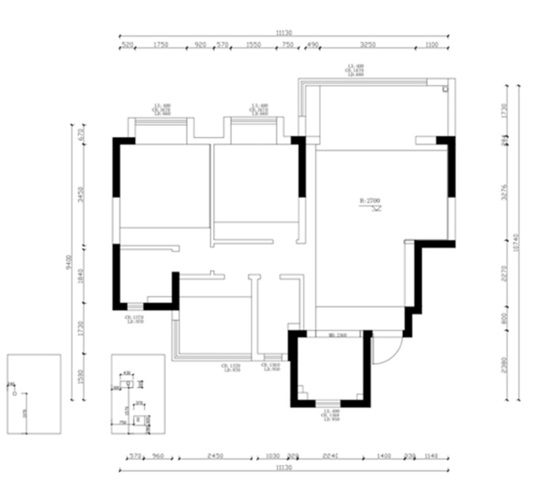
改造后户型
原始户型还算规整,考虑到业主的居住舒适度和生活习惯,我们对户型做了微调:
1、打通阳台隔断并入客厅,放大客厅的视觉界域,同时也保留了阳台的家政区
2、处于入户处的餐厅和厨房面积比较狭窄,打通厨房隔断造开放式布局后,重新整合了餐厨空间,并将冰箱和储物柜外移,扩大了厨房的使用面积和收纳空间
3、将走廊上客卫的洗漱台外移,干湿分离后不仅让走廊更显宽敞,也提高了卫生间的使用效率
阳台打通并入客厅,空间的尺度与通透感得以延展。
地面在不动地砖的基础上,铺上地板,给室内带来温润气息。“春雨”色号大面积在墙面铺陈开来,温柔又复古。黑色软装家具点缀,带来层次感和沉稳气质。
在原始精装交付的吊顶上包裹虎头线和钢琴键,法式线条、灯盘雕花、圆润弧形软装等元素共同渲染浪漫空间。
小横厅给生活带来更多可能性,沙发不靠墙,背靠储物柜,拱形造型和装饰壁炉也在氛围营造的同时集合生活切实所需。
浪漫是要夹杂在生活里的~
生活的意义就在于生活本身,餐厨空间一气呵成,增加收纳的同时,注重空间留白。
入户见厅的户型,沿着墙面设置了悬空柜,分体式设计丰富餐厅和玄关的收纳方式,拱形柜门+长虹玻璃的搭配组合不仅让装饰块面变得丰盈,也让柜体更通透轻便。石材的加入也增加了精致度。
走廊尽头充满仪式感的黑色弧形双开门后,就是主卧空间。
延续暖色基调,床头用精简的法式线条勾勒浪漫氛围。主卧格局不改,借助床尾整面墙做衣柜增加收纳。
主卫的小花砖和半墙设计复古感拉满,玻璃砖优化采光,获得别样的空间感受。
相关案例推荐
合肥深零设计
设计师相关作品
编辑精选

粤公网安备 44010602000156号