前言: 本案例是对61㎡的“老破小”进行改造,原户型包含两个卧室,其中主卧朝南并带有阳台,但客厅位于房子中部,缺乏自然光,且无独立餐厅。鉴于业主为两人且仅需一室,改造方案将两室合并,优化布局以最大化引入自然光,提升居住空间的宽松与舒适性。同时,在配饰上注重风格化设计,为居住者营造身心舒适的居住环境。
原户型为2室一厅一厨一卫的小户型,布局上南北各设一个房间,厨房、卫生间和客厅则位于房子的中间位置。这样的布局虽然紧凑,但也存在一些弊端。
主卧阳光充足:位于南侧的主卧能够享受到充足的阳光,这是该户型的一个亮点。
中间区域暗淡:然而,客厅、封闭式厨房以及卫生间由于被夹在中间位置,缺乏自然光的照射,导致环境较为暗淡。
为了满足业主对宽敞明亮生活空间的需求,我们对原有两室户型进行了改造:
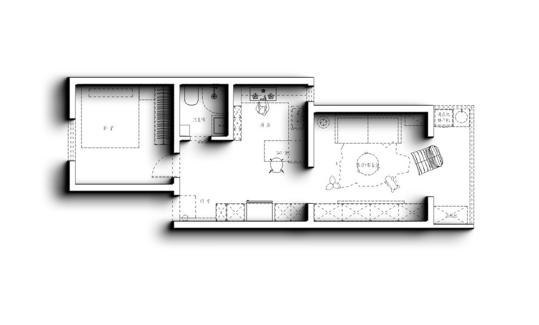
我们打破了原有的两室格局,将朝南带阳台的主卧改造成了开放性的客厅空间。这一改变不仅让客厅面积得到了显著提升,更使得整个空间显得更加通透和宽敞。
为了最大化地引入自然光,我们对原来主卧的门洞位置进行了调整,并将其扩大。这一改动使得原本暗淡的空间能够最大限度的进入阳光,提升了整体的明亮度和舒适度。
在厨房区域,我们采用了开放式设计,并与客厅紧密相连,形成了餐厨一体化的空间布局。这样的设计不仅使空间宽敞舒适还增强了空间的功能性以及互动性。
在这个小户型案例中,空间有限,没有餐厅,所以我们采用了开放式厨房设计,将橱柜与餐桌完美结合。我们把主卧的门洞移动了位置,且扩大了门洞,使自然光线能够最多限度的进入到餐厨空间。
餐边柜和冰箱巧妙地放置在厨房对面,满墙的收纳柜不仅解决了杂物堆积的烦恼,冰箱嵌在餐边柜中让整个空间看起来更加整洁有序。既不影响空间与过道,又方便取用食材和餐具,让你的烹饪与用餐体验更加顺畅。
在餐厨空间部分,我们把部分餐桌巧妙地隐藏在橱柜中,平时两人用餐时,无需移动,轻松享受美食。
而当客人来访,需要多人用餐时,只需轻轻一拉,餐桌便能通过轨道和轮组从橱柜中顺滑拉出,瞬间变身成为宽敞的大餐桌!
厨房和卫生间都是紧紧相邻的,为了空间的整体美观性,我们精心挑选了“幽灵”深色木门。 卫生间内部虽小但功能齐全且分布合理,我们使用浴帘代替淋浴隔断,不仅节省预算还能保持小空间的灵活性。
带阳台的“大卧室”彻底改头换面,变身成为家里的颜值担当——明亮大客厅!阳光透过阳台窗洒满每个角落,幸福感爆棚!
黑色沙发坐镇C位,气场全开,搭配深木色的半墙护墙板,瞬间提升了整个空间的格调!
沙发旁,墙角边柜和转角置物架巧妙代替传统茶几,既实用又节省空间,小户型也能拥有大智慧!
最实用的是电视背景墙,一整面墙的收纳空间,杂物再多也不怕! 隐藏式投影幕布缓缓下降,家庭影院即刻上线,享受私人定制的观影时光,完全不占地方,是不是很机智?
相关案例推荐
山舍建筑设计
设计师相关作品

粤公网安备 44010602000156号