前言:
本案位于中海紫御豪庭,260㎡ 大宅,原交付有两个南北阳台,采光和通风条件都比较好。尽管空间本身条件优越,但屋主在入住一段时间后却渐感不适。屋主对生活品质有着较高要求,入住时家里已经配备了意大利品牌软装。然而这些配置并未能带来预期的居住舒适度。随着时间的推移,屋主发现这套房子在日常生活中越来越不尽如人意,无论是视觉上的协调还是实际使用的便利性,都未能达到期望。
考虑到这套房产是为孩子长期学习生活而准备,预计居住时间将超过十年,屋主最终决定寻找专业的解决方案。希望能在保留现有高端软装的前提下,通过创新的设计理念,打造一个既美观又实用的理想居住空间。
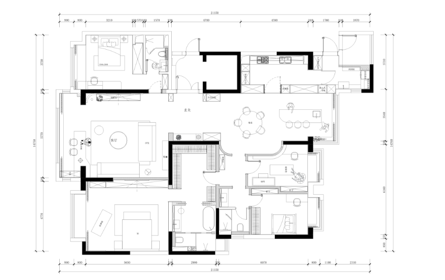
屋主选购的软装主要来自意大利高端品牌Minotti,这些家具以现代轻奢风格为主,沙发颜色较深,家具大部分是黑白灰棕色系,营造了一种沉稳而优雅的氛围。然而,屋主本人非常喜欢自然风格的装饰,希望家中能够呈现出一种清新自然的气息。设计师将两种风格进行了融合,定位为“黑白自然法式”风。整体采用黑白配色,增添一份简约的法式风情。自然风格的地板,与家具的深色调形成鲜明对比,营造出一种自然和谐的居住氛围。
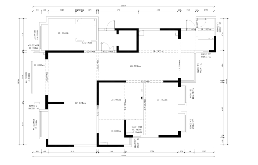
屋主有两个女儿,布局上,首先保留了两个女儿的房间。原来的书房和小女儿的房间位于北面,设计师进行了调换。原书房位置更加靠东,现在将书房调整到靠近餐厅的西面位置。
入户玄关的两侧墙体被拆除,改为薄柜。原本的玄关宽敞大气,但上面堆放了很多杂物,如包包、钥匙等,影响了整体的美观。设计师将两侧的墙体改为薄柜,既可以随手放置包包等物品,又不会影响玄关的视觉效果,同时也提升了入户的仪式感。
客厅和餐厅的软装延用了原有的老家具。客厅南阳台拆除,重新布置了Minotti的沙发。原本的大转角沙发被拆分成两个模块。新增加的书桌,方便女儿在家教的指导下学习、画画或做手工。
电视墙设计了一个100英寸的电视和一个150英寸的投影仪,既适合学习也适合日常观影。电视墙采用异形弧形结构,隐藏了通往大女儿房间的门。增加了空间的整体感和实用性。
原北阳台兼家政间,晾晒了许多衣物,显得不够整洁和气派。设计师将北阳台一分为二,一部分融合进家政间,用于晾晒和洗衣;另一部分则与餐厅结合,打造了一个大岛台的西厨区域。阳台拆除后,书房的部分墙壁改造成半弧形的玻璃墙,餐厅的采光和空间感都得到提升,整体更显大宅气质。
1.6米直径圆桌,放在原空间略显局促。设计师将书房挪到靠近餐厅的位置,释放出更大的空间,使餐桌得以充分展示其大气之美。
为了进一步优化餐厅的空间感,书房和过道之间增加了圆弧形的开口,借用部分过道和书房的空间,形成了一个异形的方正餐厅。
中厨依然保持宽敞的格局,整面柜体墙作为中厨的隔断。中厨的门设计为隐形门,与西厨的柜子融为一体。隐形门的左侧是一个餐边柜,上面可以放置水杯、咖啡杯、小家电等物品,右侧的西厨倒台柜子则融入了许多西厨电器,如饮水机和嵌入式冰吧等。
弧形的操作台玻璃台面,可以将餐厅的光线引入中厨,改善采光条件。当需要时,可以打开玻璃台面,使中厨和餐厅之间的空间更加通透,增强整体的开放感和互动性。
主卧的床和沙发均来自意大利品牌Minotti,这些高端家具为卧室增添了现代轻奢的氛围。主卧面积较大,设计师在床尾位置增加了一排柜子,使其更加实用。飘窗位置加了一个黑色木饰面的框景,增添层次感。飘窗处可以放置一个按摩椅,提供舒适的休息空间。
为了与主卧的黑色区域风格相匹配,硬装上,融入了黑色元素。黑色木饰面的框景和柜子与Minotti的床和沙发形成了和谐的搭配,既保持了现代轻奢的风格,又增添了一丝轻松自然的氛围。
书房通过餐厅的玻璃门进入,这里是女屋主的独处空间。她平时喜欢一个人在这里做瑜伽、看书或听音乐。为了满足女屋主的不同需求,设计师在弧形玻璃面上加了一个帘子。当她希望安静时,可以拉上帘子;当她想与外面的女儿或其他家人互动时,可以将帘子打开。
书房内融入了一个舒适的书墙阅读角落、一架钢琴和一张书桌。书桌与墙面的深色融为一体,设计成一体化的效果。整个空间采用暗色系,给人一种强烈的包裹感,使女屋主在里面感到非常温馨和舒适。女屋主喜欢的水晶灯,悬挂在空间中,让书房更加温馨,同时也与外部空间进行了良好的融合。
相关案例推荐
示觉设计
设计师相关作品

粤公网安备 44010602000156号