前言:
国外的经典艺术电影,往往会给我们带来意想不到的家居灵感。当标志性的红色元素,遇到蓝色、绿色、黄色等鲜明的色彩,一个充满视觉张力的理想空间近在眼前。这对年轻的屋主,就把这种浪漫、热烈,富有生机的自由主义,从电影中带进现实,以丰富的色彩,调剂出他们梦寐以求的居家氛围。
多巴胺配色的家,简洁中却到处充满亮点与活力。步入这个空间,仿佛置身于一幅生动的画作,每一处色彩都跳跃着,诉说着家的温暖与快乐、每个角落都散发着生活的热情,让人不禁放慢脚步,享受这份宁静与美好。
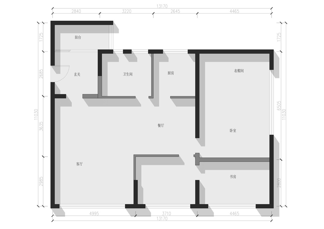
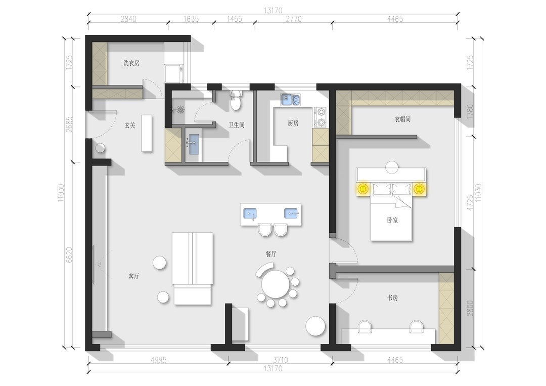
户型解析:
1.玄关空间比较浪费,增加家政间和收纳。
2.餐厅和客厅打通,增加岛台功能。
3.卫生间改成三分离。
4.全房多用隐形门,让客餐厅更具整体性。
5.主卧增加衣帽间功能,让收纳翻倍。
回到家后,进门就是玄关中庭。
入户门巧妙的做了白色贴格栅板,与酒红色方格地砖相映成趣,带来精致的复古感。进门右侧,黑胡桃木的隐藏式到顶鞋柜及同色隐藏门将洗衣房“藏起来”。
两面通体墙面做了黑胡桃木贴皮,共同勾勒出“亭子”的概念。中央的独立换鞋凳,更是屋主休憩的小天地。
客厅地面以米色哑光地砖通铺,哑光的地面似乎蕴含了一种神奇的力量,各种颜色若出其中,在平稳、深沉的基调下各自精彩。客厅的浅色调与与周围的空间形成鲜明对比,极具设计感的绿色沙发成为整个空间的点睛之笔。
墙面采用黑胡桃木贴皮护墙板,给整体空间增添了自然的温暖质感。通往主卧的门做了隐藏式设计,巧妙地融入墙面之中,既保持了空间的完整性,又增添了一份神秘感。在这里,每一次家庭聚会都是一场视觉盛宴,色彩的碰撞让人心情愉悦,仿佛置身于一个充满创意的艺术空间。
电视背景墙没做传统的收纳式,客厅作为主要的活动空间,屋主希望越简洁越不占空间越好。家里其他地方的收纳空间也足够,不需要在电视柜这里做收纳。所以决定电视墙采用大白墙+一块长隔板这种最最简单的方式来做。白墙的背景用了手刷纹理来增加质感。
自然质感的胡桃木色,是家里的主要颜色,厨房整体沿用了客厅的配色,胡桃木实木贴皮的柜体搭配浅色岩板台面,台面和墙面使用同款岩板,避免空间的材质过多,原木色吊柜与地柜相呼应,黑色的水槽与炉具增添时尚感,抽油烟机机箱巧妙隐藏于燃气灶上方的吊柜中,每一处细节都透露着设计的巧思。
餐厅区域与客厅“无缝衔接”,开放式的西式厨房岛台亦可作吧台使用。白色铁艺餐桌、黄色一体铁艺餐凳等使得整个空间洋溢着童趣与时尚的气息,餐桌上方色块拼接的吊灯与整体氛围相映成趣。
间采用米灰色哑光地砖与墙砖,打造出空间的一体化视觉,空间显得格外宽敞。淋浴间及盥洗室为单独隔间,干湿分离。
悬挂式马桶不仅便于地面的清洁,更添时尚之感。
淋浴区采用不锈钢原色花洒和墙体及地面做呼应,凸显了整体的高级感,窗台下方的休息台不仅可放置物品更可在沐浴中享受与自己独处的休憩时光。
相关案例推荐
本物空间设计
设计师相关作品

粤公网安备 44010602000156号