前言: 本案业主是一位自媒体博主,对审美有着高要求。业主夫妇工作地点在上海,温州老家的这套别墅主要用作度假以及招待朋友。
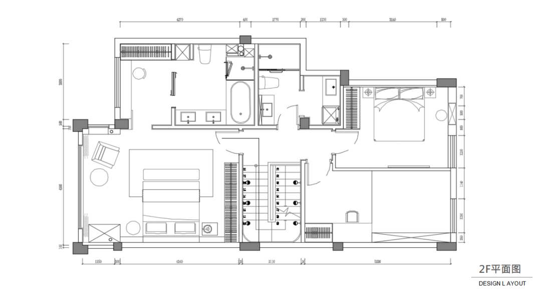
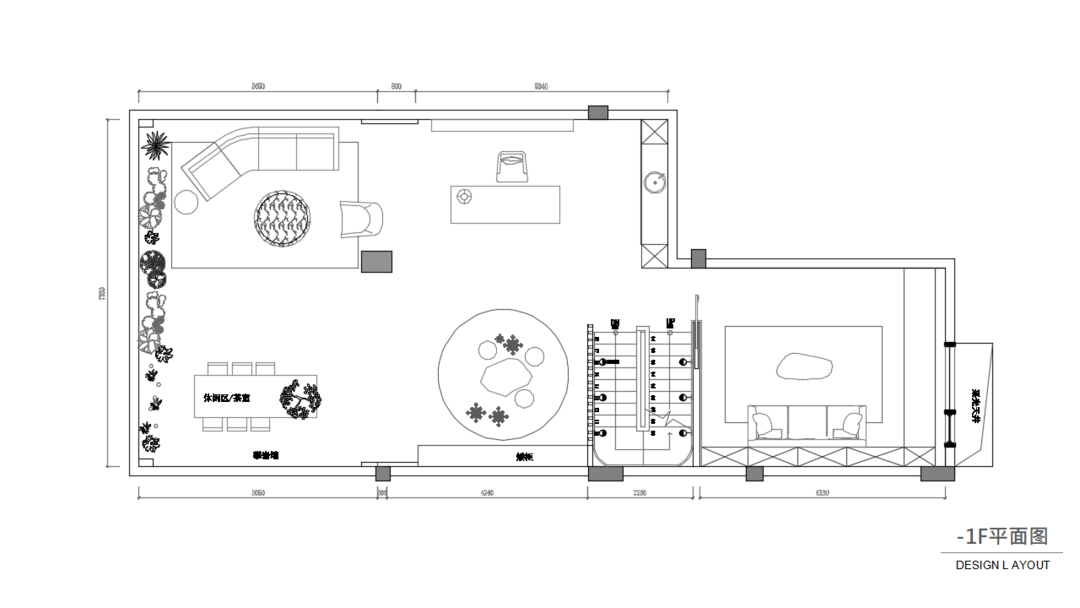
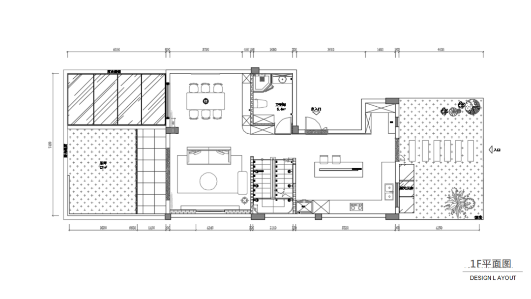
户型图
我们接手时,别墅硬装已经完成,原来装修时硬装做了现代极简风格。硬装完工后业主发现,现代风格在用于直播或者招待朋友时,显得过于简洁和单调。所以,软装上业主期望在房子中增添一些出彩的家具和颜色。
在执行过程中,业主对每一件家具的造型、颜色和材质都进行了细致的挑选与比较,最终呈现的落地效果让业主十分满意。
客厅
复古与现代交织,混搭风别墅的独特魅力。客厅硬装基地以米白色为主色调,软装搭配大红色的进口绒布沙发,质感十足。现代轻奢圆形茶几与现代简约相得益彰,地面铺设的几何图案地毯增添了活泼感。沙发背后的亚克力凹凸面镜抽象装饰画挂在餐厅墙上,成为视觉焦点,让整个空间充满了文化底蕴。
餐厅
餐厅软装以黑色与灰色为主色调,尽显奢华。椭圆形的餐桌搭配真皮蓝色餐椅,充满意识复古气息。水晶吊灯璀璨夺目,照亮了整个空间。餐桌上的精致餐具和银质的花瓶,彰显出主人的品味。
卧室
卧室床以淡蓝色为主,营造出宁静的氛围。柔软的床品搭配云朵布艺床,给人舒适的感觉。窗帘采用轻薄的纱质材料,让阳光柔和地洒进房间。文艺复兴时期的装饰画和提花刺绣休闲单人椅,为卧室增添了浪漫的氛围。
相关案例推荐
网友评论
净名制作设计
设计师相关作品

粤公网安备 44010602000156号