前言:
本案位于海南海口皇后港联排别墅,毛坯交付,屋主的孩子年龄尚小,需要适宜的陪伴成长空间,整体调配素雅柔和的色调,传递自然恬静的意境。什么是家的松弛感?这是我听过最好的答案……
1、整合优势 :
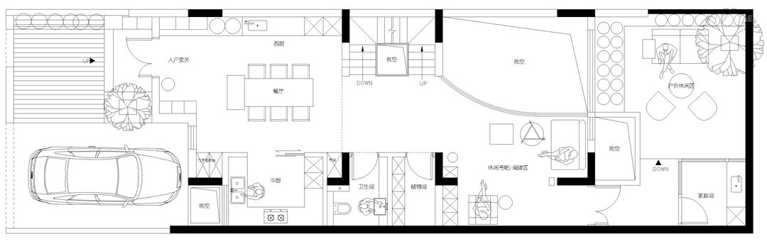
拆除负一层与一层之间的楼板,为负一楼引入大面积采光,将一楼客厅移至负一楼,增强客厅的大气感。
2、灵动配色 :
以浅色调打底,于不同区位调整冷暖色相,达成统一却不单调的视觉效果,根据形体结构与构图关系描摹跳色,使视觉叙事越发灵动。
3、借线抒情 :
排列组合线条,塑造架构之美,为流转体验护航,梳理各式各样的功能区,有效利用空间营造理想的氛围感。
-1F
1F
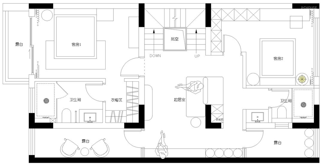
2F
3F
纵向叠加的空间,亟待处理明暗关系与通风效果,大胆舍弃某一部分的使用面积,换来更好的生活品质。平衡理想画面与实用性,在“减法”语境中做恰到好处的“加法”,形成多元的设计亮点。尽可能捕捉自然光,修饰空间,用时光赋予空间爱与自由。
在这样的客厅内,可以是独处的「自己」,也可以是喧闹的「我们」。
打通负一层和一层的楼板,于细节处创造松驰感,天光游弋,治愈且温暖,优雅的曲线舒展,消弭了上下维度的距离感,让空间内的家人自由对话。晶莹剔透的吊灯 ,在挑空的世界里熠熠生辉,交融艺术气息与自然主义,呼应沙发背后的虚实框景。
“让生活慢下来,很多有趣又温暖的地方,你要去发现哦~”
增添层次和色块的碰撞,为静态的空间赋予动态的视觉感。流畅的布局让每个人都能在空间内自在穿梭,悬起来的电视柜、休闲椅面和茶几台面,悦活了空间的呼吸感,奶fufu的沙发 和不规则的茶几,聚合了会客氛围。
亦舒在《理想生活》中提到:“什么叫做理想生活?不用吃得太好穿得太好住得太好,但必需自由自在,不感到任何压力,不做工作的奴隶,不受名利支配,有志同道合的伴侣,活泼可爱的孩子,丰衣足食,已经算是理想。”
书籍 ,为精神世界创造意趣和色彩,装饰画,给阅读间隙提供了美学享受。坐在泛绿的椅子上 ,周身悄寂,让我们读懂了自己。
展柜,承续侧边的拱形轮廓,加强了极简语境的魅力,并在经典配色与光影的衬托下,讲述每件藏品的故事。水吧功能有序排开,利用凹凸形态密联人与物、人与人,在这里只听得见干杯的声音以及内心的回响~
毛姆说:“一个人能观察落叶、鲜花、从细微处欣赏一切,生活就不能把他怎么样。”不同于主要场景的楼梯间,从负一楼开始便在考量自身表现的尺度,力求配合与之关联的区域打造温馨生动的画面,这份心思微不易察,但十分重要。
拾级而上,来到一楼,沿过道抵达休息区,视野开阔明亮,自在的感觉尽在掌握。
当空间是温柔的,探索就不会止步。围栏也拥有了自己独特的韵律,散发典雅气质,联结沙发区的图纹、质感、调性,彰显半开放空间的可塑性。
餐厅,作为生活场景的重中之重,带你找到超出预期的美味。
小时候,总是很向往一家人坐在一起吃早饭,能在“兵荒马乱”的早晨挤出时间准备丰盛早餐的父母,一定是世界上最好的父母!父母就是这样,在我们饿了、渴了、馋了的时候,魔术师一样出现,这就是爱~
拜托,人生怎么能少得了麻辣小龙虾 、外婆红烧肉、宫保鸡丁这种重油重盐的食物?(光是想到都要流口水的程度~)
果断在西厨之外增设中厨,让家回归应有的样子,做好隔烟透光的效果,舒展了餐厨尺度。
三楼空间,趋向独立与静谧。
儿童房,甄选马卡龙色系 激发纯真感,糅合波普元素与卡通形象,多一些成长,多一些陪伴。衣帽区,用体块与直线表达理性,点缀跳色,让目光不自觉地转向那些美好,完成更丰富的叙事。
相关案例推荐
筑物设计
设计师相关作品

粤公网安备 44010602000156号