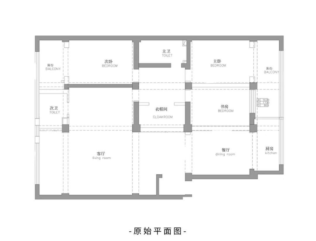
前言: 本案业主是一家三口,家属院旧房改造项目。面积200平,但原始户型布局不合理切割为多个小空间,设计师进行改造之后,整个房子形成一个超大洄游动线,保留两间卧室放大公共空间。每个空间都可以实现多变功能,客厅可以实现休闲、读书、饮茶等功能。下午充分的光照也让家变得更加宽敞明亮。
相关案例推荐
网友评论
西安异构设计
设计师相关作品

粤公网安备 44010602000156号