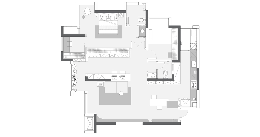
前言: 原户型存在较多零碎的空间,布局复杂且功能区划分不够合理。经过设计沟通和结构改造,我们对原有布局进行了大幅调整,以实现空间的整体优化。具体改动包括将原有的三间卧室改为两间卧室,同时新增一个多功能书房,提升空间的灵活性和多元化使用体验。
玄关
玄关区域的设计创新将鞋柜与电视墙巧妙结合。为了避免传统柜子设计带来的沉闷感,并减少定制费用,我们在入户区设计了一体化的储物鞋柜,并与电视墙的造型相融合。这种设计不仅节省了空间,还增加了玄关区域的整体美感。
客厅
客餐厨书房一体化的设计突破了原有布局中的过道和阳台小空间,将这些区域整合为一个开放的大空间。通过舍弃原来的浪费空间,我们将客厅和公共区域的面积最大化,实现了空间的高效利用。沙发背后的书桌设计既实用又富有趣味性,用户可以在这里一边工作一边享受休闲时光。开放式厨房与餐吧台的结合使功能区多样化,拓展了整体公共区域的视野。
餐厅
玄关区域的设计创新将鞋柜与电视墙巧妙结合。为了避免传统柜子设计带来的沉闷感,并减少定制费用,我们在入户区设计了一体化的储物鞋柜,并与电视墙的造型相融合。这种设计不仅节省了空间,还增加了玄关区域的整体美感。
相关案例推荐
网友评论
LS蓝山设计-雷刚
设计师相关作品

粤公网安备 44010602000156号