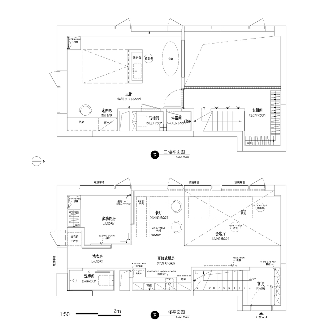
前言: 屋主是一个开朗的大男孩,买这个公寓是希望能有一个属于自己住的地方。原本精装修的整体感觉和功能布局不能满足他的生活需求,所以找到我们重新设计。原本入户玄关的设计是一个开发商的小把戏,通过局部抬升二楼的楼板让入户的第一感觉好些,但是深究就会发现二楼抬高后的这个区域变得不好用,高度只有1米8。在了解他的生活习惯后,我们重新规划了布局,将玄关的高度落回到和二楼其他区域相同的高度,消除高差;并将一楼房间分隔出一部分作为生活阳台,另一部分变为多功能房;二楼的空间划分我们将两间房间变为一间大的套间,卫生间的布局也更为个性化,还新加入了浴缸的功能;床尾的楼板我们新增一个天窗开创了一条纵向的动线,即从卧室可直达一楼的多功能间活动,而不必只有楼梯那的单一行进路线,它就像每个男孩都曾幻想的属于自己的秘密基地,带入自己是各个英雄角色,尽情探索这个世界。
原布局是三房的配置,客厅有挑高,但是为了照顾更多的房间面积后让这个挑高的开间偏小,体验感受不佳。卫生间的面积也十分紧凑,无法做到干湿分区。精装修的硬装属于一种标配,也许能满足多数人的审美,但无疑不是我们客户的菜,以上厘清后,我们开始了这次的设计工作。
不大改精装修已完工的水电情况下,我们力求做到更精准的设计,只打必要的墙,只拆必要的楼板。新的平面布局首先要解决的便是入户玄关的高差,毕竟房子是用来使用的,这样可以让原本二楼低矮的鸡肋区域变成主卧的衣帽间;保持原有LDK的布局,但是扩大了挑高区域的长和宽,凸显出复式公寓层高的特点;公卫布局稍作调整,将洗手盆外置,配合放置洗衣机干衣机内凹的空间组合出一个公寓必备的洗衣房;多功能房房门的开启方式也由单扇平开门换为开启角度更大的两扇推拉门,它不仅可以放大公区的视觉轴线,也让房间的采光可以覆盖到厨房和餐厅;配合整体风格打造的红绿大理石楼梯醒目又具备功能性;将二楼原本两间房间合二为一,并在墙上开洞让纵向的视觉得到联通,主卧新增浴缸的功能,回到家放着音乐,灯光调到休闲模式,美美的泡个澡没有什么比这个时刻更能让人感到放松了,单独的马桶间单独的淋浴间都提升了公寓的生活品质,床尾的桌子放有电竞电脑,还有放有冷饮的迷你吧,一个人也能过得怡然自得;另一边的角落开有天窗可以连接一楼和二楼,某天早上醒来后先去迷你吧那来一杯手冲美式,然后顺着天窗下到多功能房做无氧运动,塑身锻炼是如此高效简洁,是日常也是生活。改造后的平面布局拓宽了独居的生活动线,审美与功能达到一种平衡。
空间硬装的配色上整体以模拟氧化后的白色乳胶漆为主色调,搭配橡木地板,天然洞石,莱姆石瓷砖等同色相的材质,再点缀银色瓷砖,实心不锈钢和绿色红色的天然大理石丰富视觉层次,软装选品的轮廓简约但色彩丰富,力求实现即复古又前卫的空间氛围。
二楼卧室的开窗提升了视觉的通透性,打通了上下的边界。
考虑到公寓的采光面朝西,格栅的置入不仅充当了护栏的作用,也让过滤后的夕阳多了份不可言说的美。
沙发后背的飘窗被黑色宇宙金大理石覆盖,作为“基座”提升了心理层面的安全感。
代表古典的洞石与代表现代化的不锈钢在同一个空间和谐共处。
通过楼梯上到二楼,重组后的卧室拥有更大的开间,也带来更为丰富的使用场景。
洗手台的位置和镜子的组合方式非常规布置,带来特别的生活体验。
居中放置的睡眠区形成的洄游动线,浴缸区域单独使用耐水的石材,和睡眠区的木地板形成材质的碰撞。
因为屋主喜欢丰富有趣的设计,浴缸区的地面选用了五颜六色的天然石材拼花,就像宝石一样十分美丽。
从卧室步行几步便是衣帽间,这样可以更好的分离灰尘与睡眠区的关系。
相关案例推荐
不合时宜设计
设计师相关作品

粤公网安备 44010602000156号