前言:
									本作品以创新融合为核心,
创造了一舒适宜人,
富有艺术感染力的空间环境。
我们希望通过这个设计,
传达年轻人崭新的生活面貌,
和对现代设计不拘泥于同种风格的思考和共鸣。
									
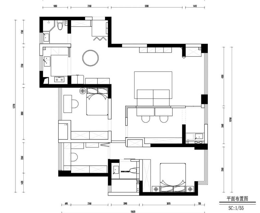
我们将原始的客厅和南面次卧中间的墙向后一米进行了重建,客厅空间扩大,次卧变为半开放式书房。
视觉上进行了调整,使进客厅的空间感放大两倍,在通透的书房中办公游戏也显得格外开阔。
入户是一个下沉区,可以做落尘使用,同时铺上地毯,有一个相对入户的仪式感;
整屋在硬装上做到极致的简约,入户的右手边是一个窄边的隐形门,把杂物间设计在这里,方便日常的收纳与整理。
业主是前卫的年轻夫妻,女业主有收藏一些复古相机,画报,杂志等。对混搭的折衷主义情有独钟,其中运用了部分孟菲斯风格的元素,它充满活力,色彩大胆,常常运用鲜艳的红,蓝,黄等色彩,营造活力四射的氛围。
关键词:开放、明亮、互动
暖色调的整屋,加上一些复古且色调俏皮的软装,客厅的感受就是开阔,小资,艺术;全屋包括顶面/墙面/地面统一一种色调,放眼望去是整体且风格大气的感受;
豆腐块的沙发,以及毛圈质感的布艺跟整体空间氛围非常符合。
书房与客厅运用了一块透明的玻璃来做区块分割,同时成为沙发背景墙,保证了空间的互动性与敞开性,同时书房与阳台相连,将阳台与客厅做隔断,客厅更为整体,同时也保证了阳台的利用率;
书房的顶面做了一个圆弧的造型照明,利用软膜灯光,将整块区域做了艺术处理,也保证了灯光的层次。
整个客厅的收纳较小,将收纳移入书房空间,保证客厅的整齐,也保证收纳的空间,非常巧妙的设计。
餐厅的配色设计师来回选了很多次,孟菲斯的运用,在整个空间发挥地非常巧妙和谐;餐边柜是在设计之前业主选购好了的产品,所以设计师会利用业主的一些喜好,做一个整体的搭配;
吊灯的选用也是设计师经过多次调整,发现这个造型跟整个空间是比较和谐,比起之前的圆形或者其他材质的灯具,更符合空间的氛围营造。
相关案例推荐
 
							上海鸿鹄设计
设计师相关作品
 
 
 
												
													
														
															
																 
												
													
														
															
																 
												
													
														
															
																 
												
													
														
															
																 
												
													
														
															
																 
												
													
														
															
																 
												
													
														
															
																 
												
													
														
															
																 
												
													
														
															
																 
												
													
														
															
																 
												
													
														
															
																 
												
													
														
															
																 
												
													
														
															
																 
												
													
														
															
																 
												
													
														
															
																 
												
													
														
															
																 
                                                     
                                                         
                                                     
                                                         
                                                     
                                                         
                                                     
                                                     
                                                     
											
										 
											 
											 
											 
											 
											 
														 
														 
														 
														 
														 
				 
                
 粤公网安备 44010602000156号
粤公网安备 44010602000156号