前言:
									本案设计之初 业主找到我们希望在钢筋丛林的城市中能有一个温软放松的家 在现场勘测后 看见窗外成片的绿色 就确定了整体方案的设计走向和思路 希望通过简单的色彩还原一个空间应有的温度 空间的载体希望通过业主的生活填满其中
案例的整体造型考量也是希望 去除不必要的装饰堆砌和刻意营造 更多的是空间的适合度 围合感 而是真正属于这个空间的色彩和材质
在方案深化前期 我们做了整体方案的详尽色彩取样和物料提前归置 在风格定向上做到与业主的绝对统一 保证整体方案的有效进行 空间结构的变更也进行深入讨论 希望通过对于空间的重塑能把业主的期待一一实现
									
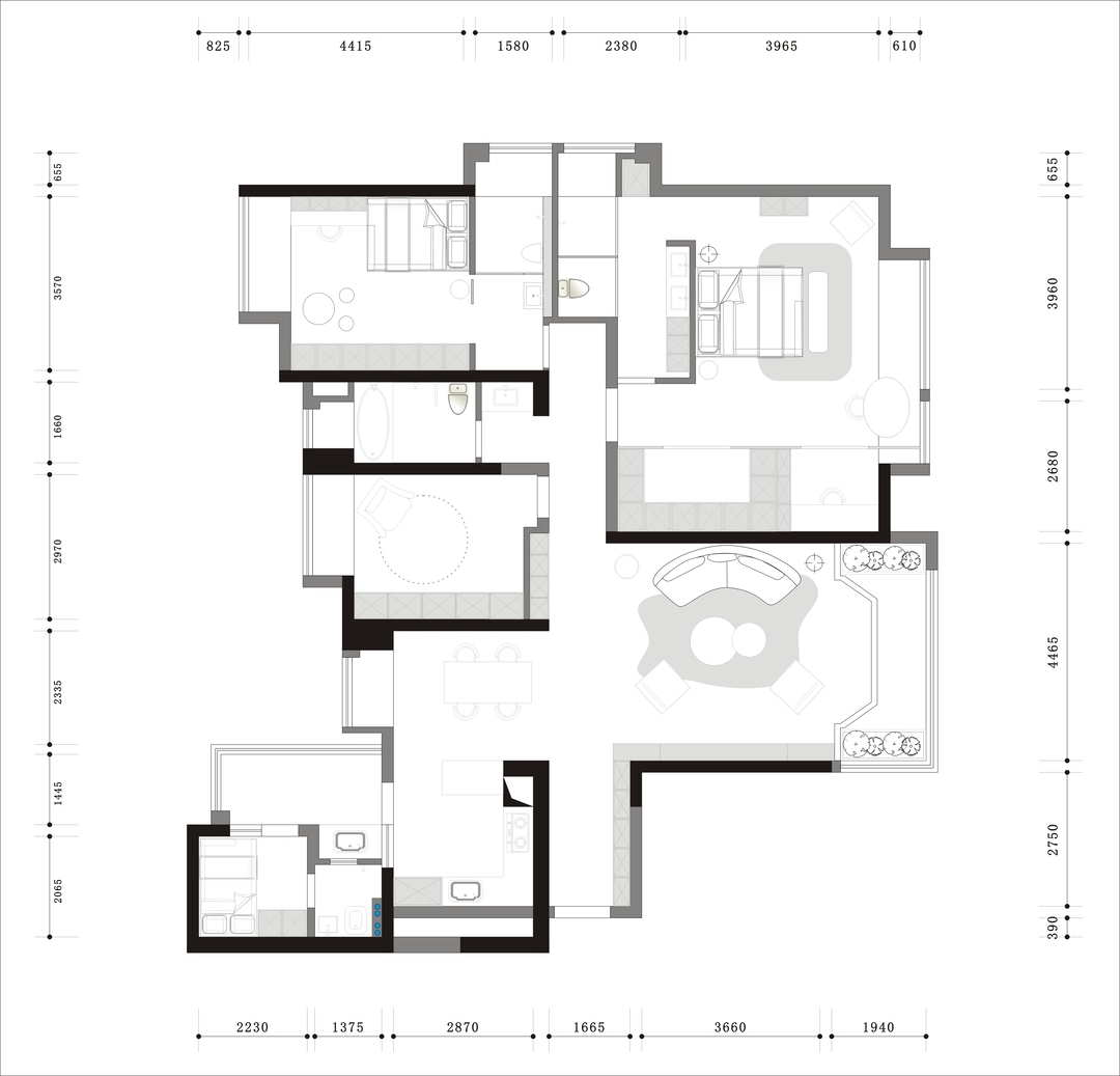
原始户型是套四大平层户型结构 开间大 采光优良 分区也独立
但是整个空间动线过于单一 个别空间面积比例不协调 造成空间功能配置不均衡
①入户空间过于狭长 除了收纳考量 整体入户后的功能多样性和开阔度没得到体现
②客厅纵深开间比不够 整个客厅显得“瘦长”
③餐厅厨房比例过小 与客厅的狭长感对比显得更加秀气 空间的有效利用率过低
④阳台面积多大 对于双阳台户型的设计 怎样提升阳台的“幸福”感 空间未得到体现
⑤儿童房动线单一 对于功能场景使用的多样性缺乏
⑥主卧虽然空间够大 但是对于大户型的独立衣帽间并未做单独考虑 整空间过于呆板 有趣不足
结合业主的具体使用需求  三口之家的套四户型使用率变得过低 独立的亲子陪伴区和休闲空间没有得到体现 侧面让面积较大的户型失去了它应有的优势
重新梳理后的空间 动线有效得到释放和丰富了
①入户空间在满足基础功能需求后 加入了回家开门后过度空间的仪式感
②客厅的布局采用了更为灵活的家具摆放方式 打破传统排排坐的死板 加入更多对话感 客厅向阳台外推 增加了客厅的整体开间 拉低了原始户型纵深比例过度问题
③餐厅餐桌摒弃靠墙放的传统 希望通过餐桌放置丰富餐厅功能动线
④阳台保留室外空间 增加空间休闲多样性 室内与室外的缓冲区
⑤儿童房采用围合式布局 将睡眠区 学习区和收纳区都得到有序分离 将原有空间功能单一性丰富
⑥儿童房卫生间设置干湿分离区 干区作为盥洗区也作为进入儿童空间的连接区 增加空间连续性
⑦主卧将床旋转180°对向大面积 玻璃窗 每天起床第一眼便是窗外满满的绿色 增加空间仪式感
⑧将原有次卧并入主卧 增加衣帽间及读书区 丰富了整个主卧的功能性
⑨主卫引用三分离设置 将每个区域独立出来 增加使用舒适度 与主卧形成洄游动线 增加空间趣味性
⑩开放原有厨房空间 增加双用岛台丰富原有厨房操作区 光线的引入也提亮了整个空间 开放式设计也增加了家人间的就餐乐趣和交流度
												 玄关
															
														
															
																鞋柜
															
														
															
																灯具
															
														
															
																自然风
															
														
															
																门厅柜
															
														
															
																镜子
															
														
															
																法式
															
														
															
																饰品
															
														
															
																瓷砖
															
														
															
																玄关柜
												
													
														
															
																玄关
															
														
															
																鞋柜
															
														
															
																灯具
															
														
															
																自然风
															
														
															
																门厅柜
															
														
															
																镜子
															
														
															
																法式
															
														
															
																饰品
															
														
															
																瓷砖
															
														
															
																玄关柜
															
														
													
												
											
入户空间作为室内外的过渡区承载了收纳 更换 准备的功能 也是业主回家解除的第一空间 我们希望它带来的更多的是业主回家后心情的切换场所 烦恼喧嚣不带回家
在设置了常规鞋柜收纳区后 在进门处镂空处理的一处进门侧玄关 增加了步入空间的仪式感
为了呈现整体的轻松氛围 鞋柜的柜门我们规划成了实木百叶 希望增加整个空间透气度而不是闷闷到顶的门 色彩上为了呈现更温润的感觉 期间经历了多次打样确认 希望实木质地得以最大保留又不会多于突兀
												 沙发墙
															
														
															
																地毯
															
														
															
																法式
															
														
															
																饰品
															
														
															
																窗帘
															
														
															
																绿植
															
														
															
																艺术品
															
														
															
																客厅
															
														
															
																灯具
															
														
															
																自然风
															
														
															
																沙发
															
														
															
																瓷砖
															
														
															
																电视墙
												
													
														
															
																沙发墙
															
														
															
																地毯
															
														
															
																法式
															
														
															
																饰品
															
														
															
																窗帘
															
														
															
																绿植
															
														
															
																艺术品
															
														
															
																客厅
															
														
															
																灯具
															
														
															
																自然风
															
														
															
																沙发
															
														
															
																瓷砖
															
														
															
																电视墙
															
														
													
												
											
												 沙发墙
															
														
															
																绿植
															
														
															
																装饰画
															
														
															
																灯具
															
														
															
																地毯
															
														
															
																客厅
															
														
															
																自然风
															
														
															
																沙发
															
														
															
																法式
															
														
															
																饰品
															
														
															
																瓷砖
															
														
															
																窗帘
												
													
														
															
																沙发墙
															
														
															
																绿植
															
														
															
																装饰画
															
														
															
																灯具
															
														
															
																地毯
															
														
															
																客厅
															
														
															
																自然风
															
														
															
																沙发
															
														
															
																法式
															
														
															
																饰品
															
														
															
																瓷砖
															
														
															
																窗帘
															
														
													
												
											
客厅的整个空间我们将色调处理成更柔和的暖灰色系列 顶面部分所有的阴阳角都处理成弧形 最大程度削弱了空间的轮廓感 希望空间的所有的块面都能融合 在灯具的选择上也采用的石膏灯让顶面线条感减弱
地面的材质考虑后期清洁有同时为了保证空间整体的温暖度旋转了木纹砖来做处理
												 沙发墙
															
														
															
																绿植
															
														
															
																灯具
															
														
															
																地毯
															
														
															
																客厅
															
														
															
																自然风
															
														
															
																沙发
															
														
															
																法式
															
														
															
																饰品
															
														
															
																瓷砖
												
													
														
															
																沙发墙
															
														
															
																绿植
															
														
															
																灯具
															
														
															
																地毯
															
														
															
																客厅
															
														
															
																自然风
															
														
															
																沙发
															
														
															
																法式
															
														
															
																饰品
															
														
															
																瓷砖
															
														
													
												
											
												 绿植
															
														
															
																艺术品
															
														
															
																灯具
															
														
															
																地毯
															
														
															
																客厅
															
														
															
																自然风
															
														
															
																沙发
															
														
															
																法式
															
														
															
																饰品
															
														
															
																瓷砖
															
														
															
																窗帘
												
													
														
															
																绿植
															
														
															
																艺术品
															
														
															
																灯具
															
														
															
																地毯
															
														
															
																客厅
															
														
															
																自然风
															
														
															
																沙发
															
														
															
																法式
															
														
															
																饰品
															
														
															
																瓷砖
															
														
															
																窗帘
															
														
													
												
											
客厅软装考虑的更多的是柔软的布艺棉麻系列 搭配大体量的橡皮树让空间整体的呼吸感提升
												 沙发墙
															
														
															
																绿植
															
														
															
																灯具
															
														
															
																地毯
															
														
															
																客厅
															
														
															
																自然风
															
														
															
																沙发
															
														
															
																法式
															
														
															
																饰品
															
														
															
																瓷砖
															
														
															
																电视墙
															
														
															
																窗帘
												
													
														
															
																沙发墙
															
														
															
																绿植
															
														
															
																灯具
															
														
															
																地毯
															
														
															
																客厅
															
														
															
																自然风
															
														
															
																沙发
															
														
															
																法式
															
														
															
																饰品
															
														
															
																瓷砖
															
														
															
																电视墙
															
														
															
																窗帘
															
														
													
												
											
客厅整体向原有阳台“借用”了一部分 既保留了原有阳台室外空间 也让客厅空间开间进深比变得协调 八角老钢门造型也让整个客厅空间透露出复古感
												 沙发墙
															
														
															
																绿植
															
														
															
																灯具
															
														
															
																地毯
															
														
															
																客厅
															
														
															
																自然风
															
														
															
																沙发
															
														
															
																法式
															
														
															
																饰品
															
														
															
																瓷砖
															
														
															
																窗帘
												
													
														
															
																沙发墙
															
														
															
																绿植
															
														
															
																灯具
															
														
															
																地毯
															
														
															
																客厅
															
														
															
																自然风
															
														
															
																沙发
															
														
															
																法式
															
														
															
																饰品
															
														
															
																瓷砖
															
														
															
																窗帘
															
														
													
												
											
												 沙发墙
															
														
															
																地毯
															
														
															
																法式
															
														
															
																饰品
															
														
															
																窗帘
															
														
															
																绿植
															
														
															
																艺术品
															
														
															
																客厅
															
														
															
																灯具
															
														
															
																自然风
															
														
															
																沙发
															
														
															
																瓷砖
															
														
															
																电视墙
												
													
														
															
																沙发墙
															
														
															
																地毯
															
														
															
																法式
															
														
															
																饰品
															
														
															
																窗帘
															
														
															
																绿植
															
														
															
																艺术品
															
														
															
																客厅
															
														
															
																灯具
															
														
															
																自然风
															
														
															
																沙发
															
														
															
																瓷砖
															
														
															
																电视墙
															
														
													
												
											
												 绿植
															
														
															
																灯具
															
														
															
																地毯
															
														
															
																客厅
															
														
															
																自然风
															
														
															
																沙发
															
														
															
																法式
															
														
															
																饰品
															
														
															
																瓷砖
															
														
															
																电视墙
															
														
															
																窗帘
												
													
														
															
																绿植
															
														
															
																灯具
															
														
															
																地毯
															
														
															
																客厅
															
														
															
																自然风
															
														
															
																沙发
															
														
															
																法式
															
														
															
																饰品
															
														
															
																瓷砖
															
														
															
																电视墙
															
														
															
																窗帘
															
														
													
												
											
客厅电视墙整体采用简易壁炉形式进行内嵌 给空间整体造型做减法
电视柜部分也使用地台代替了成品电视柜 横向造型视觉拉通了整个客厅开间
												 沙发墙
															
														
															
																装饰画
															
														
															
																灯具
															
														
															
																地毯
															
														
															
																客厅
															
														
															
																自然风
															
														
															
																沙发
															
														
															
																法式
															
														
															
																饰品
															
														
															
																瓷砖
															
														
															
																电视墙
												
													
														
															
																沙发墙
															
														
															
																装饰画
															
														
															
																灯具
															
														
															
																地毯
															
														
															
																客厅
															
														
															
																自然风
															
														
															
																沙发
															
														
															
																法式
															
														
															
																饰品
															
														
															
																瓷砖
															
														
															
																电视墙
															
														
													
												
											
从客厅看向餐厅 餐厅部分由于原有顶面结构 我们索性将顶面规整为一整个大块面 尽量简化整个空间硬装 空调设备则藏置于客厅餐厅走廊处吊顶侧面也处理成弧形 进一步强化空间的柔软度
												 艺术品
															
														
															
																装饰画
															
														
															
																灯具
															
														
															
																地毯
															
														
															
																客厅
															
														
															
																自然风
															
														
															
																沙发
															
														
															
																法式
															
														
															
																饰品
															
														
															
																瓷砖
												
													
														
															
																艺术品
															
														
															
																装饰画
															
														
															
																灯具
															
														
															
																地毯
															
														
															
																客厅
															
														
															
																自然风
															
														
															
																沙发
															
														
															
																法式
															
														
															
																饰品
															
														
															
																瓷砖
															
														
													
												
											
进门处看向客厅及餐厅 在大色块中找到深浅两色来区分空间 层次中能把握到整体的简约
												 自然风
															
														
															
																储物隔板
															
														
															
																法式
															
														
															
																置物架
															
														
															
																油烟机
															
														
															
																烤箱
															
														
															
																瓷砖
															
														
															
																橱柜
															
														
															
																厨房
															
														
															
																嵌入式家电
															
														
															
																开放式厨房
												
													
														
															
																自然风
															
														
															
																储物隔板
															
														
															
																法式
															
														
															
																置物架
															
														
															
																油烟机
															
														
															
																烤箱
															
														
															
																瓷砖
															
														
															
																橱柜
															
														
															
																厨房
															
														
															
																嵌入式家电
															
														
															
																开放式厨房
															
														
													
												
											
												 冰箱
															
														
															
																洗碗机
															
														
															
																自然风
															
														
															
																法式
															
														
															
																瓷砖
															
														
															
																橱柜
															
														
															
																厨房
															
														
															
																嵌入式家电
															
														
															
																壁柜
															
														
															
																开放式厨房
												
													
														
															
																冰箱
															
														
															
																洗碗机
															
														
															
																自然风
															
														
															
																法式
															
														
															
																瓷砖
															
														
															
																橱柜
															
														
															
																厨房
															
														
															
																嵌入式家电
															
														
															
																壁柜
															
														
															
																开放式厨房
															
														
													
												
											
厨房整体打开后采光提升整体色调处理的相对较暗 由于原有厨房相对较小 为了保证空间统一性 我们特意定制了厨房墙砖 让乳胶漆和砖的色彩有更好的过度
橱柜的材质选择上也使用了质感温润度更高的实木做旧 吊柜处特意做了隔板加柜体的结合 让空间不再死板沉闷
餐厅整体色调会比客厅略暗一些 希望打造一种静谧舒适的就餐空间
餐厅除了家人就餐 也是家人沟通的重要场所 所以我们在餐厅软装处理时特意选择了弧形的餐桌 给原本有棱角的空间多一份柔和
空调设备也利用了飘窗位置设置在了飘窗上方 既美观隐蔽又不占用到其他空间
												 地板
															
														
															
																装饰画
															
														
															
																灯具
															
														
															
																自然风
															
														
															
																法式
															
														
															
																饰品
															
														
															
																床品
															
														
															
																床
															
														
															
																床头柜
															
														
															
																卧室
												
													
														
															
																地板
															
														
															
																装饰画
															
														
															
																灯具
															
														
															
																自然风
															
														
															
																法式
															
														
															
																饰品
															
														
															
																床品
															
														
															
																床
															
														
															
																床头柜
															
														
															
																卧室
															
														
													
												
											
主卧空间的整体考量是功能 空间和人的关系 卧室是睡眠的空间 也是业主呆最久的空间所以空间整体的松弛感是我们想要重塑的第一步 通过前期色彩调查 我们将整体色调定位在豆蔻青灰墙面辅助的线条又强化出空间的精致感 让整个空间是有秩序的放松
在主卧读书区的打造上为了整体材质的统一 我们采取了实木壁挂系统方式做处理
因为空间不是特别大 所以想整体的功能性物件更轻盈 挂墙书架是不二选择
儿童房的整体营造上是想保留儿童的童趣又不过分标签化
在前期硬装上也是秉承减法原则 尽可能给空间留更多的可能性
后期定制柜上也选择了更有弧度的门板给空间柔润
儿童房的床头取消了传统床的靠背 用软包来做整体床头 从硬装简化了后期软装的繁琐
定制柜体的整体设计遵循留白处理 在白色的基础上增加弧形线条元素来做调解
衣柜部分在满足收纳需求后将靠床一侧留位卡座区 给空间带来新的功能定义
从进门处看向儿童房视觉
在地面砖和木地板直接的收口采用硬碰原则 在地面处尽量保证空间的简洁性
客厅阳台我们保留了室外形式 是希望给业主带来一个室内外的链接空间
整个阳台空间我们都采用木料做包裹 色调也做的更深一些 利用软装藤编元素 希望给与这个空间更多的松弛
主卫考虑三分离设置 与床区形成空间洄游动线 增加空间趣味性
浴室柜的整体考虑也是实木为主 给予空间最多的温暖 悬挂式的浴室柜也增加了整个浴室空间透气度
收纳柜部分则采用藤编元素 放松整个空间气质
卫生间干区的设置采用了防水乳胶漆作统一的处理 儿童房的门也刻意让商家打了色样 保证了颜色的统一性 浴室柜的选择则采用了复古经典的搪瓷壁挂水槽 可爱中有不会过于甜腻 让整个干区空间丰富轻盈
儿童房卫生间原有户型采光较为闭塞 我们将原有墙体去除 用老钢门来做隔断媒介
提高了空间采光同时也因为材质的特殊属性是空间装饰性进一步提高 而不是刻意的堆砌
儿童房卫生间里利用墙体厚度做了拉通壁龛的设计 也将马桶及卫浴设置成墙排方便后打扫卫生
湿区的墙砖选用手工小方砖来打造 局部的使用 可爱的同时又收敛
相关案例推荐
 
							两个胖子
设计师相关作品
 
 
 
												
													
														
															
																 
												
													
														
															
																 
												
													
														
															
																 
												
													
														
															
																 
												
													
														
															
																 
												
													
														
															
																 
												
													
														
															
																 
												
													
														
															
																 
												
													
														
															
																 
												
													
														
															
																 
												
													
														
															
																 
												
													
														
															
																 
												
													
														
															
																 
												
													
														
															
																 
												
													
														
															
																 
												
													
														
															
																 
												
													
														
															
																 
												
													
														
															
																 
												
													
														
															
																 
												
													
														
															
																 
												
													
														
															
																 
												
													
														
															
																 
												
													
														
															
																 
												
													
														
															
																 
                                                     
                                                         
                                                     
                                                         
                                                     
                                                     
                                                     
                                                     
                                                         
											
										 
											 
											 
											 
											 
											 
														 
														 
														 
														 
														 
				 
                
 粤公网安备 44010602000156号
粤公网安备 44010602000156号