前言:
									项目背景:
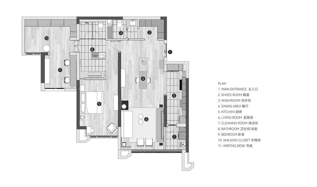
本案位于重庆江北嘴一套面积120平方米的超高层住宅。原单面采光的结构使空间分割严重,为寻找灵活功能布局提供了契机。设计借助原有结构进行空间改造,将公共区与私密区有机区分。新的布局手法打造开阔通透的视觉体验,同时保留了每个功能区域的独立性,为业主打造了一处紧张工作后的安心居所。
设计特色:
这处超高层公寓进行了大胆创新的空间改造。设计团队将原单面采光的房型,通过利用机灵的布局手法划分为明确的功能区。他们保留结构墙体,又新辟开阔的视线通廊,利用弧形隔断巧妙构建既开放的局部交流区,又保有每个区域的独立性。通过利用原有缺陷进行创新布局,设计将狭长单一的房型变为连贯流畅、功能兼备的新居。
									
相关案例推荐
网友评论
						
						
						
						
                        
						
						 
							柴若乔
 
 
 
												
													
														
															
																 
												
													
														
															
																 
												
													
														
															
																 
												
													
														
															
																 
												
													
														
															
																 
												
													
														
															
																 
												
													
														
															
																 
												
													
														
															
																 
												
													
														
															
																 
												
													
														
															
																 
												
													
														
															
																 
												
													
														
															
																 
												
													
														
															
																 
												
													
														
															
																 
												
													
														
															
																 
												
													
														
															
																 
												
													
														
															
																 
												
													
														
															
																 
												
													
														
															
																 
												
													
														
															
																 
												
													
														
															
																 
												
													
														
															
																 
                                                     
                                                     
                                                     
                                                         
                                                     
                                                         
                                                     
                                                         
                                                     
											
										 
											 
											 
														 
														 
														 
														 
														 
				 
                
 粤公网安备 44010602000156号
粤公网安备 44010602000156号