前言: 设计遵循了“Less is more”的原则,保持了简约线条和清晰的形式,避免过度装饰。
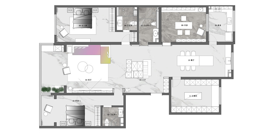
玄关
门厅整体以白色和浅木色为主调,营造出明亮和温馨的氛围。局部使用了深色,柜体楼梯踏步和墙面装饰,来增加层次感和视觉冲击力。“台阶”实际上是一个小型的植物展示区,内置了暖黄色的灯光,为房间增添了生机和趣味性。
客厅
空间主要使用了白色、灰色和大地色调,创造出温暖而宁静的居住环境也使其显得更加高雅和宽敞。大窗户确保了自然光的充足进入,增强了室内的亮度并营造出通透的感觉。同时也提供了对户外景观的视野,将自然融入室内空间。
餐厅
在餐厅的一角,有一个金色的摆设,为整个空间增添了一抹奢华感。餐厅与厨房通过一扇大型的玻璃推拉门相连。这不仅提供了方便的通道,也让两个空间空间有了更好的联系,增强了空间的开敞性。
衣帽间
衣帽间几乎全白的配色方案创造出一种干净、明亮的感觉。大理石纹路的地板带来一些自然元素,使空间不过于单调。尽管空间相对狭长,但它集衣柜与书桌于一体,实现了储物和工作区的双重功能。
茶室
茶室的设计旨在融合传统中国元素与现代设计美学,创造一个既适合工作学习又能体现文化品味的空间。空间中使用了木材为主要材质,传达出温暖且自然的氛围。开放式的书架和灰色墙面赋予了空间现代感,而大理石纹路的桌面则增添了奢华感。
网友评论
janepu-王研
设计师相关作品

粤公网安备 44010602000156号