前言: 这是一套联排别墅,主要是夫妻两人居住,他们热爱生活,追求品质,喜欢充满法式浪漫氛围的环境。他们希望将这个家打造成一个既适合自己居住,又适合招待亲朋好友的地方。对于三楼和四楼空间原始建筑结构重新搭建增加部分使用面积,是屋主最开心的地方。屋主希望打造不一样的现代法式,优雅有格调,融入时尚精致的元素可以彰显生活品质。
改造前的平面图:一层:入户玄关没有储物空间,过道狭窄,卫生间无采光、空间狭小,考虑四层高度,屋主需加建电梯,位置紧凑。
二层:需要一个卧室,但空间却分割的很碎。
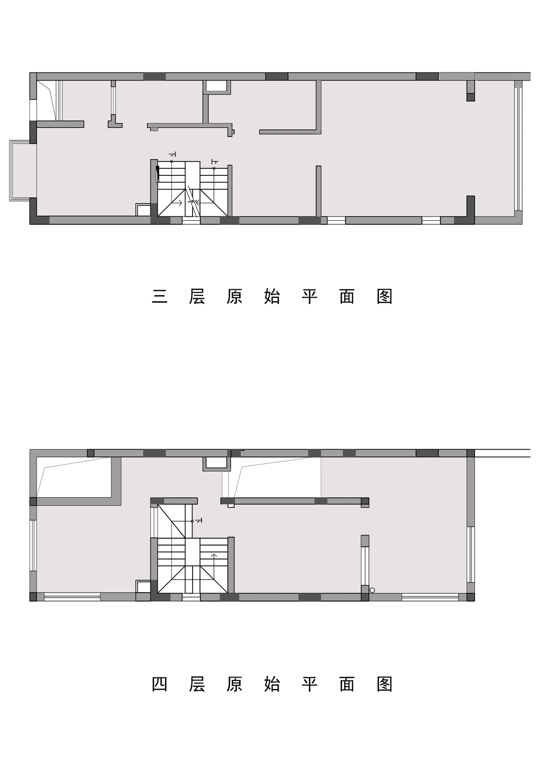
改造前的平面图:三层:作为主卧空间利用率低。卫生间无采光和通风,空间很拥挤,不能满足屋主希望卫生间有浴缸且明亮的想法。
四层:两边都有露台,屋主希望保留一边的露台即可,另外一边可以改造成一个多功能空间。
改造后的平面图:一层:入户门外移,过道增加鞋柜收纳。拆除所有墙体,重新规划出中西厨、增加电梯井,扩大过道空间。整个动线比较流畅,视觉上让客餐厅更加宽敞。
二层:原卧室空间,有挑空部分,现浇后改成次卧室。在客厅挑空位置,屋主希望栏杆位置有一个造型,我们正好利用这个空间,把空调内机安装在这个区域。
改造后的平面图:三层:做了一个很大胆的尝试,把东边无采光且狭小的卫生间改到西边,墙面切割出窗洞,解决采光和通风,满足屋主需要浴缸及干湿分区的需求。
四层:把南边原有的露台扩建出去,改造成一个多功能空间,空间配备了衣帽间,为以后功能的变化预留位置。北面的露台挑空位置浇筑后,把生活晾晒都放在这个区域。
因为空间增加了电梯,停靠在四楼的位置和原有楼梯有冲突,我们把最后一个梯段的楼梯重新改造,电梯落在平台再上几个踏步分别去到露台及多功能空间,解决了预算及电梯停靠的问题。
作为主要的会客区,客餐区全部采用开放式布局,空间开阔大气,墙面设计上采用PU线条 随着视线上移,圆环型水晶吊灯引人入胜,呈现精致奢华的氛围。
站在墙边往餐厅和客厅看去,橱柜开放格跳跃了墨绿色,与客厅的暗红沙发形成鲜明的冷暖对比。软装配色上面采用了大胆的色调,整个空间却无违和感。
法式风需要活泼的色彩来点缀,于是这个光荣的任务就交给单人沙发了,暗红色的植绒布料,坐起来无比舒适享受。中间的茶几两个圆形组合,木色和玻璃的搭配,时尚温馨。
站在墙边往餐厅和客厅看去,橱柜开放格跳跃了墨绿色,与客厅的暗红沙发形成鲜明的冷暖对比。软装配色上面采用了大胆的色调,整个空间却无违和感。
餐边柜采用奶白色造型柜门,圆弧形搭配铜色拉手及墨绿色,为空间增加了大大亮点。
餐厅采用了大理石纹路岩板餐桌,搭配法式橄榄绿丝绒餐椅用餐空间氛围感十足。
下半墙的仿大理石瓷砖+上半墙防水主题墙布,随着窗外光线的角度呈现不同的色彩,浓浓的氛围感。浴缸是提升幸福感的利器,托盘放上杯咖啡和杂志,休闲而放松。
主卫贴瓷砖的话防潮防水效果会比较好,但是屋主不喜欢全贴瓷砖的感觉,所以上方就贴了防水主题墙布,配上白色仿大理石瓷砖,呈现上下分色的效果,看起来也蛮特别的。
卫生间干区悬空式的外挂台盆、瓷白金属龙头、智能镜、金属拉手等,小空间也很好的呼应空间轻奢法式风格。
推门而入的是我们的主卧室,45㎡的大主卧,宽敞而明亮,长方形的卧室+落地玻璃窗户,视野开阔,温柔且浪漫。
三楼层主卧室功能上除了卧室睡觉以外还配有卫生间、休闲阳台、梳妆台,背景墙面颜色上还是跳跃了一点藕粉色,搭配绒面香槟驼色定点拉扣床、轻奢吊灯、拉丝壁灯,鱼骨拼接地板。床尾整条衣柜,满足女主的日常收纳。
主卧室通刷藕粉色乳胶漆+pu线条点缀,点睛之笔是墙面上黄铜水晶壁灯,营造出甜而不腻的法式氛围。
休息的时候可以坐在窗户边,赏外景,看书,留出属于自己的时光。
定制的梳妆台有了灯光和墙纸的装饰变得更加有趣,这里的梳妆台呼应床背景的颜色,也跳跃了一个藕粉色。
原先这里有个卫生间,考虑采光和通风就把它重新规划到其他位置,留出的位置定制7米的储物柜,储物柜和梳妆台合为一体,屋主日常的梳妆和更衣都可以在这里完成,省了不少时间和麻烦。
这既是一个书房也是一个备用的卧室,屋主以后有了宝宝,这个空间可以改造成卧室使用。
衣柜顶部因为是下沉区域,所以我们在原有位置把顶部修饰了一下,衣柜也安排在这边,不会太压抑。
次卧室全屋为奶咖色墙漆,运用法式pu线条做床头背景造型,床单选用同色系来呼应背景。床头绿色方形挂画与窗帘呼应,清清爽爽的。
推门而入的是次卧室,两个窗户,采光和通风极好,仿木地板瓷砖仿真度很高,看上去和木地板无区别,自然纹路的木色让卧室更添一份自然温润。
作为连接上下层的过渡地带,楼梯在别墅空间中起到了“承上启下”的作用。顶部的羽毛造型艺术吊灯就像天空飘着的羽毛,牵动人们的情感,在室内留下辽阔不凡的动人气韵。
踏步做了原木色,立板和脚线做成了白色,看上去比全部做成原木更耐看清爽,扶手用超白玻璃,这样更有通透感和延展性,采光会更好。
楼梯间的吊灯选的羽毛形状的水晶吊灯,在宽敞挑空的空间错落有致排布着,能唤起人们潜意识中对美的想象和感动。
相关案例推荐
希雅设计-杨小年
设计师相关作品

粤公网安备 44010602000156号