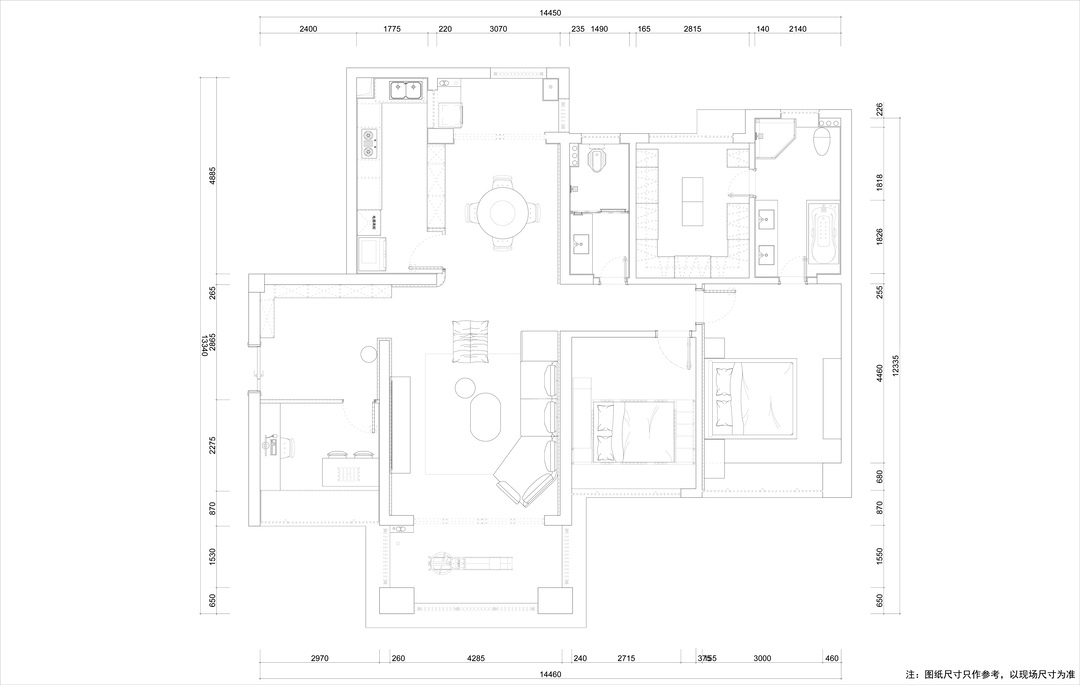
前言: 玄关分出一部分的空间做为书房,鞋柜和手办展示柜组成全新的玄关,采用黑色护墙板。客餐厅的墙体连贯玄关统一用黑色护墙板,选用激光投影代替电视机,个人电影,享受黑神话的激情。用柜子代替餐厅和厨房间的墙体。厨房一黑到底,黑色镜面烤漆门板搭配卡萨帝的酷黑。爬楼梯到树屋滑下来便是童年的回忆,形成全新的儿童空间。衣帽间、卫生间配上浴缸、主卧。客厅阳台摆上划船机享受运动带来的淋漓尽致。餐厅阳台洗烘一体机搭配内衣洗衣机,生活需要干净。这就是年轻的态度150²年轻态度。
玄关、客厅、客厅阳台、餐厅、餐厅阳台、厨房、公卫、小孩房、客房、主卧、主卫等十一个空间。
Eleven spaces including foyer, living room, living room balcony, dining room, dining room balcony, kitchen, public bathroom, children's room, guest room, master bedroom, and master bathroom.
玄关分出一部分的空间做为书房,鞋柜和手办展示柜组成全新的玄关,采用黑色护墙板。客餐厅的墙体连贯玄关统一用黑色护墙板,选用激光投影代替电视机,个人电影,享受黑神话的激情。用柜子代替餐厅和厨房间的墙体。厨房一黑到底,黑色镜面烤漆门板搭配卡萨帝的酷黑。爬楼梯到树屋滑下来便是童年的回忆,形成全新的儿童空间。衣帽间、卫生间配上浴缸、主卧。客厅阳台摆上划船机享受运动带来的淋漓尽致。餐厅阳台洗烘一体机搭配内衣洗衣机,生活需要干净。这就是年轻的态度150²年轻态度。
天花布置图
相关案例推荐
陈朝辉
设计师相关作品

粤公网安备 44010602000156号