前言:
本案业主是之前客户的妹妹,由于看到过为其姐姐装修的住宅,对我们十分信任,第一次沟通时便给到我们最真实的需求,业主夫妻二人在购入该住宅时还没有二胎,两室的房子就是他们当时认为的理想住宅,但现在有了老二,并且已经两岁了,因为是异性,所以要搬到这边时,两个孩子分房住是重要且必要的,两室改三室,便是此套案例的最大需求
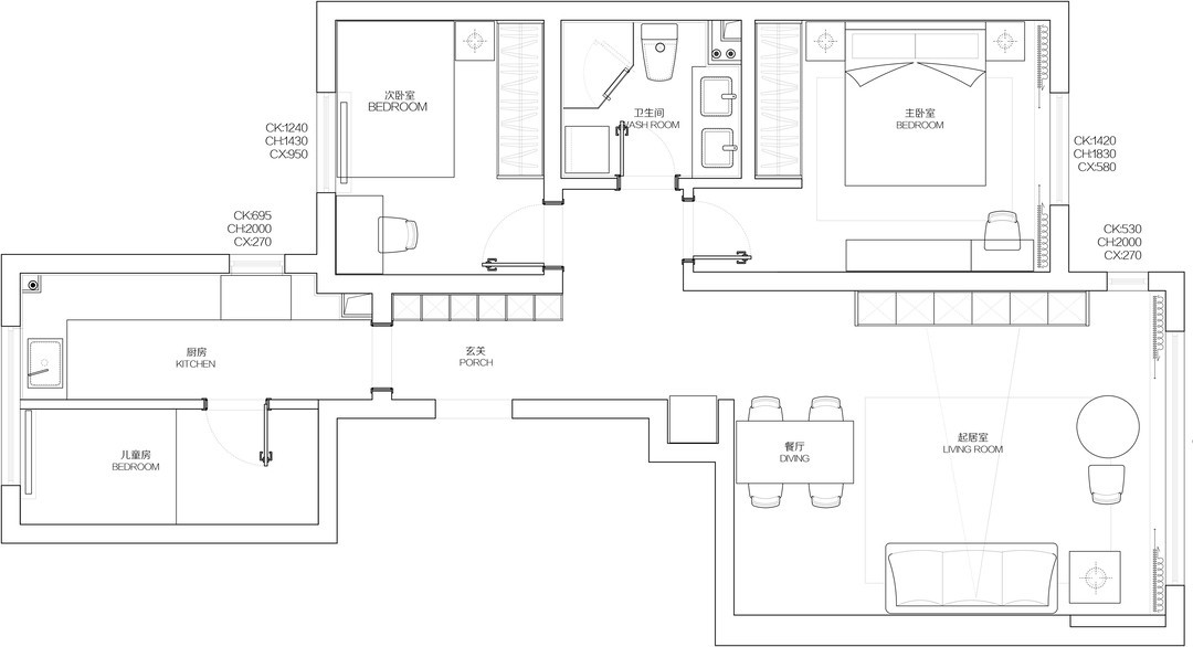
在我们实地考察后,决定将原大餐厨空间,一分为二,其中大的空间做成独立女儿房,余下空间依旧是厨房,因本身客厅空间就较大,于是将餐厅外移至客厅,舍弃掉传统的电视与电视柜,用书架储物柜代替,更是结合了业主生活习惯的非常规处理,种种不同往常的方案,让这个冰冷的住宅逐渐成为贴合了业主人文需求的托付之地
本案痛点
希望在原有的两室基础上多出一间作为女儿房,并且保留每个空间应有的功能
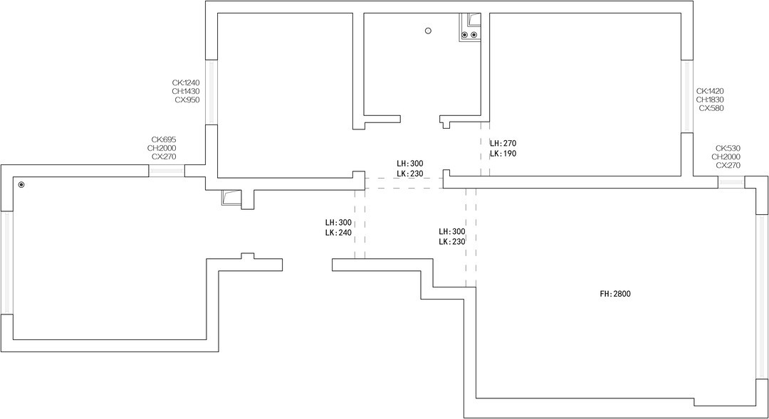
平面方案
将原餐厨空间较大且独立,于是我们将其分为两个空间,大空间留给当做女儿房,小空间作为厨房,而宽裕的客厅空间足以安置一个餐厅
客厅宽裕明亮,不论是一家人娱乐还是儿女玩耍,都有足够充裕的空间,沙发背景墙并没有过多繁杂的装饰,将孩子的绘画作品裱起来作为装饰,这种别具温馨的艺术感,将其乐融融的氛围更进一步;窗边的桌椅可作为一个休闲区,这种看似“随心所欲”的布局,其实也更加贴合了业主二人对待生活随性,佛系的态度
橄榄绿的沙发,沉稳中带有一丝优雅,简约线条的细腿沙发便于日后的清洁打理
业主希望一家人有更多的时间来阅读,学习,所以在轻影音娱乐的需求下,我们决定不采用传统的客厅布局,舍弃电视加电视背景墙,用书柜加储物柜去代替电视柜;上方开槽预埋投影幕布,对于轻度的观影需求完全可以满足,收回幕布时书架与窗边桌椅的组合又是一个采光极佳的阅读空间
奶白色的柜面,视觉上极度舒适,中间多层的开放格,除了当做书架外也可以摆放业主喜爱的艺术品
原餐厨被一分为二,左边为独立的女儿房,余下为新的厨房空间;考虑到邻近女儿房并且厨房与玄关及客厅是连通的,所以集成灶是最佳的选择;L型的布局,洗切炒的动线流畅且自然,同时也有足够的空间去容纳小电器
本是厨房空间的一部分,因为老二是女生,所以分房是必要的,于是我们将其中一部分做成独立女儿房,虽邻近厨房,但是集成灶的设计完美解决油烟问题;舒适简约,就是业主对这个女儿房的最大要求,于是淡粉色的墙漆,带有下层收纳的榻榻米组成了这个温馨舒适的小空间
主卧与男孩房都是业主的原有家具的基础上通过调整窗帘,灯具,让全屋在舒适的基调上尽量融合美观
男孩房用淡绿色的墙漆,带动出不同于女儿房的活力氛围
相关案例推荐
天津陌上设计
设计师相关作品

粤公网安备 44010602000156号