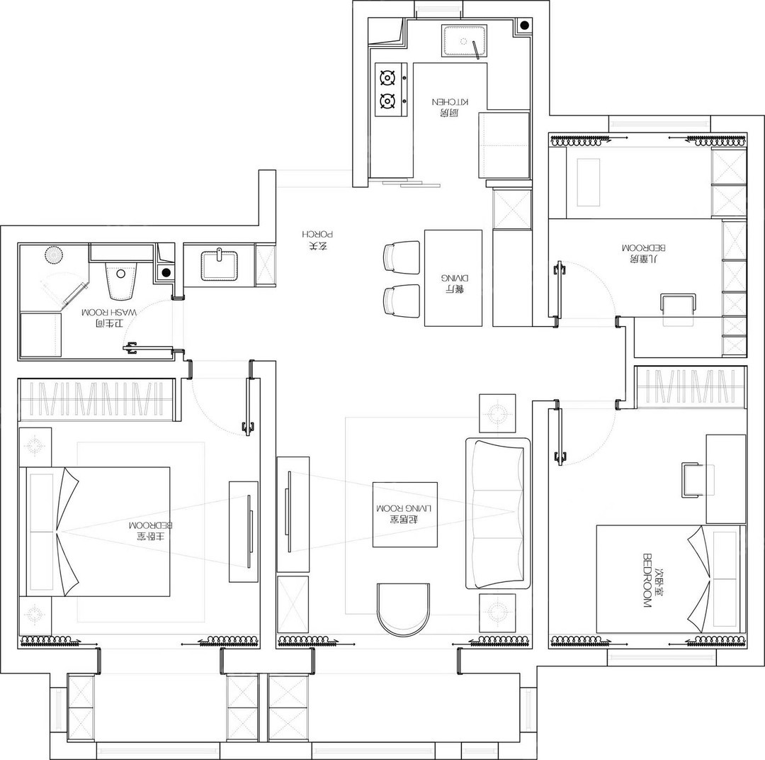
前言: 业主找到我们是源于一个同小区同户型的另外一个业主,本来业主觉得房子小,丢失了装修设计的兴趣,有一次去我们装完的同户型参观,一眼就相中了,觉得装修设计后房子看起很好啊,也不显小,于是直接通过我们的业主找到我们,第一次见面沟通很顺利,直接交钱下定。因为装过同户型比较有经验,又结合业主的具体需求,然后就有了下面这套暖暖的日韩风设计。业主是一家4口,朝鲜人,两个儿子,一个高中,一个初中,但女主人是个特别有气质的人生活很细腻,一点也看不出是有这么大儿子的妈妈。所以这个109的小3室,房间也被分配的刚刚好。主人住主卧,大儿子住次卧,小儿子住小卧。我一直觉得对于一个只有一个卫生间的房子,干湿分离显的非常重要,既能满足2个人的同时使用卫生间还不互相影响。细节处我们通过墙排马桶解决卫生清理问题,通过4层壁龛处理解决卫生间收纳问题,通过洗手盆抽拉龙头处理解决家里男人们早起洗头问题,入户通过石材的下沉处理解决入户灰尘问题等等。
本案痛点:没有入户鞋柜,餐厅及厨房较小,收纳空间少。
本案痛点解决方式:打掉原户型干湿分离的墙面,借助原有墙体厚度做了独立的入户鞋柜,解决换鞋问题。打掉一半原有厨房墙面,通过三连挂推拉门的使用增加厨房入户的空间和通透性。餐厅通过卡座的设计解决收纳问题的同时最大限度的释放的餐厅空间,让用餐不在拥挤,同时也将地暖分配器的位置很好隐藏。隔开客厅和卧室阳台增加三个储物柜,收纳容量巨大。
客厅没有复杂的吊顶,吊顶的处理都是根据中央空调新风处理的必要吊顶。豆青色的沙发和餐厅墙给这个暖暖的家增添了一份春意。
餐厅通过卡座的设计解决收纳问题的同时最大限度的释放的餐厅空间,让用餐不在拥挤,同时也将地暖分配器的位置很好隐藏。三联挂推拉门的巧妙运用既增加了厨房的通透性又解决了厨房入口的拥挤问题。
干湿分离对于一个拥有一个卫生间的四口之家显的非常重要,既能满足2个人的同时使用卫生间还不互相影响。墙排马桶解决卫生清理问题,4层壁龛处理解决卫生间收纳问题,悄悄告诉你除马桶上方两层壁龛外,淋浴房内侧还有两层壁龛。洗手盆使用抽拉龙头处理解决家里男人们早起洗头问题。
小巧的梳妆台适合空间不大的卧室,胡桃木的家具在浅色硬装的搭配下更显质感。
哈哈,大儿子的房间,除了床满满的学习氛围。
相关案例推荐
天津陌上设计
设计师相关作品

粤公网安备 44010602000156号