前言: 这是一对刚结婚不久的年轻小两口,男主银行工作人员,地道的天津人,女主大学老师,温柔漂亮的青岛姑娘,喜欢年轻时尚的复古风,在平面布局上因为是2居室所以除主卧外,我们将次卧设计成多功能房,平时就是书房游戏室衣帽间茶室,父母过来也可以小住,将来也可以作为儿童房使用。在整体设计上运用了水泥灰的地砖+胡桃木的地板,无主灯的客厅顶,点缀墨绿色的餐厅墙+墨绿色的单椅,配上焦糖色的麦瑟尔夫人真皮沙发,时尚复古感满满。
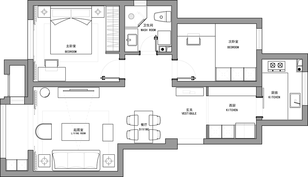
										户型图
										
											
											
								
							
								
									
								
							
								
									本案痛点:原餐厅过于细长,进门左手边过道浪费面积大。
本案痛点解决方式:将进门左手边过道改造成餐厅,将原餐厅通过不锈钢拱形口分成2部分,正对门1.5米位置改造成独立玄关,将厨房门位置进行了右侧挪位,剩余2.1米位置做成西餐厨,一面备餐台+管线机,女主可以在这个位置进行美味的西式早点制作。一面内嵌双门大冰箱+整体衣帽柜,放鞋,放包包,挂衣服一应俱全。
										厨房
										
											
											
								
							
								
									
								
							
								
									
								
							
								
									
								
							
								
									
								
							
								
									
								
							
						整个西厨的定制家具由白色肤感膜点缀绿色烤漆开放格组合而成
金色拉手也为整个定制家具画龙点睛
高低台的厨房设计让操作更方便,内嵌洗菜盆更易清理卫生
长虹玻璃内推拉,开门状态和敞开式厨房无样
相关案例推荐
网友评论
						
						
						
						
                        
						
						 
							天津陌上设计
设计师相关作品
 
 
 
												
													
														
															
																 
												
													
														
															
																 
												
													
														
															
																 
												
													
														
															
																 
												
													
														
															
																 
												
													
														
															
																 
												
													
														
															
																 
												
													
														
															
																 
												
													
														
															
																 
												
													
														
															
																 
												
													
														
															
																 
												
													
														
															
																 
												
													
														
															
																 
												
													
														
															
																 
												
													
														
															
																 
												
													
														
															
																 
												
													
														
															
																 
												
													
														
															
																 
                                                     
                                                         
                                                     
                                                     
                                                         
                                                     
                                                         
                                                     
                                                     
                                                         
											
										 
											 
											 
											 
											 
											 
														 
														 
														 
														 
														 
				 
                
 粤公网安备 44010602000156号
粤公网安备 44010602000156号