前言:
该案是为一对恋人原125㎡空间切割得狭小雾碎,爱好颇多:钢琴、书法、茶艺、烹饪,日常喜欢邀请朋友于家中聚会,由此集中在公区改善。融合人少时就餐(圆桌形式),多数人就餐(长桌形式),以及观影待客空间,再加上可偶尔留客过夜的多功能区域。针对主卧结合了衣帽间以及书房的功能区域。
为满足屋主对空间各区仪式感、氛围感的美感诉求又要满足彼此连接融合开敞大气,现代混搭中古的包豪斯风格家具尤为匹配。大面积实木胡桃木皮,哑光质感瓷砖等营造出精致的有机现代主义。地面大面积铺设象牙白肌理感瓷砖,墙顶面融合搭配胡桃木色于杏仁油白中。结合阑夜黑色体块感的家具等,铺陈开来雅致、隽永的格调氛围。
客厅中轴布局,近景、中景、远景运镜上的包豪斯风格陈设皆成为焦点,而那些随机的不对称物件成为点缀生活场景的小巧思,呈现出既有立体层次,又自由有序的居住感受。
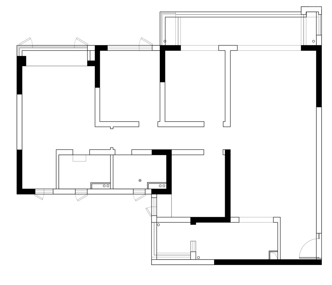
【原始户型】
【改造说明】
1.扩充厨厉面积的同时顺势优化入户空间增强储物,提升使用舒适度
2.景观阳台纳入,拆除与客餐厅紧邻两间卧室可动墙体,释放空间,扩大整个公共区域面积
3.家政空间另换动线,便捷日常使用
4.一间次卧、次卫与主卧、主卫合并,改造为集书房、衣帽间、睡眠区一体的舒适大套房
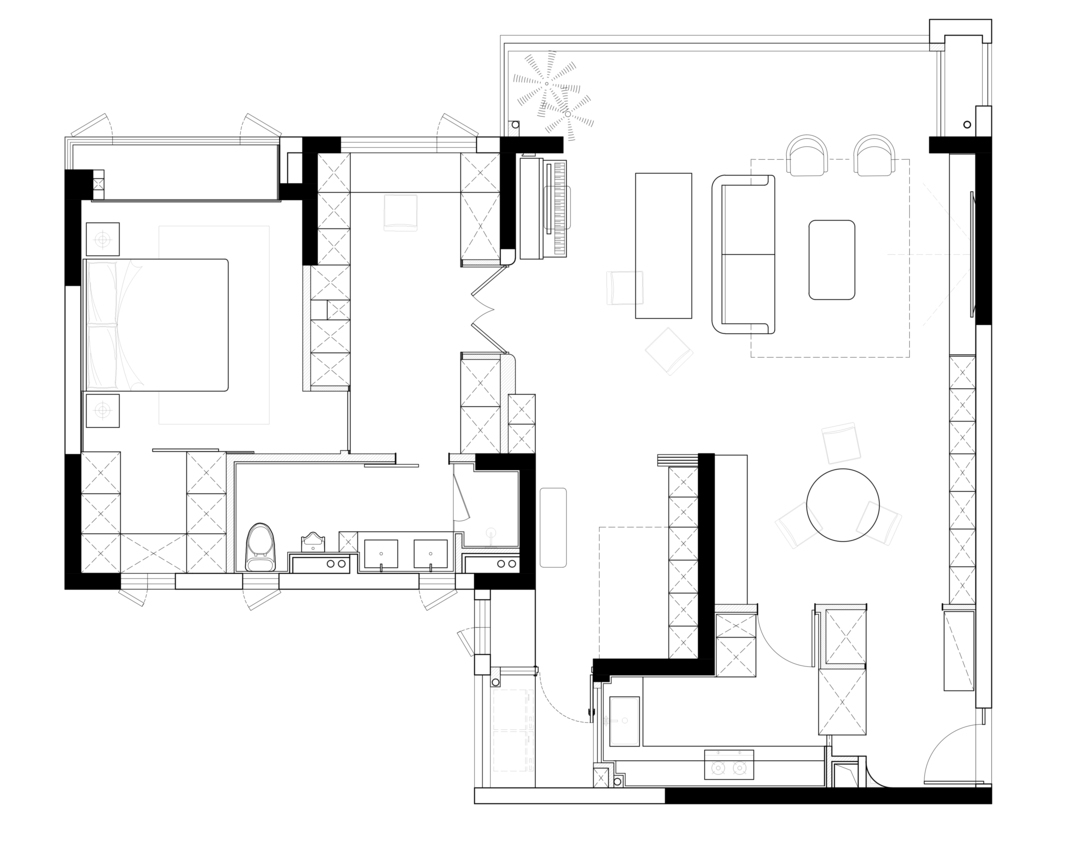
原始玄关较为封闭局促,将厨房整体后移,左侧柔和的弧形造型将拆除墙体后裸露出的烟道区域进行包裹。立面与储物柜体留出部分距离,置嵌玻璃材质实现内外借光,入户玄关收获更宽敞透亮的感官视觉。
Harry相信,即使是日复一复的如常重复,也可以通过自己对事物的感知力,触摸到令人愉悦、舒畅的生活最美好的模样。
景观阳台纳入、拆除一间卧室后,整面落地窗为空间引入丰富的自然采光。
以干净清爽的杏仁油白为全屋基调,胡桃木、阑夜黑、象牙白融合搭配,简洁的几何构图强调整体视觉,散发出温润舒适的体验氛围。
客厅中轴布局,近景、中景、远景运镜上的包豪斯风格陈设皆成为焦点。
而那些随机的不对称物件成为点缀生活场景的小巧思,呈现出既有立体层次,又自由有序的居住感受。
无客厅化设计,多元组合变化的沙发、单椅、边凳、茶几、边几、落地灯充分满足Harry邀请朋友做客时的场景所需。
可席于地毯惬意举杯,亦可对望而坐攀谈闲聊。而造型各异的花草绿植,则为空间注入一丝流动轻盈的自然气息。
坐于家中,将心境寄情于山水,空间如同一个装载故事的容器,丝毫无拘于时间的辗转变幻。
调整结构后的厨房封闭原始与家政阳台的动线连接,独立区域,便捷使用的同时扩大操作台面。
选择具有体量感以及造型别致的圆桌,摆放于餐厅中心,功能与艺术美感同时兼备。一侧设计西厨补充日常餐具、咖啡机储放,多元居家生活方式。
一间卧室墙体拆除,改换为可灵活开合的推拉门,大面积使用胡桃木材质,氛围自然而松弛。
内部为多功能空间,关闭时可作为临时客房使用。开放时与客厅连为一体,扩大公共区域的整体视觉,并局部设计挂画端景,从各个角落增强空间的艺术调性。
与客厅紧邻卧室拆除,最大化释放空间视觉。
顶部延续胡桃木材进行铺贴,迸发具有强烈识别度的风格张力,构建出全新的叙事形式。
此区域日常承载Harry弹琴、书法、饮茶、聚会等活动使用,赋予独特的居家体验。
离主卧较近的次卧、次卫一并纳入其内,集合为一间集独立书房、卫生间、衣帽间、入睡区域一体的舒适大套房。
同样以中轴布局,中心位置设计仪式感较强的胡桃木双开门,将对称印象进行强化。
空间以三段式层次关系递进,连而不断地功能状态中又充满以形为上的视觉质感,内外互动状态巧妙生趣,完整精神与生活的双向契合。
两间卫生间合并后,借部分面积给予衣帽间使用,满足Harry大量的衣帽储物需求。
延续胡桃木材作为卧室氛围主调,空间在推拉门开合之间呈现不同的视觉状态。
局部点缀暖色调灯光烘托出私密的沉浸体验感,自然之语灵动流转,入睡氛围静谧、舒适。
相关案例推荐
成都宏福樘设计
设计师相关作品

粤公网安备 44010602000156号