前言:
自带豪宅的buff感,格局打开
开放通透,高级感真的赢麻了!
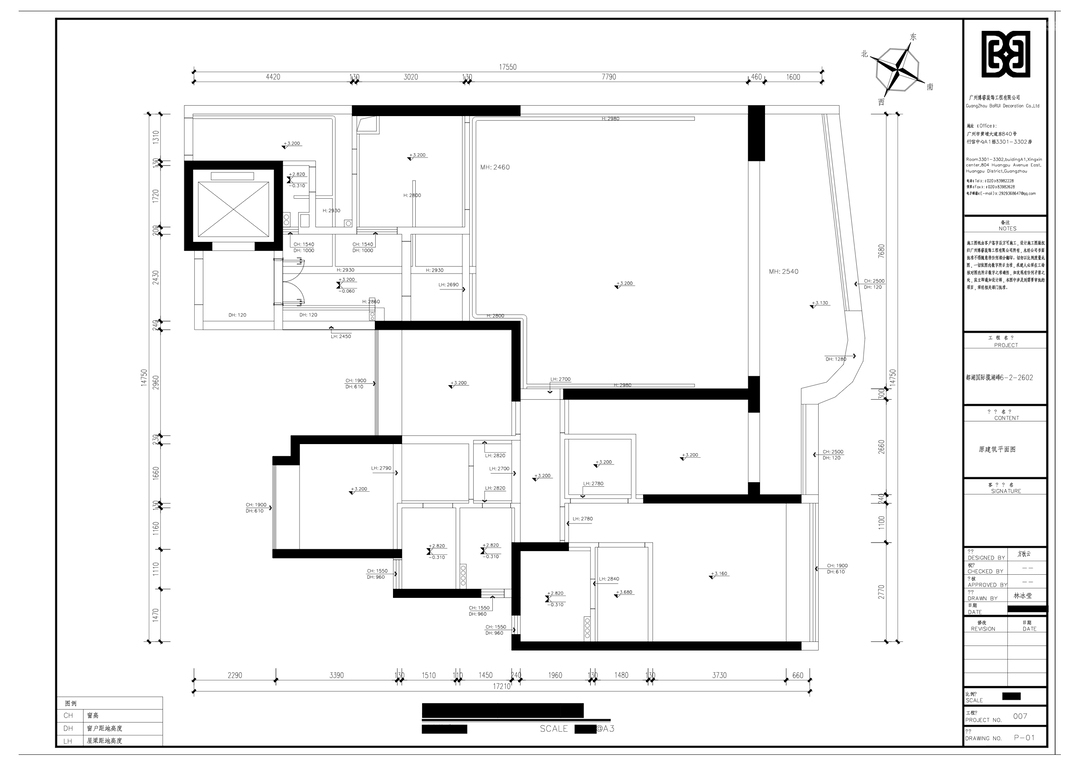
改造前
1. 过道狭长、浪费面积。
2. 需从厨房进入家政区、动线乱。
3. 各空间缺少互动性。
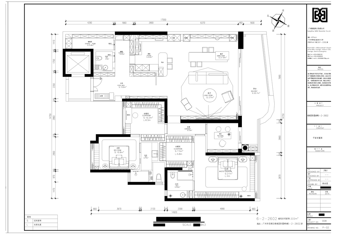
改造后
1. 展示、收纳型过道设计
原有狭长过道,一侧做成不锈钢+层板展架,与厨房连接,用来展示收藏品及酒类,另一边设计成鞋柜。
.
2. 独立鞋帽、储物间设计
原有生活阳台,设计成鞋帽间及储物间,增加家庭储物。
.
3. 客餐厅、厨房一体化
厨房整个打开,做成中西厨+餐桌岛台一体化设计,与客厅空间连接,增加双区域的互动性。
.
4. 动线清晰、分区明确
整个空间洄游动线,空间上也缩短了到各区的动线。
在入户玄关处设计一个换鞋凳,不仅方便出入门换鞋,还能增加入户的仪式感。
一进门的隔断是悬空样式中间镂空,在明暗对比下家里的场景对刚回家的主人更具吸引。
现代
地板
灯具
地毯
客厅
沙发
艺术漆
轻奢
意式极简
窗帘
现代
灯具
地毯
客厅
艺术漆
轻奢
意式极简
电视柜
电视墙
窗帘
客厅采用拱形顶是在原始的平顶中间向上延伸,这种设计适合天花板上存在横梁的空间,以及面积大或层高较高的户型。利用弧度设计让墙与顶无缝过渡,也让空间更加柔和。
现代
灯具
地毯
客厅
沙发
艺术漆
饰品
轻奢
瓷砖
意式极简
窗帘
现代
灯具
地毯
客厅
艺术漆
饰品
轻奢
瓷砖
意式极简
电视柜
电视墙
采用LDK一体化设计,放大空间感,提升空间利用率,从而增加空间的互动性。电视背景墙是将整个书柜嵌入墙体之中,结合视线中心的电视一起打造出一个“家庭图书馆”,不仅很好地解决了书籍存储的问题,还展示着家庭深厚的文化底蕴。
现代
灯具
地毯
客厅
沙发
艺术漆
饰品
轻奢
瓷砖
意式极简
电视柜
电视墙
冰箱
现代
洗碗机
置物架
油烟机
轻奢
瓷砖
橱柜
厨房
嵌入式家电
意式极简
开放式厨房
厨房配有岛台属于比较有时尚感的格局,不仅视野开阔,且时尚高档,还可以变身为水吧台,高脚椅配吧台再摆上一瓶红酒,非常有小情调,而且平常还可以拿来办公使用。
现代
灯具
置物架
油烟机
轻奢
瓷砖
橱柜
厨房
嵌入式家电
意式极简
壁柜
开放式厨房
现代
置物架
轻奢
瓷砖
厨房
嵌入式家电
意式极简
开放式厨房
吧台作为厨房的一个延伸,是一个简单的休闲区域。这简直就是最佳的聚会地,亲朋好友来做客时,可以一边在吧台喝咖啡一边与准备食物的家人或朋友聊天,拉近彼此的距离。
采用了餐桌+岛台一体的开放式西厨设计,岛台作为备菜、烹饪和洗涤区,功能丰富,一侧的L型高柜构建了电器区、红酒区,预留了充分的收纳空间,动线合理清晰,下厨轻松便捷。这样一来可以边聊天边做料理,还可以几个家人围坐参与制作美食,美好的用餐氛围。
水盆柜使用了深色的,这种板材正好和白皙、光滑的墙砖形成明暗对比、粗细对比,在对比中提升了空间的立体感。
卫生间选用自带灯光的镜子,方便主人洗漱、整理妆容。浴室的地面同样使用原木色,和水盆柜保持了相同的颜色,视觉上形成呼应,营造出更温馨的空间环境。
现代
飘窗
地板
定制柜
灯具
轻奢
床品
床
床头柜
卧室
意式极简
主卧用皮质材质进行软包,将飘窗改造成卧室的卡座或沙发,甚至可以在上面休息。既增加了卧室设计感,平时三两好友来家里做客,可以在飘窗上摆一张小桌子,坐在上面聊天,十分惬意~
现代
飘窗
灯具
床品
轻奢
床
床头柜
卧室
意式极简
窗帘
次卧需要更多的收纳空间,定制柜延伸到飘窗位置,打造书橱以及专属阅读角落,让卧室功能更丰富。
相关案例推荐
博睿设计
设计师相关作品

粤公网安备 44010602000156号