前言:
水木设计此次的作品,是一个年轻家庭的宅居空间,作品中没有华丽的炫技与先锋的设计手法
,只以克制的笔法挥洒优雅而静谧的沉静力量,他们将大量的精力投入在对布局的划分与对光
线走势的把握中,让人与空间相互作用,共同研磨出温暖香醇的生活体验。
一个人只有具着这种自由的意识和淡漠的态度,结果才能深切地热烈地享受人生的乐趣。
——林语堂
水木设计此次的作品,是一个年轻家庭的宅居空间,作品中没有华丽的炫技与先锋的设计手法
,只以克制的笔法挥洒优雅而静谧的沉静力量,他们将大量的精力投入在对布局的划分与对光
线走势的把握中,让人与空间相互作用,共同研磨出温暖香醇的生活体验。
化形以塑形
基于居住者对空间明亮宽敞的需求,设计结合居住家庭三人居住的实际情况,以宏观角度打开
功能空间之间的关系,从而获得一个可操作性明晰的整体性区域,通过重新划分场域的广度与
深度,为功能与形式带来新的考量方向。
入户,视线被光线捕捉,延斜向的墙体自然向内,客厅区域缓缓显露,纳入阳台空间后,使用
场景连贯承接,以围合姿态落座,构建出和谐畅然的生活图景。
空间通体以奶油白色为底,墨色作染,落下重点,穿插金属线条与宝格丽奢石点缀,为气质温
润的空间渡上时尚精致的外衣。
空间吸纳构成主义带来的对实用价值的倾向性理解,舍弃戏剧性与抽象性的手法设计,服务于
使用本身。
通过几何线条的拼接勾勒生活图景的同时,纳入大量收纳与置物功能,并以“提供正向生活方
式引导”为主旨,希望能通过场域本身的包容力,为家庭生活创造丰富的沟通费场景,从而提
升生活的趣味性与维系感。
打破客餐厅间的隔阂,光线得以从空间两侧贯穿延伸,提 升 空 间 明 亮 度 的 同 时 , 強 調 居 所
与 人 的 互 动 关 系 , 公 区 被 统 为 一 处 , 通 过 减 少 休 闲 区 与 卫 生 间 的 部 分 空 间 , 来 为 中
厨 使 用 场 景 让 步 , 强 调 生 活 的 体 验 感 。
墙面被赋予大量的置物功能,深浅色交织的立面为空间提供丰富的层次感,木材、石材与漆面
间的表现比例经过深思熟虑的考量,最终呈现为相辅相成的和谐关系,以此,场景中重点鲜明
,整体却仍旧保持轻盈。
一如生活本身,平淡如常的日子中也在不断闪烁着雀跃的光亮。
取舍有道,取舍有得
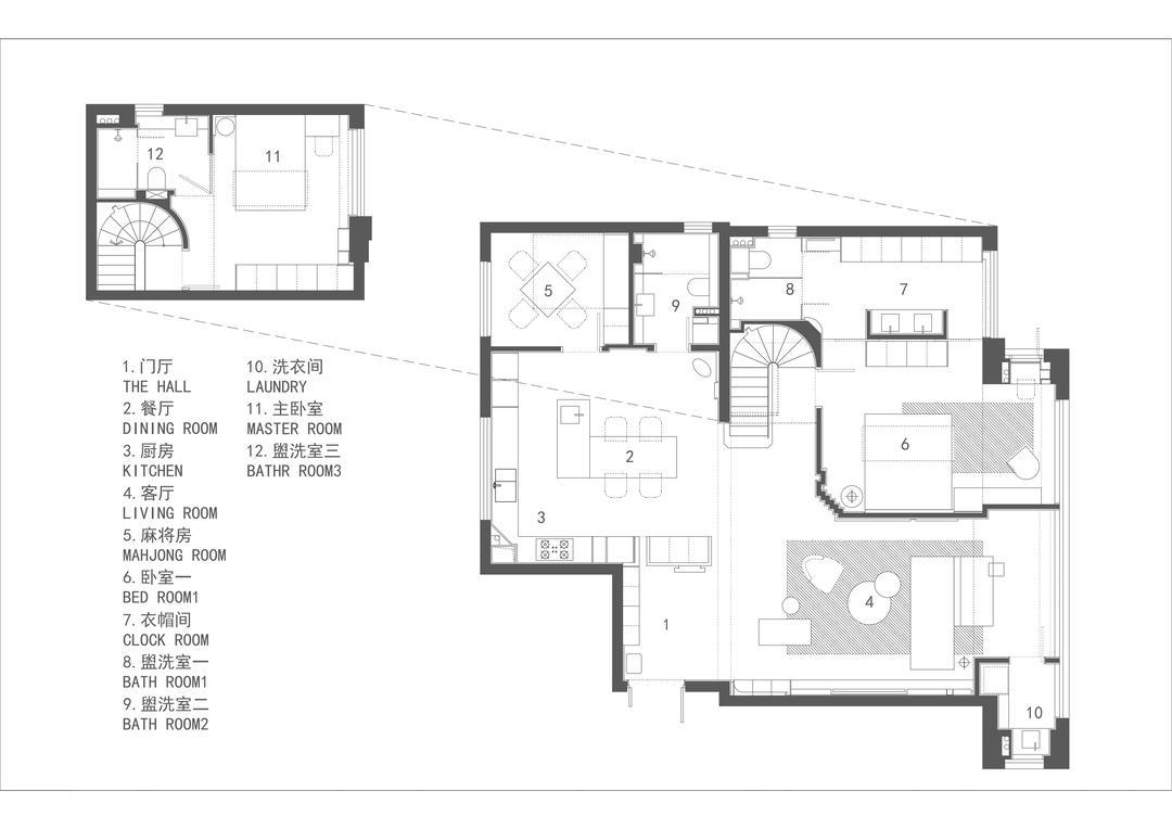
项目原始户型依据动静关系,将主卧置于二层,一层为相对外向的公共区域。设计考虑到二层
空间较小,无法满足主卧的品质需求,而居住家庭为三口之家,仅需两间卧室,于是决定将主
卧移至一层,整合两间次卧,串联衣帽间与卫浴空间,形成一个宽敞的主卧套房区域。
空间重组后,既保证主卧室宽敞舒适的使用需求,又将儿子房移位至二层,从而创造了更为私
密独立的生活场景。
在有限的空间中,通过舍弃非必要的场景,而为使用感让步,也表达着设计对生活本身的理解
与尊重,尽可能扩大各个功能区域的使用频率,让家空间真正为居住者而服务。
用弧形的墙面缓解卧室与卫浴空间中生硬的接洽关系,也让平铺直述的场景拥有了令人欣喜的
灵动感。
空间与使用者的内在联系,决定着场景使用的本质属性,此案的设计过程,可被理解为一次“
取”与“舍”的博弈,衡量真实的生活所需,决定每一处区域,每一处装饰的必要性。
设计对于空间的取舍
凝练于屋主生活方式的选择
设计,本身就应该是以人的生活为核心。
——水木设计
相关案例推荐
温州水木设计

粤公网安备 44010602000156号