前言:
日子飞快地过,眨眼四季已经春夏秋冬。货架上的年货、耳机里的播客……就连空气中泠冽的味道都在提醒着我们一年又快结束,时间又将走进新的轮回。
在告别2023之前,还有一个美丽的平安夜等待我们共同度过。你是否想好了迎接它的方式呢——是与爱人早早约好了热门餐厅,还是准备居家窝在家里享受温馨而特别的一餐,或者是心中暗暗许下愿望,在美好的想象中平静地度过这个夜晚?
相信无论哪种方式,幸福与美好都会与各位履约而至。而对于住三来说,平安之夜一定与温暖美好的设计相伴。而易易打造的这个家,让我们在节日本有的惬意与浪漫中,能感受多一份特别的温柔与亲近。
话题回到设计中来。本案是一个旧房改造案例,委托人希望我们能为他们俩设计一个充满温馨幸福质感的小家。在前期沟通过程中,我们了解到委托人偏爱温柔奶油风,但又希望在其中融入优雅的法式调子;而由于家中还有两只猫咪,所以在设计上需要同时顾到人与宠物的生活方式。接下来,就一起看看易易是如何实现这个幸福纯粹的温柔家吧~
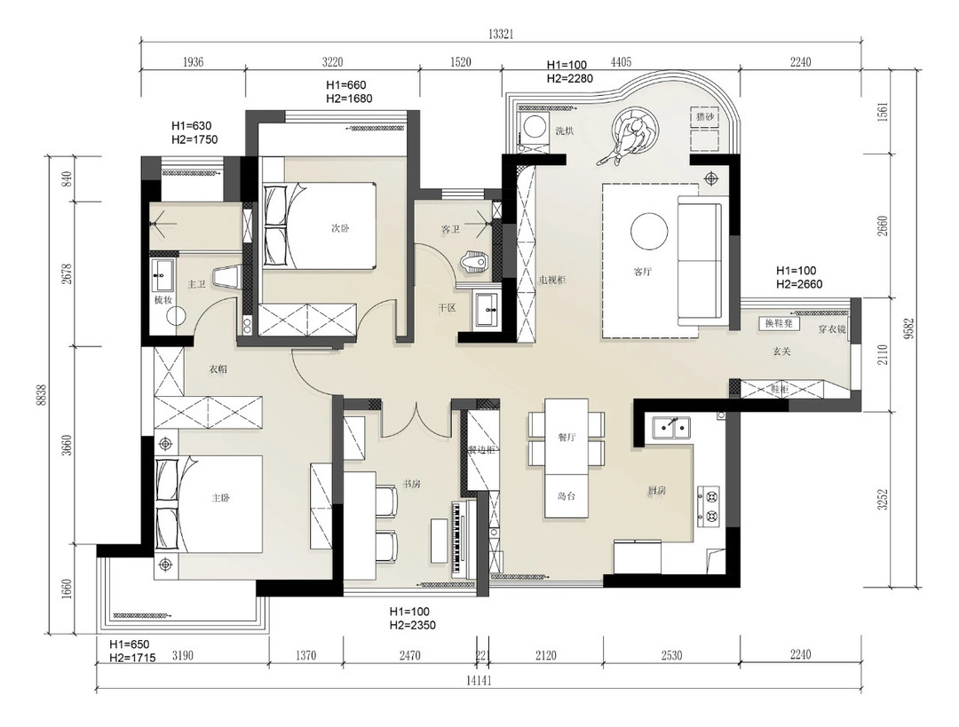
以上是改造前户型图,整个空间看上去没有特别大的毛病。
以上是改造后户型图。整体没有做特别大的改动,只是在委托人的需求之上,对空间做了更为明确合适的划分:
1️⃣ 厨房改为开放式厨房,餐厨空间充分联动;
2️⃣ 将原生活阳台区域纳入餐厅,增大餐厨区域的同时增强了整个空间的采光;
3️⃣ 餐厅和书房中间调整为S墙体,一面用作餐边柜空间,另一面凹入钢琴位置;
4️⃣ 景观阳台一侧留给洗烘机,另一侧留给猫咪生活;
5️⃣ 将卫生间的干区外移,方便日常使用;
6️⃣ 主卧用衣柜隔出一个小型衣帽间。
入户玄关。保留了原设计的落地窗增加采光,同时调整门洞位置,在左侧凹出一个位置摆放下鞋柜。
圆弧型门洞与鱼骨拼地板诠释轻法式与奶油风的完美融合。
考虑到隐私性在入户落地窗内安装了白色纱帘,透光不透人,微风吹过,别有风味。
穿过玄关,进入这个家。在左侧厨房的墙体上安了三排置物架用于放置主人的各种物品,同时也能作为展陈架放上装饰增加这个家的氛围感。
入户左侧就是餐厨区。将原厨房打开的同时把生活阳台也纳入餐厨区,整个左侧都显得通透敞亮,一整面的落地玻璃也将光线毫无保留地引入家中。
整个厨房采用白色定制柜体,精准测算尺寸后,家居电器严丝合缝地摆放引起强迫症患者极度舒适。
整个就餐区选择餐岛一体的搭配方式,岛台配备轨道插排,方便日常就餐时各种小家电的使用。
岛台内嵌烤箱,餐桌餐椅选择胡桃木色系,营造满满的中古味道。
前文提到的餐厅与书房之间的S墙体。餐边柜深度600,刚好摆放下咖啡机,旁边利用水管位置做了一面收纳薄柜。
从这个角度能看到入户与客厅的关系。
入户角度看整个家,左餐右客。
客厅空间不算太大,选用两个“豆腐块”组成沙发区,可移动边几作日常置物使用。
没有选择现在通用的设计手法打通阳台,反而保留隔断,把阳台作为单独区域进行空间划分。在保留景观的条件下,将左侧设计为洗烘区,右侧弧形区留给猫咪。
家中大部分的门洞都采用圆弧型设计,搭配客厅极具法式调性的pu线条,轻松营造法式奶油氛围感。
温馨且幸福的一家❤️❤️❤️
巨大圣诞树落座阳台,自带jingle bells背景音~
书房采用双开门,增加空间仪式感。全屋踢脚线上方都增加了1cm的pu线条,使得空间各处都细节感满满。
书桌一侧打破传统书桌的形式,采用悬空台面,未做任何抽屉,增强空间灵活性;上方设计一字隔板用于日常置物置书等。
出太阳时拉起百叶窗,光影之间创造舒适的环境。
次卧采用全屋定制的到顶白色衣柜,打造空间整体性。
采用无床头的设计,同时由于飘窗与床的距离足够近,所以飘窗也承载了一定的床头柜功能。
利用飘窗的宽度设计了到顶的开放格储物柜,可以放置陈列一些小物件书籍之类~
相关案例推荐
住三设计
设计师相关作品

粤公网安备 44010602000156号