前言: 208方有着三层空间的上叠排屋,两层内部空间另带一层露台,业主对于空间有自己明确的想法,要求是色调简洁、空间通透。所以整个家没有强烈的对比色,以白色、木色为主,纯净柔和的空间。布局上以敞开通透为主,纯粹利落的空间结构,没有过多的造型修饰,结构的骨骼感+所需家具,简约的家应和着居者独有的生活方式。
一楼原始户型图
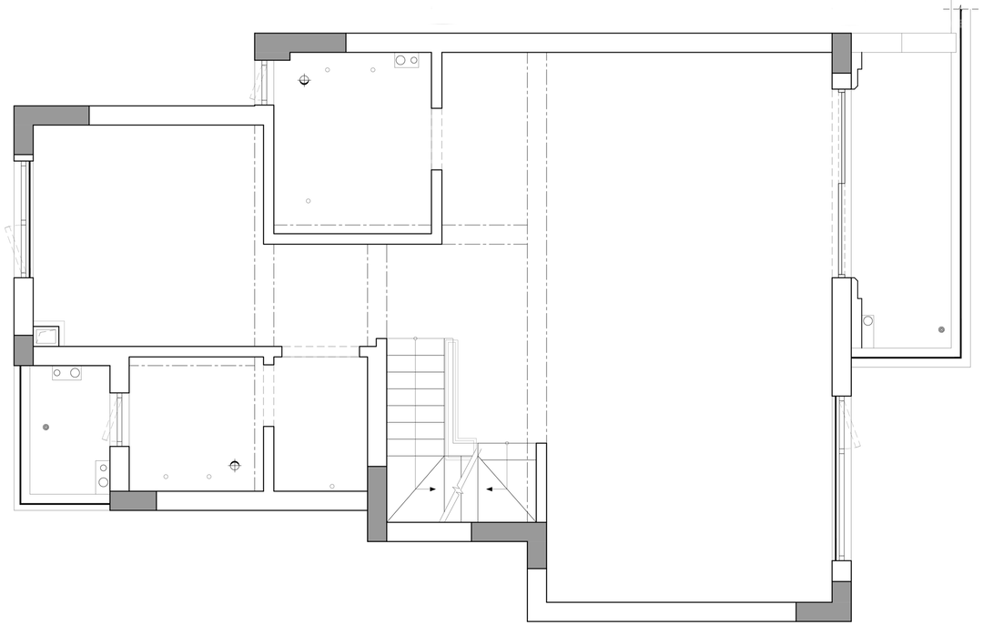
一楼平面设计图;为了满足业主想要的通透状态,一楼的公区尽可能地减少功能区的界限。 1.阳台包入室内成为客厅的一部分,空间的深度与光感都得到了优化。 2.原楼梯宽度踏步高度不合理,业主不希望改变楼梯原有结构让楼梯尺度变得舒服,对楼梯踏步微调,让楼梯尺度变得舒服。 3.将客卫旁的设备平台收入内部空间,提高实用率,因为私人生活空间主要是在二楼,一楼作为公区没有沐浴的需求,原设备平台的位置放置了洗烘机。
二楼原始户型图
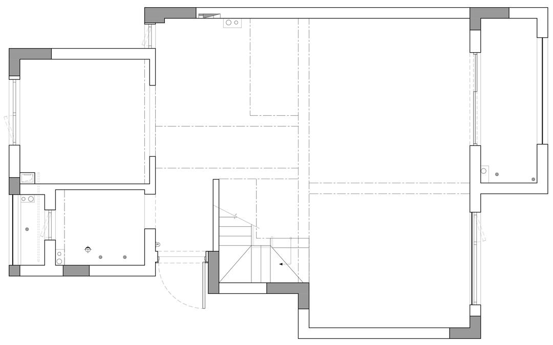
二楼平面设计图;二楼是更私密化的个人生活空间,功能的布置围绕着睡眠休憩区展开。 1.业主不需要太多卧室,两间卧室便可满足所需,让被释放的空间可以提升生活的松弛感。 2.主卧做成套间的形式,卧室与衣帽间以双移门的洄游式动线提升空间的贯通与使用中的便利性。 3.基于日常所需,只保留一个卫生间,另一个卫生间将干湿分离的隔墙打通作为衣帽间的补充以及杂物收纳的储物间。
露台原始结构图
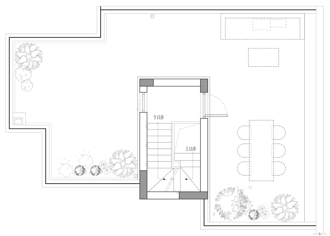
露台平面设计图;56平方大大的露台,放一些业主喜欢的植物制景,塑造整个露台的自然氛围,加上风与阳光的应和,在家也能够有置身于自然中的闲适感。露台上放置了一组沙发与茶几可以饮茶赏景,闲暇时候吹吹风晒晒太阳,又放了一组多人位的餐桌餐椅,偶尔与三五好友来一场露天派对。
业主希望家里是通透简洁的,所以一楼的公区尽量做开放式,不做任何形式的阻挡分割,一体化的空间,在此基础上放置软装家具让每处空间都发挥它的功能感,以墙体与顶面的骨感塑造,通过秩序体感的排列,大空间的自由舒畅与其内部的功能排放俨然有序。
没有矫揉造作的装饰与造型,在满足功能需求的情况下,让空间内的体块结构的穿插丰富空间的结构感。白色与木色作为家里的主色,简约又纯粹的空间,正是业主所需要的,心灵与身体得以安放的理想家。
将阳台收入客厅内,让公共空间相互贯通,既扩充室内的体积,又让自然光可以更好地带入室内,阳光带给人的治愈是任何物件都无法代替的,在高楼大厦的城市里,户型既然有了优秀的采光条件,那就要利用好它的优势。
整个顶面做的悬浮大平顶+无主灯照明,塑造一个简约纯粹的空间,顶面中间有根横梁,为了不显突兀,做了一个过渡的波浪造型来“掩饰”,在严谨的顶面中多了一份温柔的细语。
业主会在家办公,希望有一个开放的工作区,客厅后的这部分空间打开收入公区,一楼的空间共享共通,将通透性贯彻到底。顶面的横梁做了波浪造型后,又在吊顶的四周预留了隐形灯带的空间,白天用眼睛感受结构的美,夜晚通过光影来烘托空间结构,昼夜美感全面get~
客厅窗户是遮光帘+纱帘的配置,满足业主对于光感和私密性的不同需求,右侧工作区窗户用的是木色百叶帘,当午后的阳光伴着木色撒进室内,仿佛在田园下的木质小屋里看风春草长、落日余晖,暖意沁入心脾。
践行极简纯粹的空间概念,自然是要有“藏物”的空间,客厅的收纳安排在了工作区的后面,一整面顶柜可满足日常的收纳,开放格+封闭柜的组合,让原本通铺的柜体一扫乏味沉闷,变得有秩序的美感。开放格可以放屋主的书籍、资料、收藏品,也是作为公区摆件装饰的一处空间。
工作区作为公区内一个小小的空间,为了凸显它自身的独立性,书桌我们特意定的一款体块穿插的造型,相比传统的可移动书桌它更像是被镶嵌在这个位置的,会更有稳重和分量感,给这个小小的工作区吃一个定心丸,即便是不大的体积感也不会被忽视的存在。 书桌是选有带些波普艺术影子的元素和炭黑色碰撞,或者第一眼它更像是豹纹,丰富空间情绪。运用长方形体块与桌面穿插成为桌腿的造型,这个书桌有点酷哦。
阳台的隔墙敲掉与室内打通后,旁边还有管道不能动,就顺势做了一个方柱的包裹造型,以体块穿插的结构感给了沙发摆放的一个支点,硬装与软装的搭配让沙发的摆放即便不靠墙也觉得很ok,不轻佻。
双面沙发对于不靠墙的布置来说更实用,一面朝向客厅一面朝向书房,无论是上午的晨光还是下午的夕阳,都可以在这个沙发上欣赏到。不受拘束的通透空间里,沙发的多面性可以满足更多元的生活方式。
随着需求的不断变化和发展,我们有了更多可以接触互联网的工具,电视已经不是家居生活的必需品。所以电视背景墙的位置我们只做了一个不一样的电视柜,更像是一个长凳的造型,与墙体穿插延伸至阳台窗边,整个面贴的是带有纹理的米色瓷砖,木皮的即视感让空间更加的温润质朴,在低欲望主导的空间里增加生活的暖意。
电视背景墙没做什么装饰,干净清爽的氛围正是业主想要的,后期如果需求有变的话,完全可以再安装电视。目前的话是用一个大尺寸的画放在台面上来装饰,大白墙靠着一幅画把氛围拉了起来,要不说硬装是筋骨,软装是灵魂呢。
一幅姜黄绿的画作给这个白、木色的家里增加一抹亮色,恰当的色彩点亮整个家居空间,有时候颜色不需要多,起到画龙点睛的作用便好。
简约的餐厅氛围依赖的是必备的功能+细节处理,一幅餐桌餐椅,外加一组餐边收纳柜,具备了餐厅的基本使用功能和收纳功能。到顶的收纳柜有足够的空间收纳平日里的干粮 酒水 茶具等等,是厨房的储物补充,也是公区的储物补充。一字型极简吊灯作为餐厅的主光源弱化其存在感,塑造简约的空间氛围。
餐椅没有统一款式,一侧是长条凳一侧是靠背单椅,不同体验感来增加生活的趣味性。餐桌椅与一边的百叶窗都选的黑色,一来是用重色来凸显餐厅的重心和独立性,二来和工作区的办公桌在颜色上也有呼应。窗户的一侧做了一个拱形的内凹造型,实木墩上可以放花瓶插花,或者放些业主喜欢的装饰品,艺术化制景作为入户的端景。
二楼是更为私密的个人生活空间。主要围绕着私人的生活展开,卧室、卫生间、衣帽间。在风格上依然延续一楼的简约调性,色调亦是,还是以白色、木色以及点缀的黑来讲述空间故事。简单素雅的颜色打造出平和淡然的卧室氛围。
比床体靠背稍高的位置做的背景造型,木色与黑色的体块叠加碰撞,简单的材质运用排列方式打造有质感有情绪的空间造型。 卧室床头背景墙连接顶面做的弧形结构,从硬装造型上丰富空间的层次感,极简的空间下不乏设计美感。
衣帽间进入主卧是做的两个移门,左右各一个,洄游式动线增加主卧与外部空间的贯通,无论是通往卫生间还是阳台,可以就近选择更便利的动线,使用上更自由高效。拱形门洞增加空间的仪式感,也和卧室顶面造型有所呼应。
主卧做的是套间,经由衣帽间再进入卧室。一整面墙的衣柜完全可满足业主四季的衣物收纳,凹槽拉手更符合我们想呈现的简约风,它本身的存在又是柜体的线条造型,调和满柜的乏味,美感的层次性更强。
除了凹槽拉手的线条这些小细节来中和满柜的无趣,还需要一个大的落脚点来加持,柜体中间留了30公分左右的空白可做一个小型的展览台,黑与白的碰撞,满柜与留白的搭配,让衣帽间对功能与美感的尺度把握的刚刚好。
相关案例推荐
菲拉设计
设计师相关作品
编辑精选

粤公网安备 44010602000156号